1. AnbieterArrow Icon
  2. Büdenbender HausbauArrow Icon
  3. Musterhaus "Jedermann"
Büdenbender - Musterhaus "Jedermann"
no description
Büdenbender HausbauMusterhaus "Jedermann"
homeKlassische Familienhäuser
livingArea123 m²
energyStandardEffizienzhaus 40
Preis anfragen

Musterhaus "Jedermann"

Vom Träumer zum Häuslebauer

Das kann ja jeder? Genau. Mit Büden­bender Jedermann® kann wirklich jeder Haus­träumer zum Häusle­bauer werden! Was genau ist denn nun Jedermann®? Kurz erklärt: Jedermann® ist das be­son­ders boden­ständige Haus­kon­zept von Büden­bender Hausbau, welches hohe Qualität durch effi­ziente Planung und Konstruk­tion zu besonders attrak­tiven Kondi­tionen ermöglicht.

Jetzt direkt konfigurieren unter www.jedermann-haus.de

Hausdaten

Hausart Icon
HausartEinfamilienhaus
Bauweise Icon
BauweiseHolz-Tafelbau
Anzahl Räume Icon
Anzahl Räume5
Baustil Icon
BaustilKlassische Familienhäuser
Fassade Icon
FassadePutz
Außenmaße Icon
Außenmaße10.5 m x 8.5 m
Wohnfläche Icon
Wohnfläche123.11 m²
Dachform Icon
DachformSattel-/Giebeldach
Energiestandard Icon
EnergiestandardEffizienzhaus 40
Immobilientyp Icon
ImmobilientypMusterhaus
Dachneigung Icon
Dachneigung35°
Kniestock Icon
Kniestock1.5 m
Hausdämmstoff Icon
HausdämmstoffMineralfaser (Glaswolle, Steinwolle)
Heizungsart Icon
HeizungsartWärmepumpe (Luft, Wasser, oder beides)
Pfeil nach unten linksWir schaffen Platz für Ihre Träume

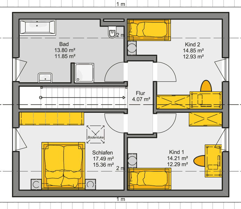
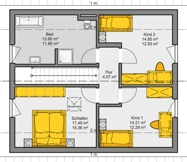
Grundriss

no description
Musterhaus "Jedermann" Grundriss (EG)
no description
Musterhaus "Jedermann" Grundriss (OG)
House and TreeParksHouse and PinMusterhausHouse on HandAnbieter