1. AnbieterArrow Icon
  2. Büdenbender HausbauArrow Icon
  3. Musterhaus "Fortuna" in Bestwig
Slide 1
Location Icon
Slide 2
Location Icon
Slide 3
Location Icon
Slide 4
Location Icon
Slide 5
Location Icon
Slide 6
Location Icon
Slide 7
Location Icon
Slide 8
Location Icon
Slide 9
Location Icon
no description
Büdenbender HausbauMusterhaus "Fortuna" in Bestwig
homeKlassische Familienhäuser
livingArea143 m²
energyStandardEffizienzhaus 40 NH
Preis anfragen

Musterhaus "Fortuna" in Bestwig

Das erste Büdenbender-Musterhaus im Sauerland

Im schönen Bestwig im Hochsauerlandkreis steht das neue Musterhaus Fortuna von Büdenbender Hausbau. Das Einfamilienhaus mit vorgezogenem Giebel hat nicht nur eine schicke und moderne Architektur, es besitzt auch besonders überzeugende innere Werte. Dank der diffusionsoffenen Außenwand atmo-tec® plus genießen die Bewohner (oder in diesem Fall die Besucher) zu jeder Jahreszeit ein besonders angenehmes Raumklima. Durch die ausschließlich hochwertigen Baumaterialien trägt das Musterhaus im Sauerland – wie auch jedes andere Büdenbender-Haus – zu einem gesunden Wohnkonzept bei. Dies bestätigte auch das unabhängige Sentinel Haus Institut und zeichnete Fortuna mit dem „Gesundheitspass gesündere Gebäude“ aus.

Hausdaten

Hausart Icon
HausartEinfamilienhaus
Bauweise Icon
BauweiseHolz-Tafelbau
Anzahl Räume Icon
Anzahl Räume5
Baustil Icon
BaustilKlassische Familienhäuser
Fassade Icon
FassadePutz
Außenmaße Icon
Außenmaße9.38 m x 10.5 m
Wohnfläche Icon
Wohnfläche143 m²
Dachform Icon
DachformSattel-/Giebeldach
Energiestandard Icon
EnergiestandardEffizienzhaus 40 NH
Immobilientyp Icon
ImmobilientypMusterhaus
Dachneigung Icon
Dachneigung38°
Kniestock Icon
Kniestock1.5 m
Hauseigenschaften Icon
HauseigenschaftenGästezimmer
Hausdämmstoff Icon
HausdämmstoffMineralfaser (Glaswolle, Steinwolle)
Heizungsart Icon
HeizungsartWärmepumpe (Luft, Wasser, oder beides)
Pfeil nach unten linksWir schaffen Platz für Ihre Träume

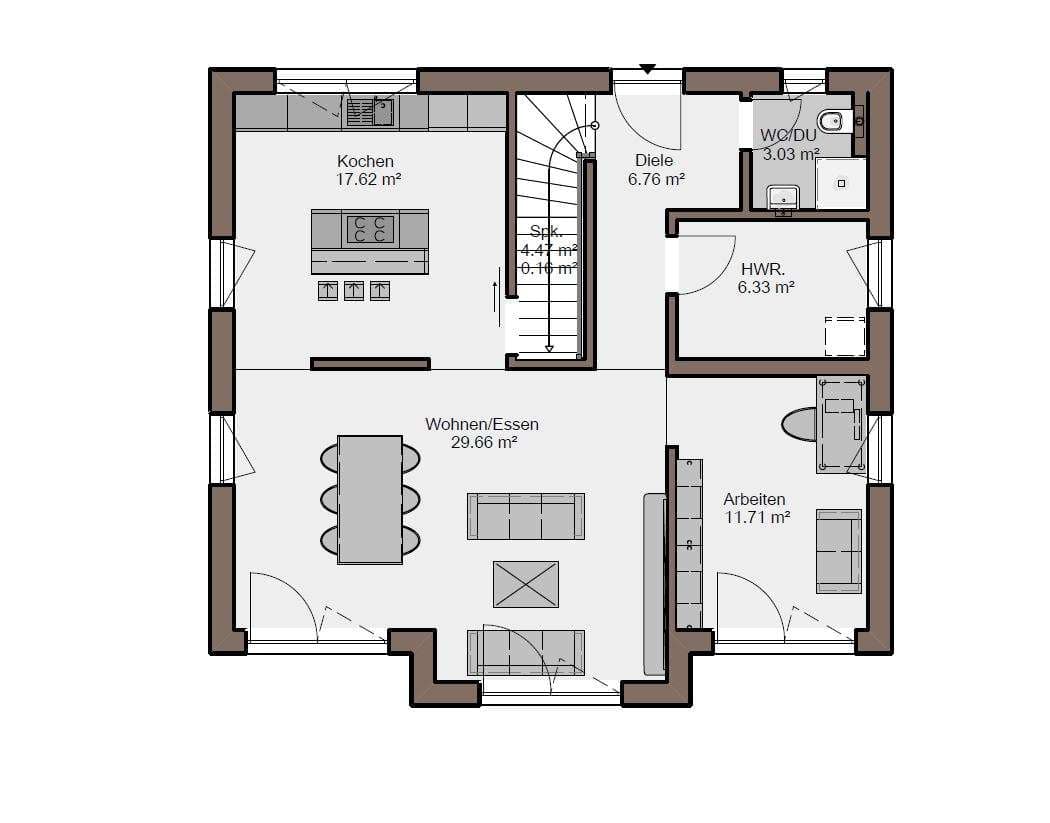
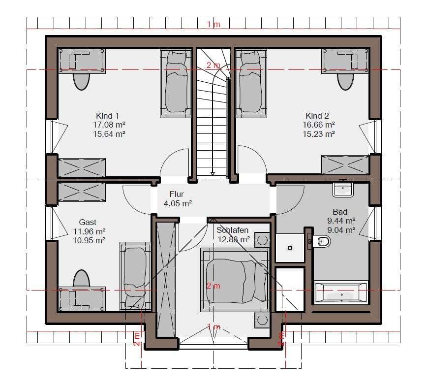
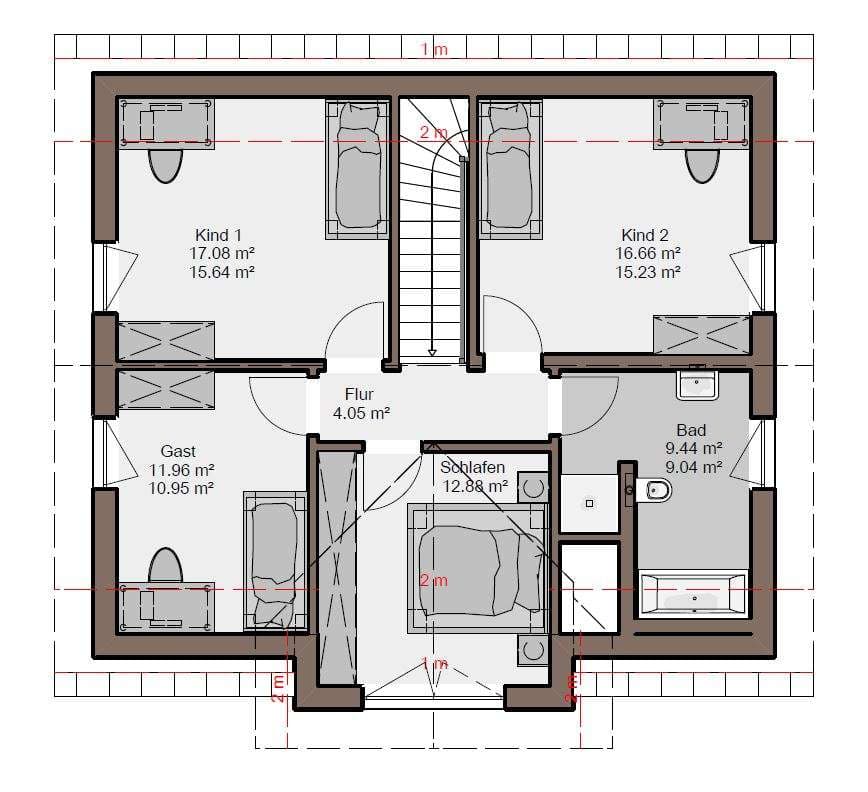
Grundriss

no description
Musterhaus "Fortuna" in Bestwig Grundriss (EG)
no description
Musterhaus "Fortuna" in Bestwig Grundriss (DG)

Unser Team vor Ort

Martin SchäferFachberater*in bei Büdenbender Hausbau
Default Avatar
Wir beraten Sie gerne!Arrow Icon
House and TreeParksHouse and PinMusterhausHouse on HandAnbieter