1. AnbieterArrow Icon
  2. Büdenbender HausbauArrow Icon
  3. Bestseller Architektenhaus Bellocio
Bestseller Architektenhaus Bellocio
no description
Büdenbender HausbauBestseller Architektenhaus Bellocio
homeKlassische Familienhäuser
livingArea124 m²
energyStandardEffizienzhaus 40 NH
Preis anfragen
Katalog bestellen

Bestseller Architektenhaus Bellocio

Wohnraum als Treffpunkt der Familie

Auf kompakter Grundfläche bietet das Architektenhaus Belloccio offenes, großzügiges Wohnen. Bodentiefe Fenster sorgen im Wohnbereich und auch in den beiden großen Kinderzimmern im Dachgeschoss für viel Helligkeit. Ein besonders angenehmes Extra ist bei diesem individuellen Fertighaus-Konzept die Ankleide im Obergeschoss, die direkt an das Elternschlafzimmer anschließt.

Schaffen Sie sich mit Büdenbender Ihren ganz persönlichen Lebensraum und genießen Sie das Leben in all seinen Facetten!

Hausdaten

Hausart Icon
HausartEinfamilienhaus
Bauweise Icon
BauweiseHolz-Tafelbau
Anzahl Räume Icon
Anzahl Räume5
Baustil Icon
BaustilKlassische Familienhäuser
Fassade Icon
FassadePutz
Außenmaße Icon
Außenmaße10 m x 8.5 m
Wohnfläche Icon
Wohnfläche124.16 m²
Dachform Icon
DachformSattel-/Giebeldach
Energiestandard Icon
EnergiestandardEffizienzhaus 40 NH
Immobilientyp Icon
ImmobilientypPlanungsidee
Dachneigung Icon
Dachneigung35°
Kniestock Icon
Kniestock1.4 m
Hausdämmstoff Icon
HausdämmstoffMineralfaser (Glaswolle, Steinwolle)
Heizungsart Icon
HeizungsartWärmepumpe (Luft, Wasser, oder beides)
Pfeil nach unten linksWir schaffen Platz für Ihre Träume

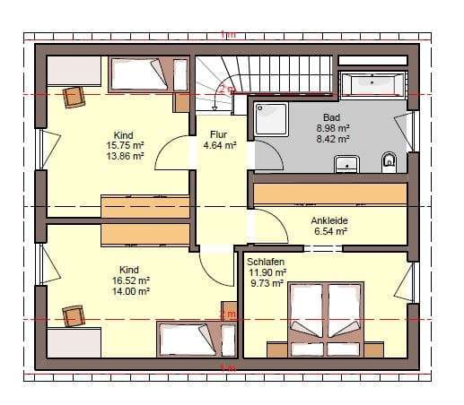
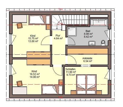
Grundriss

no description
Bestseller Architektenhaus Bellocio Grundriss (EG)
no description
Bestseller Architektenhaus Bellocio Grundriss (DG)

Kataloge

Büdenbender Hausbau: Hauskatalog
Büdenbender Hausbau

Büdenbender Hausbau: Hauskatalog


House and TreeParksHouse and PinMusterhausHouse on HandAnbieter