1. AnbieterArrow Icon
  2. Büdenbender HausbauArrow Icon
  3. Belando - Ein Haus zum Wohlfühlen
no description
no description
Büdenbender HausbauBelando - Ein Haus zum Wohlfühlen
homeKlassische Familienhäuser
livingArea140 m²
energyStandardEffizienzhaus 40
Preis anfragen
Katalog bestellen

Belando - Ein Haus zum Wohlfühlen

Elegantes EFH mit natürlichen Holz-Elementen

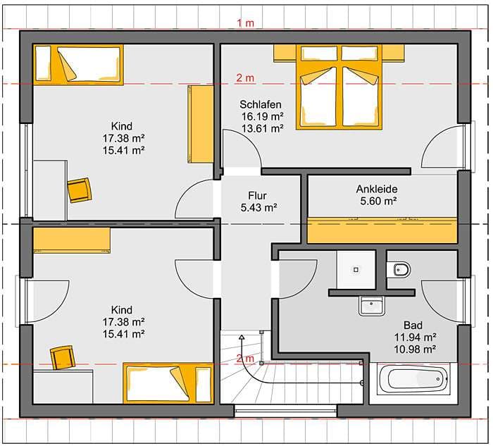
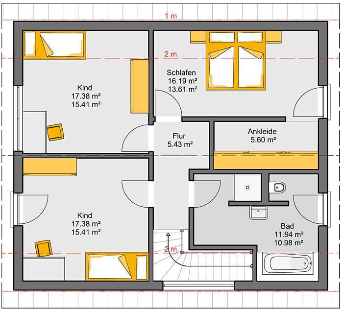
Im Erdgeschoss dominiert der helle, freundliche und offen gestaltete Wohn-, Ess- und Kochbereich, der sich ideal als zentraler Familientreffpunkt eignet. Der direkte Zugang zur Terrasse lädt zum entspannten Frühstück im Freien oder gemütlichen Grillabenden mit Freunden ein. Bodentiefe Fenster verleihen den Räumen im Erdgeschoss Großzügigkeit und ein einladendes Ambiente. So lichtdurchflutet wie der Wohnbereich, sind auch die Räume im Dachgeschoss. Dort befinden sich zwei schöne, helle Kinderzimmer, ein Elternschlafzimmer mit Ankleide und ein elegantes Familienbad mit raffinierter Aufteilung. Die äußere Gestaltung von "Belando" ist ein Blickfang: Die Fassade kombiniert eine Holzverschalung mit farbig abgesetzten Putzflächen, wodurch eine sehr moderne und harmonische Optik entsteht.

Hausdaten

Hausart Icon
HausartEinfamilienhaus
Bauweise Icon
BauweiseHolz-Tafelbau
Anzahl Räume Icon
Anzahl Räume5
Baustil Icon
BaustilKlassische Familienhäuser
Fassade Icon
FassadePutz
Außenmaße Icon
Außenmaße10.5 m x 9 m
Wohnfläche Icon
Wohnfläche140.09 m²
Dachform Icon
DachformSattel-/Giebeldach
Energiestandard Icon
EnergiestandardEffizienzhaus 40
Immobilientyp Icon
ImmobilientypPlanungsidee
Dachneigung Icon
Dachneigung30°
Kniestock Icon
Kniestock1.3 m
Hausdämmstoff Icon
HausdämmstoffMineralfaser (Glaswolle, Steinwolle)
Heizungsart Icon
HeizungsartWärmepumpe (Luft, Wasser, oder beides)
Pfeil nach unten linksWir schaffen Platz für Ihre Träume

Grundriss

no description
Belando - Ein Haus zum Wohlfühlen Grundriss (EG)
no description
Belando - Ein Haus zum Wohlfühlen Grundriss (DG)

Kataloge

Büdenbender Hausbau: Hauskatalog
Büdenbender Hausbau

Büdenbender Hausbau: Hauskatalog


House and TreeParksHouse and PinMusterhausHouse on HandAnbieter