1. AnbieterArrow Icon
  2. Büdenbender HausbauArrow Icon
  3. Architektenhaus Domingo - EFH mit Stil
no description
no description
Büdenbender HausbauArchitektenhaus Domingo - EFH mit Stil
homeKlassische Familienhäuser
livingArea183 m²
energyStandardEffizienzhaus 40
Preis anfragen
Katalog bestellen

Architektenhaus Domingo - EFH mit Stil

GROSSZÜGIGER UND MODERNER WOHNRAUM

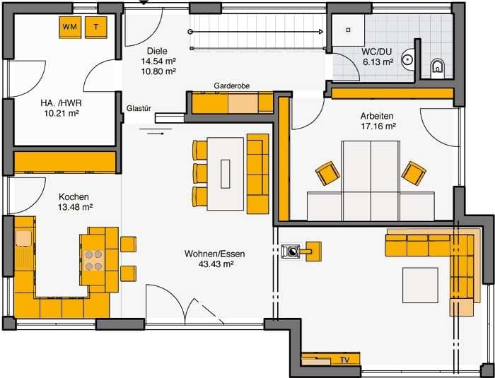
Im Erdgeschoss befindet sich die offene Wohnküche mit Kochinsel und Theke, woran sich der Essplatz und der versetzt angeordnete Wohnraum anschließt. Zentral zwischen Ess- und Wohnzimmer sorgt ein Kamin für Behaglichkeit. Zusätzlich befindet sich ein funktionales Arbeitszimmer, ein Duschbad und der Hauswirtschaftsraum auf dieser Ebene. Im Dachgeschoss erstreckt sich der Balkon über die gesamte Gebäudebreite. Von den beiden hellen Kinderzimmern und dem Elternschlafzimmer gelangt man direkt ins Freie. Viel Licht und eine außergewöhnliche Aufteilung kennzeichnen das großzügige Wellnessbad, das sich direkt neben dem Elternschlafraum befindet. Ein von der Galerie aus zu erreichendes zusätzliches Duschbad vervollständigt das Raumangebot.

Hausdaten

Hausart Icon
HausartEinfamilienhaus
Bauweise Icon
BauweiseHolz-Tafelbau
Anzahl Räume Icon
Anzahl Räume6
Baustil Icon
BaustilKlassische Familienhäuser
Fassade Icon
FassadePutz
Außenmaße Icon
Außenmaße12.7 m x 9 m
Wohnfläche Icon
Wohnfläche182.68 m²
Dachform Icon
DachformSattel-/Giebeldach
Energiestandard Icon
EnergiestandardEffizienzhaus 40
Immobilientyp Icon
ImmobilientypPlanungsidee
Dachneigung Icon
Dachneigung28°
Kniestock Icon
Kniestock0.14 m
Hauseigenschaften Icon
HauseigenschaftenGästezimmer
Hausdämmstoff Icon
HausdämmstoffMineralfaser (Glaswolle, Steinwolle)
Heizungsart Icon
HeizungsartWärmepumpe (Luft, Wasser, oder beides)
Pfeil nach unten linksWir schaffen Platz für Ihre Träume

Grundriss

no description
Architektenhaus Domingo - EFH mit Stil Grundriss (EG)
no description
Architektenhaus Domingo - EFH mit Stil Grundriss (OG)

Kataloge

Büdenbender Hausbau: Hauskatalog
Büdenbender Hausbau

Büdenbender Hausbau: Hauskatalog


House and TreeParksHouse and PinHäuser liveHouse on HandAnbieter