1. AnbieterArrow Icon
  2. Büdenbender HausbauArrow Icon
  3. Fiorano
architektenhaus-fiorano-fertighaus-l-1024x683.jpg
no description
Büdenbender HausbauFiorano
homeKubushäuser im Bauhausstil
livingArea213 m²
energyStandardEffizienzhaus 40
Preis anfragen
Katalog bestellen

Fiorano

Fertighaus mit kubistischem Baukörper und aufgesetztem Satteldach

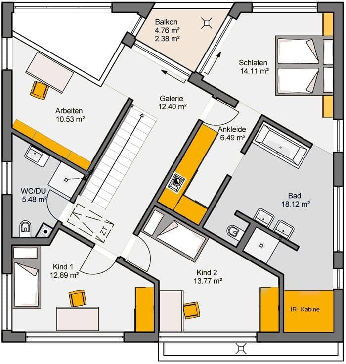
Das dominierende Gestaltungselement im Erdgeschoss ist die schräg angeordnete Treppe. Sie gliedert den weitläufigen Wohn-, Ess- und Kochbereich. Für noch mehr Großzügigkeit im Essbereich sorgt der Luftraum über dem Essplatz. Direkt von der Diele aus gelangt man trockenen Fußes in die Doppelgarage. Das Obergeschoss gliedert sich in diesem individuellen Fertighaus-Konzept auf in den Eltern- und Kindertrakt. An den Elternschlafraum schließt sich die komfortable Ankleide und das als Wellnessbereich gestaltete Bad mit Infrarotkabine an. Direkt vom Schlafraum aus betritt man die geschützte Loggia. Zu den beiden Kinderzimmern gehört ein eigenes Kinderbad. Der Arbeitsplatz auf der Galerie bietet eine wunderbare Aussicht und komplettiert das Raumangebot. Durch die Teilunterkellerung wird das moderne Raumkonzept noch durch einen Abstell- und Hauswirtschaftraum erweitert.

Hausdaten

Hausart Icon
HausartEinfamilienhaus
Bauweise Icon
BauweiseHolz-Tafelbau
Baustil Icon
BaustilKubushäuser im Bauhausstil
Fassade Icon
FassadePutz
Außenmaße Icon
Außenmaße11.45 m x 12 m
Wohnfläche Icon
Wohnfläche213.07 m²
Dachform Icon
DachformSattel-/Giebeldach
Etagen Icon
Etagen2
Energiestandard Icon
EnergiestandardEffizienzhaus 40
Immobilientyp Icon
ImmobilientypPlanungsidee
Dachneigung Icon
Dachneigung35°
Hauseigenschaften Icon
HauseigenschaftenTerasse, Balkon, Keller, Integriertes Carport
Hausdämmstoff Icon
HausdämmstoffMineralfaser (Glaswolle, Steinwolle)
Heizungsart Icon
HeizungsartWärmepumpe (Luft, Wasser, oder beides)
Pfeil nach unten linksWir schaffen Platz für Ihre Träume

Grundriss

Fiorano-Grundriss-KG.jpg
Fiorano Grundriss (Keller)
Fiorano-Grundriss-EG.jpg
Fiorano Grundriss (EG)
Fiorano-Grundriss-DG.jpg
Fiorano Grundriss (DG)

Kataloge

Büdenbender Hausbau: Hauskatalog
Büdenbender Hausbau

Büdenbender Hausbau: Hauskatalog


House and TreeParksHouse and PinMusterhausHouse on HandAnbieter