1. AnbieterArrow Icon
  2. Büdenbender HausbauArrow Icon
  3. Famosa
Slide 1
Slide 2
no description
Büdenbender HausbauFamosa
homeKlassische Familienhäuser
livingArea153 m²
energyStandardEffizienzhaus 40
Preis anfragen
Katalog bestellen

Famosa

Einfamilienhaus mit Einliegerwohnung

Das Raumkonzept des Architektenhauses Famosa wird um eine clever in den Erdgeschossgrundriss integrierte Einliegerwohnung erweitert. Das Einfamilienhaus besticht durch den großzügigen Familienbereich mit offenem Koch-, Wohn- und Essbereich. Dazu kommen im Dachgeschoss 2 schöne Kinderzimmer, das Elternschlafzimmer und zusätzlich ein Gäste- bzw. Arbeitszimmer.

Hausdaten

Hausart Icon
HausartZweifamilienhaus
Bauweise Icon
BauweiseHolz-Tafelbau
Baustil Icon
BaustilKlassische Familienhäuser
Fassade Icon
FassadePutz
Außenmaße Icon
Außenmaße13.5 m x 10.8 m
Wohnfläche Icon
Wohnfläche152.9 m²
Dachform Icon
DachformSattel-/Giebeldach
Energiestandard Icon
EnergiestandardEffizienzhaus 40
Immobilientyp Icon
ImmobilientypPlanungsidee
Dachneigung Icon
Dachneigung38°
Kniestock Icon
Kniestock1 m
Hauseigenschaften Icon
HauseigenschaftenErker, Einliegerwohnung
Hausdämmstoff Icon
HausdämmstoffMineralfaser (Glaswolle, Steinwolle)
Heizungsart Icon
HeizungsartWärmepumpe (Luft, Wasser, oder beides)
Pfeil nach unten linksWir schaffen Platz für Ihre Träume

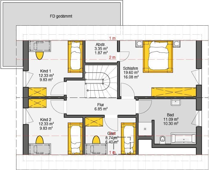
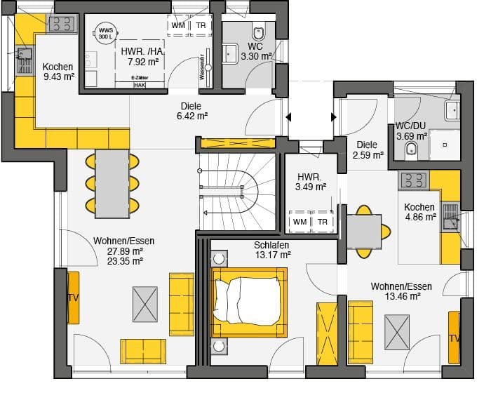
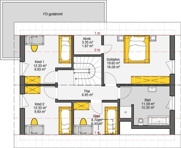
Grundriss

bbh_haueser_famosa_20200107_grundriss-eg.jpg
Famosa Grundriss (EG)
bbh_haueser_famosa_20200107_grundriss-dg.jpg
Famosa Grundriss (DG)

Kataloge

Büdenbender Hausbau: Hauskatalog
Büdenbender Hausbau

Büdenbender Hausbau: Hauskatalog


House and TreeParksHouse and PinHäuser liveHouse on HandAnbieter