1. AnbieterArrow Icon
  2. Büdenbender HausbauArrow Icon
  3. Excelent
Excellent_02.jpg
no description
Büdenbender HausbauExcelent
homeKlassische Familienhäuser
livingArea142 m²
energyStandardEffizienzhaus 40
Preis anfragen
Katalog bestellen

Excelent

Fertighaus mit modernen Räumen für eigene Akzente

Im Erdgeschoss befindet sich die offene Wohnküche mit Kochinsel und Theke, woran sich der Essplatz und der versetzt angeordnete Wohnraum anschließt. Zentral zwischen Ess- und Wohnzimmer sorgt ein Kamin für Behaglichkeit. Zusätzlich befindet sich ein funktionales Arbeitszimmer, ein Duschbad und der Hauswirtschaftsraum auf dieser Ebene. Im Dachgeschoss erstreckt sich der Balkon über die gesamte Gebäudebreite. Von den beiden hellen Kinderzimmern und dem Elternschlafzimmer gelangt man direkt ins Freie. Viel Licht und eine außergewöhnliche Aufteilung kennzeichnen das großzügige Wellnessbad, das sich direkt neben dem Elternschlafraum befindet. Ein von der Galerie aus zu erreichendes zusätzliches Duschbad vervollständigt das Raumangebot.

Hausdaten

Hausart Icon
HausartEinfamilienhaus
Bauweise Icon
BauweiseHolz-Tafelbau
Baustil Icon
BaustilKlassische Familienhäuser
Fassade Icon
FassadePutz
Außenmaße Icon
Außenmaße11.5 m x 8.5 m
Wohnfläche Icon
Wohnfläche141.96 m²
Dachform Icon
DachformPultdach
Energiestandard Icon
EnergiestandardEffizienzhaus 40
Immobilientyp Icon
ImmobilientypPlanungsidee
Kniestock Icon
Kniestock2.3 m
Hauseigenschaften Icon
HauseigenschaftenErker
Hausdämmstoff Icon
HausdämmstoffMineralfaser (Glaswolle, Steinwolle)
Heizungsart Icon
HeizungsartWärmepumpe (Luft, Wasser, oder beides)
Pfeil nach unten linksWir schaffen Platz für Ihre Träume

Grundriss

Excelent-Grundriss-EG.jpg
Excelent Grundriss (EG)
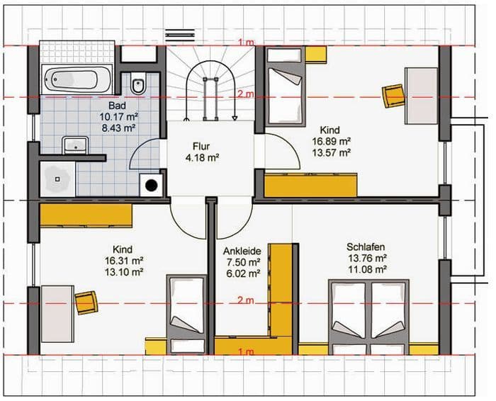
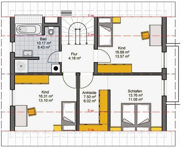
Excelent-Grundriss-DG.jpg
Excelent Grundriss (DG)

Kataloge

Büdenbender Hausbau: Hauskatalog
Büdenbender Hausbau

Büdenbender Hausbau: Hauskatalog


House and TreeParksHouse and PinHäuser liveHouse on HandAnbieter