1. AnbieterArrow Icon
  2. Büdenbender HausbauArrow Icon
  3. Escamillo
Slide 1
Slide 2
no description
Büdenbender HausbauEscamillo
homeKubushäuser im Bauhausstil
livingArea211 m²
energyStandardEffizienzhaus 40
Preis anfragen
Katalog bestellen

Escamillo

Eleganz im Bauhausstil

Die Erfindung des Bauhauses war ein Meilenstein in der Architekturgeschichte, der den Hausbau bis heute prägt. Funktionalität steht dabei im Mittelpunkt – die Form passt sich an. Anlässlich des 100-jährigen Bauhaus-Jubiläums haben wir ein neues Architektenhaus entworfen, was genau diese Merkmale verkörpert. Escamillo präsentiert sich mit geradlinigen, funktionalen Strukturen, einem modernen Flachdach und einer riesigen Glasfront, welche die Grenze zwischen innen und außen fast verschwinden lässt. Durch die bodentiefen Fenster werden die Räume mit Tageslicht geflutet und man hat das Gefühl, man säße im Freien. Großzügige 211 m2 verteilen sich im Escamillo auf zwei Etagen, die über eine Treppe mit schicker Galerie verbunden sind.

Hausdaten

Hausart Icon
HausartEinfamilienhaus
Bauweise Icon
BauweiseHolz-Tafelbau
Baustil Icon
BaustilKubushäuser im Bauhausstil
Fassade Icon
FassadePutz
Außenmaße Icon
Außenmaße19.5 m x 14.5 m
Wohnfläche Icon
Wohnfläche210.8 m²
Dachform Icon
DachformFlachdach
Etagen Icon
Etagen2
Energiestandard Icon
EnergiestandardEffizienzhaus 40
Immobilientyp Icon
ImmobilientypPlanungsidee
Hauseigenschaften Icon
HauseigenschaftenGästezimmer, Balkon, Integriertes Carport, Viel Glas
Hausdämmstoff Icon
HausdämmstoffMineralfaser (Glaswolle, Steinwolle)
Heizungsart Icon
HeizungsartWärmepumpe (Luft, Wasser, oder beides)
Pfeil nach unten linksWir schaffen Platz für Ihre Träume

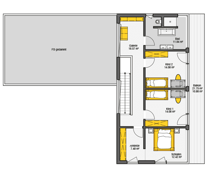
Grundriss

bbh_hauser_escamillo_grundriss-eg_20200103.png
Escamillo Grundriss (EG)
bbh_hauser_escamillo_grundriss-og_20200103.png
Escamillo Grundriss (OG)

Kataloge

Büdenbender Hausbau: Hauskatalog
Büdenbender Hausbau

Büdenbender Hausbau: Hauskatalog


House and TreeParksHouse and PinMusterhausHouse on HandAnbieter