1. AnbieterArrow Icon
  2. Büdenbender HausbauArrow Icon
  3. Arpeggio
Arpeggio-Architektenhaus-Fertighaus-1024x683.jpg
no description
Büdenbender HausbauArpeggio
homeKlassische Familienhäuser
livingArea216 m²
energyStandardEffizienzhaus 40
Preis anfragen
Katalog bestellen

Arpeggio

Einfamilienhaus mit großzügigem Wohnraum

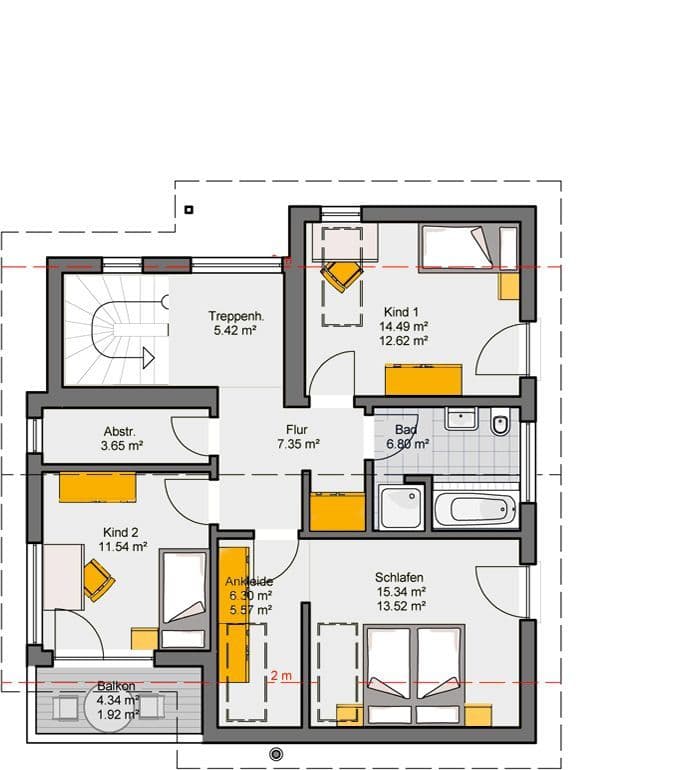
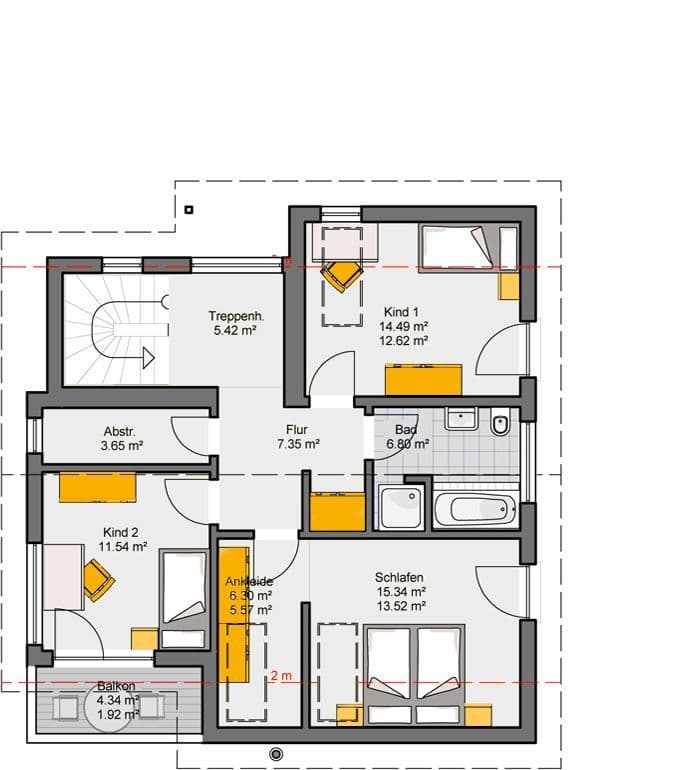
Durch die großen Fensterfronten entstehen im Haus Sichtachsen und viel Tageslicht macht die Räume angenehm hell. Der großzügige Eingangsbereich, das Arbeitszimmer und das Duschbad komplettieren das Erdgeschoss. Im Obergeschoss verfügt das Wohnhaus über einen Elternbereich mit Ankleide, die durch ein großflächiges Dachflächenfenster mit Tageslicht versorgt wird. Außerdem runden zwei freundliche Kinderzimmer, ein modernes Badezimmer und ein Balkon das Raumangebot ab. Das Gästezimmer, ein Hauswirtschaftsraum und zwei Kellerräume befinden sich im Kellergeschoss. Insgesamt überzeugt das Fertighaus durch die reduzierten Formensprache mit Satteldach und weiß geputzter Fassade, aufgelockert durch Flächen mit Holzverschalung.

Hausdaten

Hausart Icon
HausartEinfamilienhaus
Bauweise Icon
BauweiseHolz-Tafelbau
Baustil Icon
BaustilKlassische Familienhäuser
Fassade Icon
FassadePutz, Holz
Außenmaße Icon
Außenmaße10 m x 10.5 m
Wohnfläche Icon
Wohnfläche215.92 m²
Dachform Icon
DachformSattel-/Giebeldach
Energiestandard Icon
EnergiestandardEffizienzhaus 40
Immobilientyp Icon
ImmobilientypPlanungsidee
Dachneigung Icon
Dachneigung29°
Kniestock Icon
Kniestock1.6 m
Hauseigenschaften Icon
HauseigenschaftenBalkon, Integriertes Carport, Gästezimmer, Keller
Hausdämmstoff Icon
HausdämmstoffMineralfaser (Glaswolle, Steinwolle)
Heizungsart Icon
HeizungsartWärmepumpe (Luft, Wasser, oder beides)
Pfeil nach unten linksWir schaffen Platz für Ihre Träume

Grundriss

Arpeggio-Grundriss-KG.jpg
Arpeggio Grundriss (Keller)
Arpeggio-Grundriss-EG.jpg
Arpeggio Grundriss (EG)
Arpeggio-Grundriss-OG.jpg
Arpeggio Grundriss (OG)

Kataloge

Büdenbender Hausbau: Hauskatalog
Büdenbender Hausbau

Büdenbender Hausbau: Hauskatalog


House and TreeParksHouse and PinHäuser liveHouse on HandAnbieter