1. AnbieterArrow Icon
  2. WOLF SystemArrow Icon
  3. Kundenhaus
Slide 1
Slide 2
Slide 3
Wolf Logo Wortbildmarke.png
WOLF SystemKundenhaus
homeLandhäuser
energyStandardEffizienzhaus 55
Preis anfragen
Katalog bestellen

Kundenhaus

Hausdaten

Hausart Icon
HausartEinfamilienhaus
Bauweise Icon
BauweiseHolz-Tafelbau
Baustil Icon
BaustilLandhäuser
Fassade Icon
FassadeHolz
Dachform Icon
DachformSattel-/Giebeldach
Energiestandard Icon
EnergiestandardEffizienzhaus 55
Immobilientyp Icon
ImmobilientypKundenhaus
Dachneigung Icon
Dachneigung45°
Kniestock Icon
Kniestock0.5 m
Hauseigenschaften Icon
HauseigenschaftenGästezimmer
Hausdämmstoff Icon
HausdämmstoffHolzfaser- und Zellulosedämmstoffe
Heizungsart Icon
HeizungsartGas-Brennwertheizung
Pfeil nach unten linksWir schaffen Platz für Ihre Träume

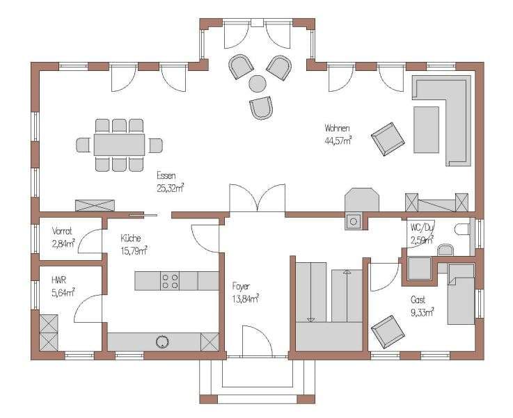
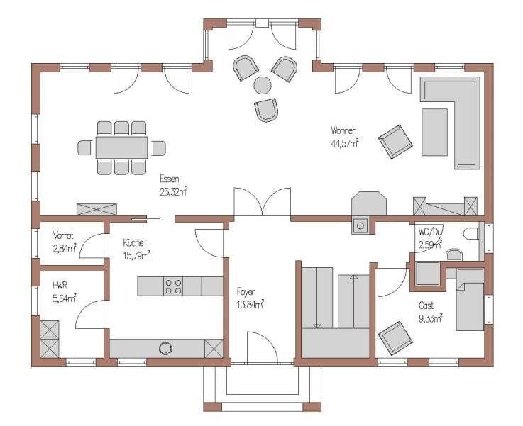
Grundriss

no description
Kundenhaus Grundriss (EG)
no description
Kundenhaus Grundriss (DG)
House and TreeParksHouse and PinMusterhausHouse on HandAnbieter