1. AnbieterArrow Icon
  2. WOLF SystemArrow Icon
  3. Kundenhaus
Slide 1
Slide 2
Slide 3
Slide 4
Slide 5
Slide 6
Slide 7
Slide 8
Slide 9
Wolf Logo Wortbildmarke.png
WOLF SystemKundenhaus
homeStadtvillen
livingArea199 m²
energyStandardEffizienzhaus 40
Preis anfragen
Katalog bestellen

Kundenhaus

Hausdaten

Hausart Icon
HausartEinfamilienhaus
Bauweise Icon
BauweiseHolz-Tafelbau
Anzahl Räume Icon
Anzahl Räume9
Baustil Icon
BaustilStadtvillen
Fassade Icon
FassadePutz
Außenmaße Icon
Außenmaße14.75 m x 14.75 m
Wohnfläche Icon
Wohnfläche199.04 m²
Dachform Icon
DachformPultdach
Energiestandard Icon
EnergiestandardEffizienzhaus 40
Immobilientyp Icon
ImmobilientypKundenhaus
Dachneigung Icon
Dachneigung24°
Hauseigenschaften Icon
HauseigenschaftenTerasse
Hausdämmstoff Icon
HausdämmstoffMineralfaser (Glaswolle, Steinwolle)
Heizungsart Icon
HeizungsartWärmepumpe (Luft, Wasser, oder beides)
Pfeil nach unten linksWir schaffen Platz für Ihre Träume

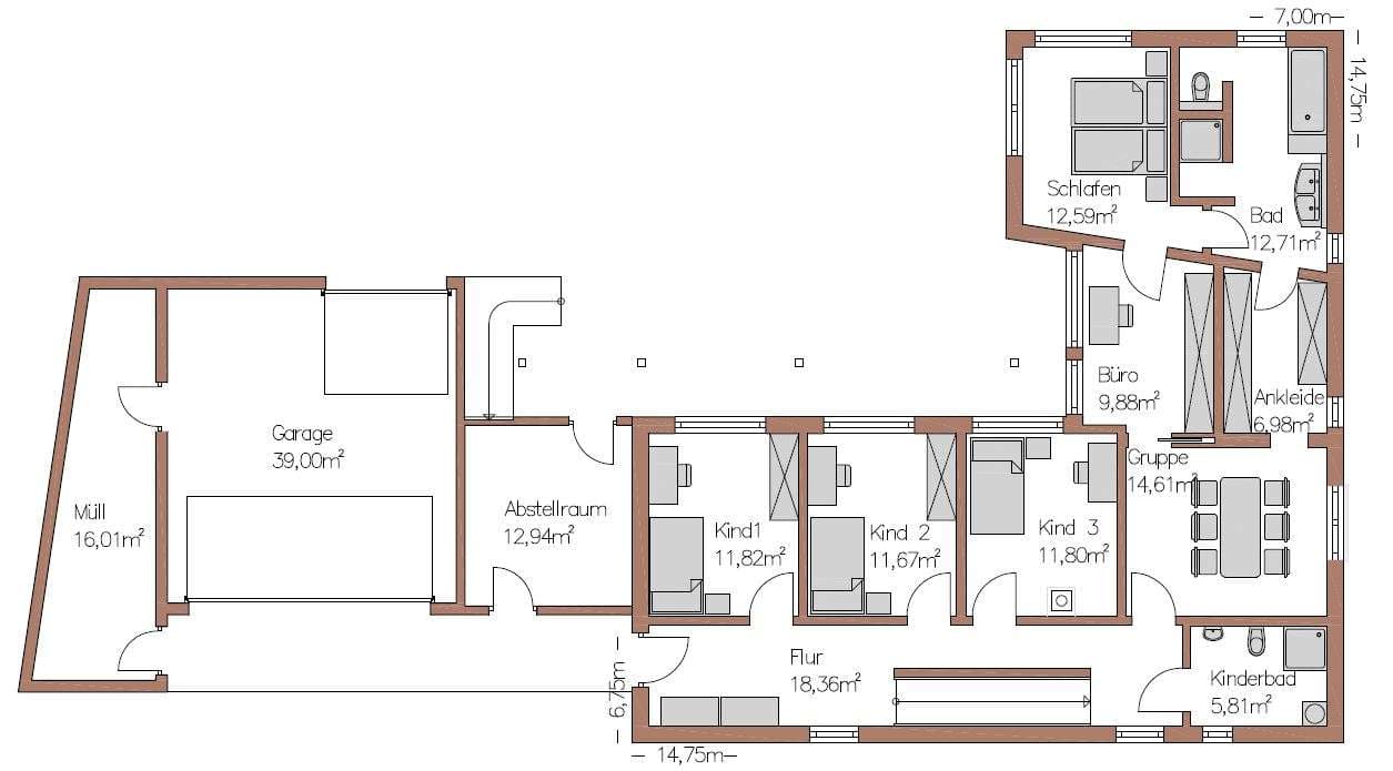
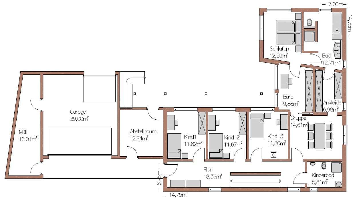
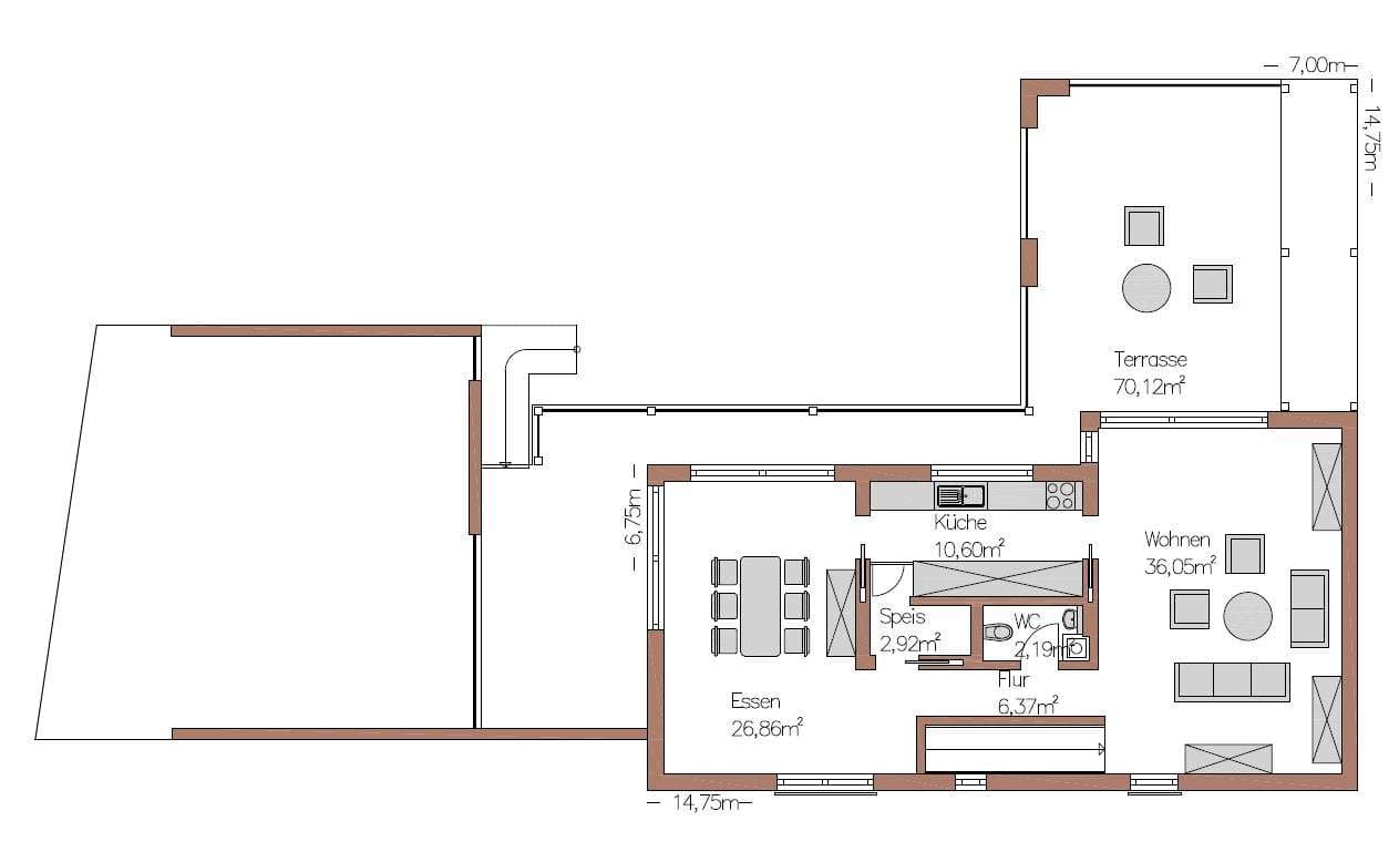
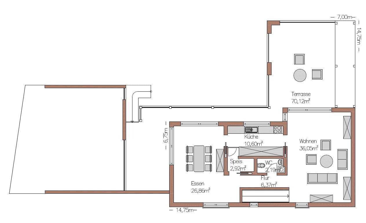
Grundriss

no description
Kundenhaus Grundriss (EG)
no description
Kundenhaus Grundriss (OG)
House and TreeParksHouse and PinMusterhausHouse on HandAnbieter