1. AnbieterArrow Icon
  2. WOLF SystemArrow Icon
  3. Musterhaus LUMINA
Slide 1
Location Icon
Slide 2
Location Icon
Slide 3
Location Icon
Slide 4
Location Icon
Slide 5
Location Icon
Slide 6
Location Icon
Wolf Logo Wortbildmarke.png
WOLF SystemMusterhaus LUMINA
homeStadtvillen
livingArea133 m²
energyStandardEffizienzhaus 40
Preis anfragen

Musterhaus LUMINA

Das neue Musterhaus „LUMINA“ zeichnet sich durch eine moderne Fassadengestaltung und einem „schwebenden“ architektonisch reizvollen Pultdach aus. Der großzügige, asymmetrische Flachdachanbau, auf dem eine luxuriöse Dachterrasse mit Lounge-Bereich ihren gemütlichen Platz findet, gibt dem Wohngebäude noch das gewisse Etwas. Wohnkomfort und viele architektonische Merkmale setzen das Holzständerbauwerk gekonnt in Szene. Lichtdurchflutete Räume und ein modernes Farbkonzept runden die Raumatmosphäre ab. Besonderheiten wie Übereckverglasungen, der schicke Kaminofen, der offene Galeriebereich oder das Kuschelfenster im Kinderzimmer strahlen Harmonie aus und repräsentieren die Räume auf eine ganz besondere Art und Weise. „LUMINA“ präsentiert sich als ideales Einfamilienhaus mit kreativen Wohnideen. 

Hausdaten

Hausart Icon
HausartEinfamilienhaus
Bauweise Icon
BauweiseHolz-Tafelbau
Baustil Icon
BaustilStadtvillen
Fassade Icon
FassadePutz
Wohnfläche Icon
Wohnfläche133 m²
Dachform Icon
DachformPultdach
Energiestandard Icon
EnergiestandardEffizienzhaus 40
Immobilientyp Icon
ImmobilientypMusterhaus
Heizungsart Icon
HeizungsartWärmepumpe (Luft, Wasser, oder beides)
Pfeil nach unten linksWir schaffen Platz für Ihre Träume

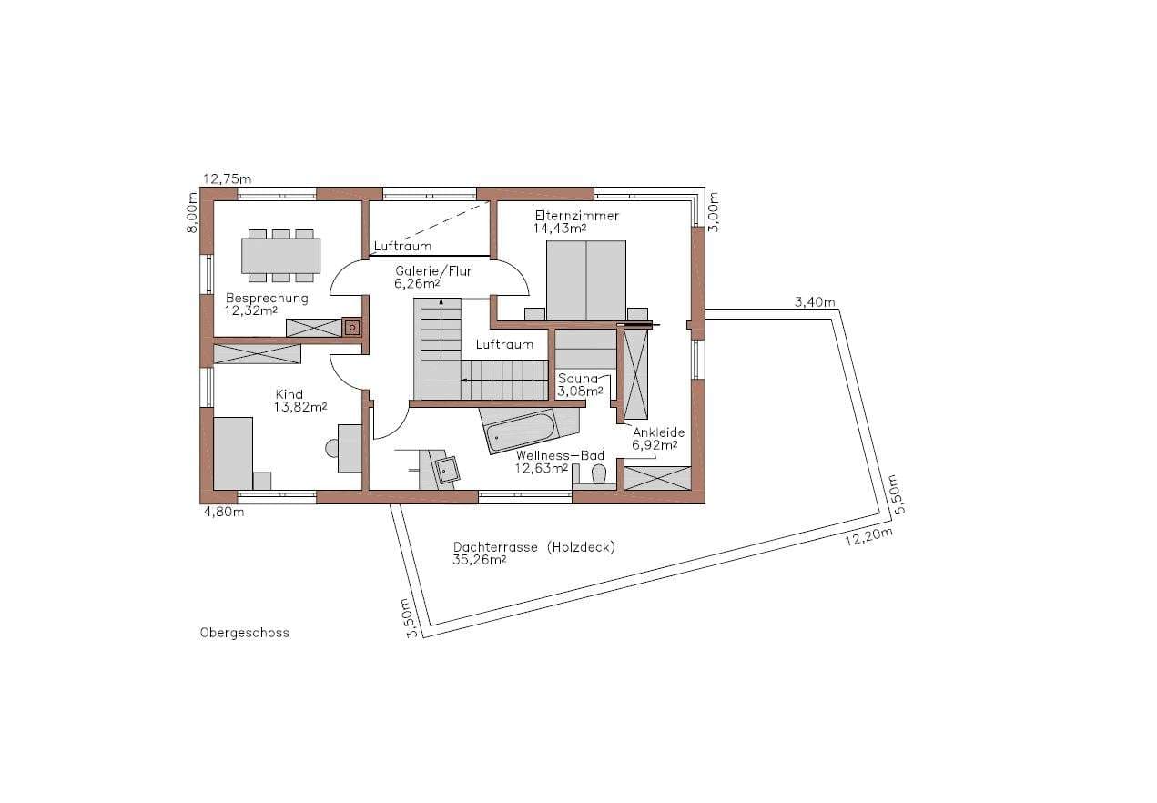
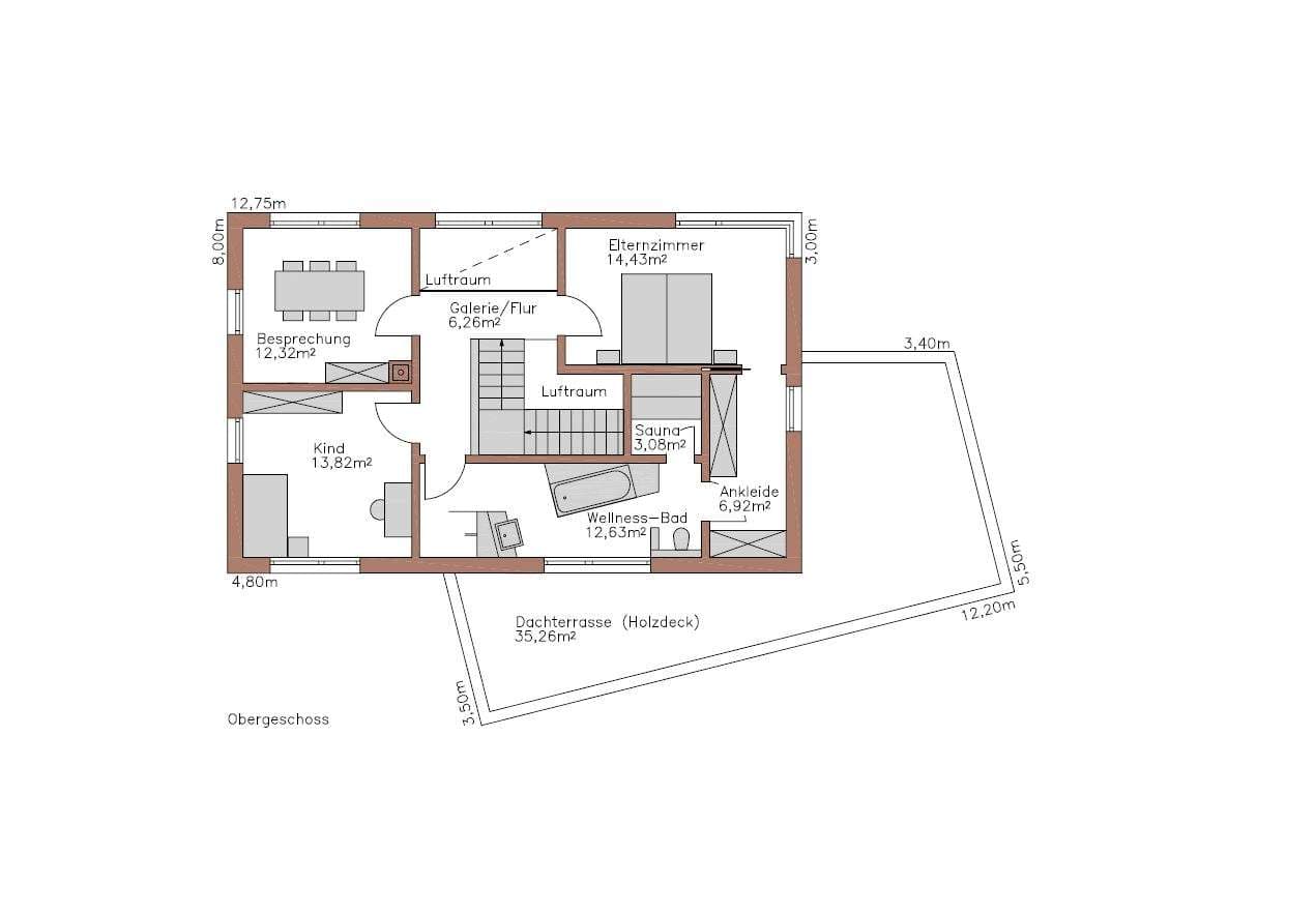
Grundriss

no description
Musterhaus LUMINA Grundriss (EG)
no description
Musterhaus LUMINA Grundriss (OG)
House and TreeParksHouse and PinHäuser liveHouse on HandAnbieter