1. AnbieterArrow Icon
  2. WOLF-HausArrow Icon
  3. Musterhaus Mannheim
Slide 1
Location Icon
Slide 2
Location Icon
Slide 3
Location Icon
Slide 4
Location Icon
Slide 5
Location Icon
Slide 6
Location Icon
Slide 7
Location Icon
Slide 8
Location Icon
no description
WOLF-HausMusterhaus Mannheim
homeStadtvillen
livingArea186 m²
energyStandardEffizienzhaus 55
Preis anfragen

Musterhaus Mannheim

Viel Raum für Ihren Traum 

Variables Hauskonzept erlaubt komfortables Wohnen jetzt und im Alter

Wer heute baut, will vor allem eins: ein flexibles Hauskonzept, das genügend Freiräume lässt, die verschiedenen Hobbys, Wünsche und Bedürfnisse seiner Bewohner unter ein Dach zu vereinen. Dabei wird häufig übersehen, dass das eigene Haus auch im Alter ein sicheres Zuhause sein soll. Dank des cleveren und äußerst flexiblen Hauskonzeptes Edition Select 186 von Wolf-Haus kann man heute schon für morgen mitplanen, ohne jetzt Einbußen beim Komfort hinnehmen zu müssen.

Um für Veränderungen im Alter bereits heute vorbereitet zu sein, bietet die Grundrissplanung eine große Variabilität. So wird durch ein barrierefreies Duschbad und ein zusätzliches Zimmer im Erdgeschoss später das Wohnen auf einer Ebene möglich. Die Türen und Durchgänge sind dabei extra breit gehalten. Auch die Diele wurde so geplant, dass sich nachträglich im Treppenhaus ein hydraulischer Aufzug einbauen lässt. An schwellenlose Übergänge am Hauseingang und der Terrasse ist ebenso gedacht wie an eine breite und überdachte Ausstiegsmöglichkeit aus dem Auto. Die Ausführung als energiesparendes KfW55-Haus hilft über Jahrzehnte Geld zu sparen. So bietet dieser Hausentwurf auch bei wachsenden Anforderungen im Alter ein Höchstmaß an Komfort für seine Bewohner – und das ein Leben lang!

Der Hauptbaukörper des Hauses ist 2-geschossig und verfügt über ein 22°-Satteldach. Beidseitig wird er von zwei eingeschossigen Anbauten mit Flachdächern ergänzt. Durch eine Paneelverkleidung wird das Gebäude angenehm gegliedert. Die Ausführung  als „KfW Effizienzhaus 55“ garantiert besonders niedrige Unterhaltskosten. Die Wohnbereiche im Erdgeschoss sind sehr offen und hell gestaltet. Im Dachgeschoss befinden sich die großflächigen Ruheräume sowie ein edel ausgestattetes Bad.

Der angebaute Garagen- und Carportbereich wird durch Lichtkuppeln und große Rundfenster erhellt.

Hausdaten

Hausart Icon
HausartEinfamilienhaus
Bauweise Icon
BauweiseHolz-Tafelbau
Anzahl Räume Icon
Anzahl Räume6
Baustil Icon
BaustilStadtvillen
Fassade Icon
FassadePutz
Außenmaße Icon
Außenmaße12 m x 8.5 m
Wohnfläche Icon
Wohnfläche185.74 m²
Dachform Icon
DachformSattel-/Giebeldach
Energiestandard Icon
EnergiestandardEffizienzhaus 55
Immobilientyp Icon
ImmobilientypMusterhaus
Dachneigung Icon
Dachneigung22°
Hauseigenschaften Icon
HauseigenschaftenGästezimmer
Heizungsart Icon
HeizungsartWärmepumpe (Luft, Wasser, oder beides)
Pfeil nach unten linksWir schaffen Platz für Ihre Träume

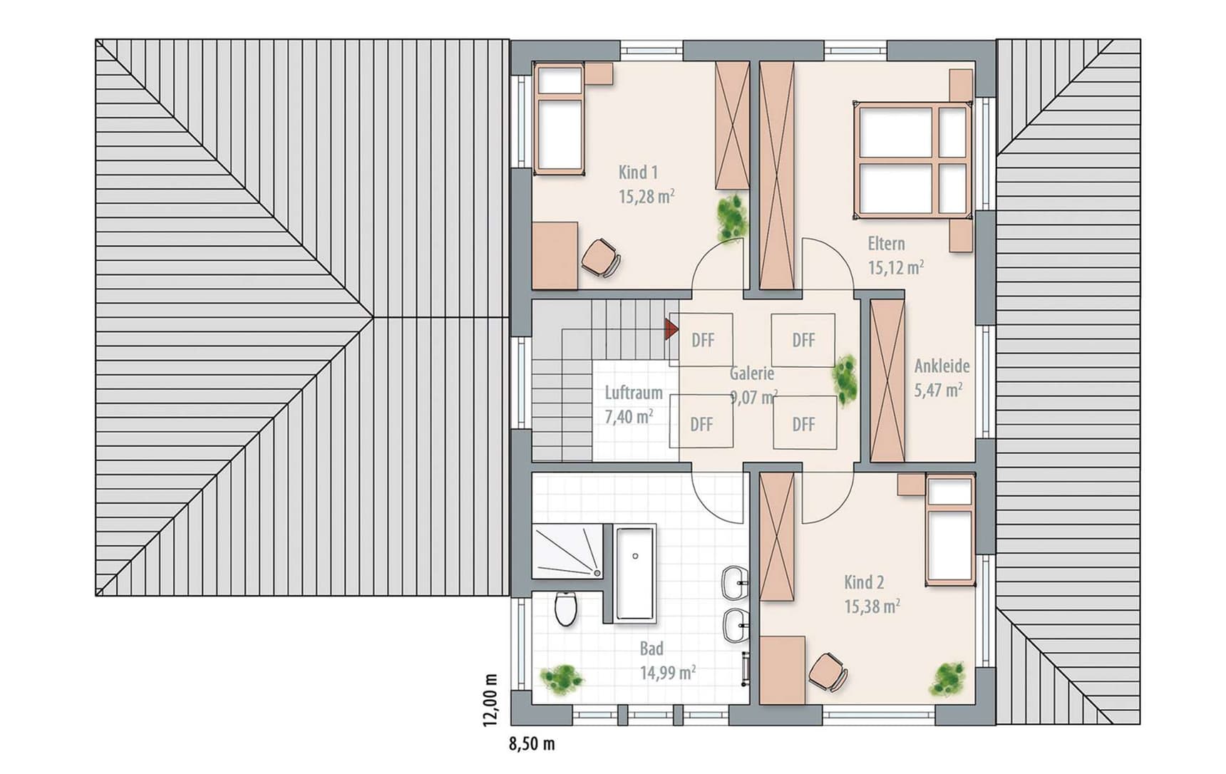
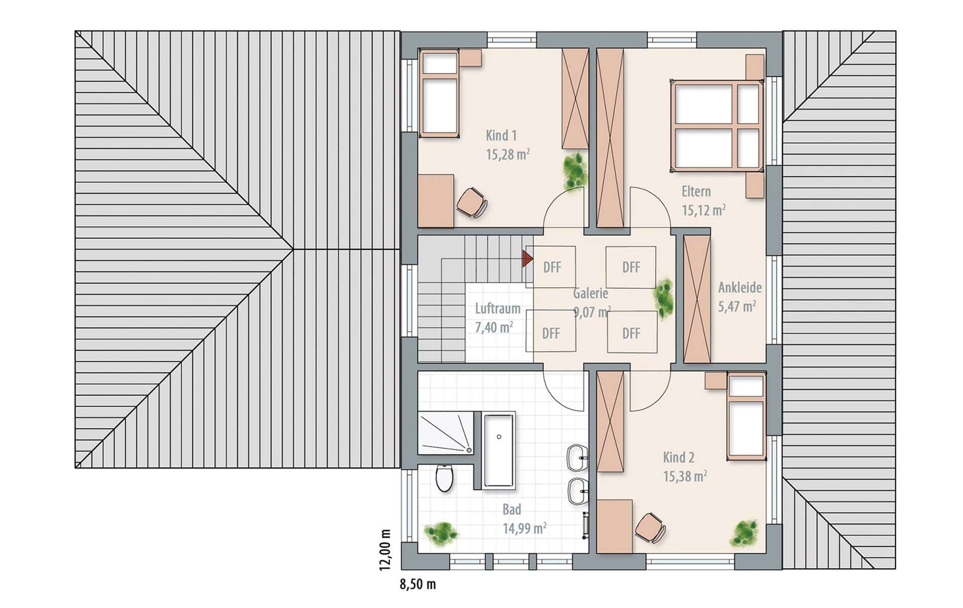
Grundriss

no description
Musterhaus Mannheim Grundriss (EG)
no description
Musterhaus Mannheim Grundriss (DG)
House and TreeParksHouse and PinMusterhausHouse on HandAnbieter