1. AnbieterArrow Icon
  2. WOLF-HausArrow Icon
  3. EDITION B 100
Slide 1
Slide 2
Slide 3
Slide 4
Slide 5
Slide 6
no description
WOLF-HausEDITION B 100
homeBungalow
livingArea100 m²
energyStandardEffizienzhaus 55 EE
Preis anfragen
Katalog bestellen

EDITION B 100

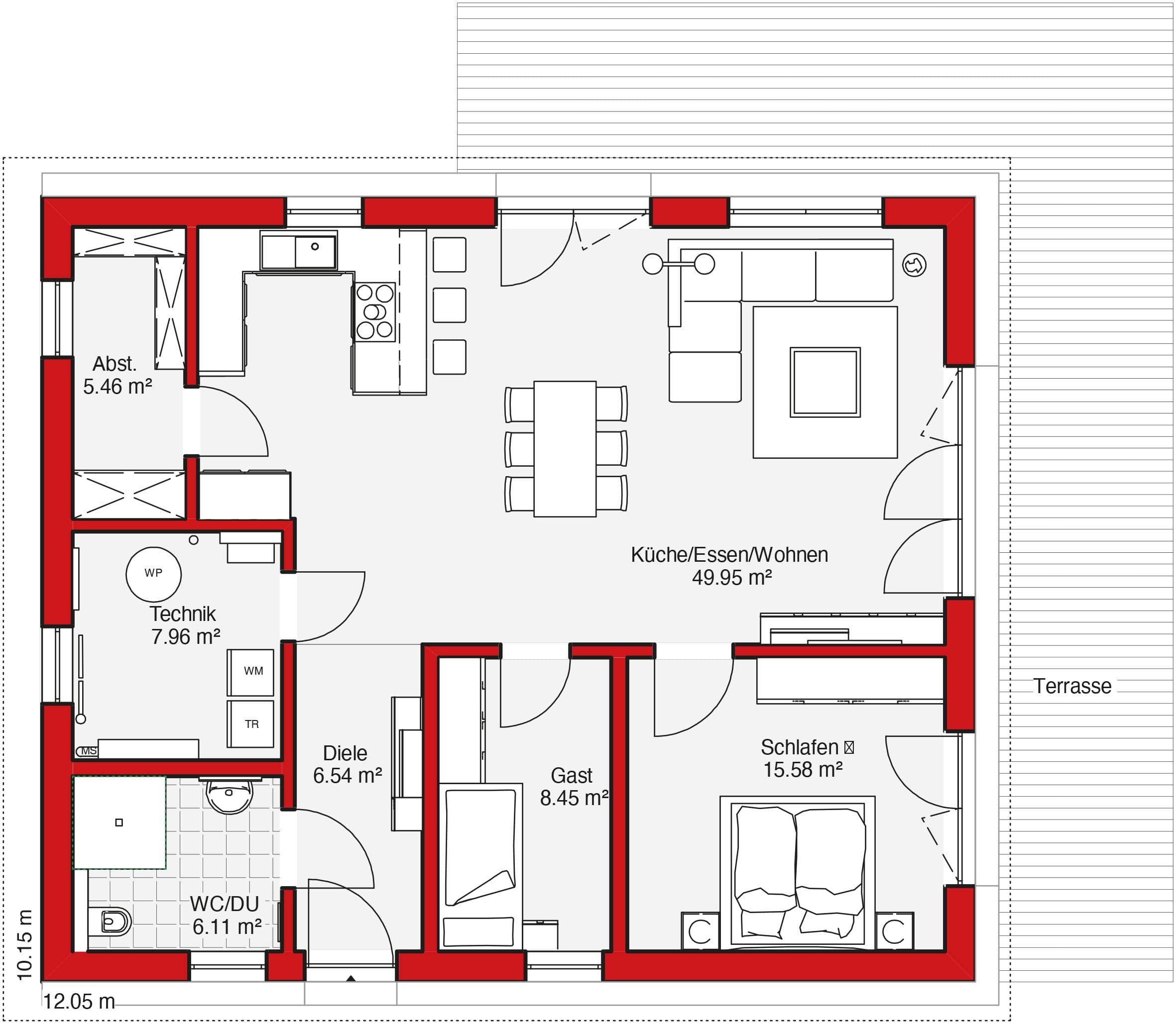
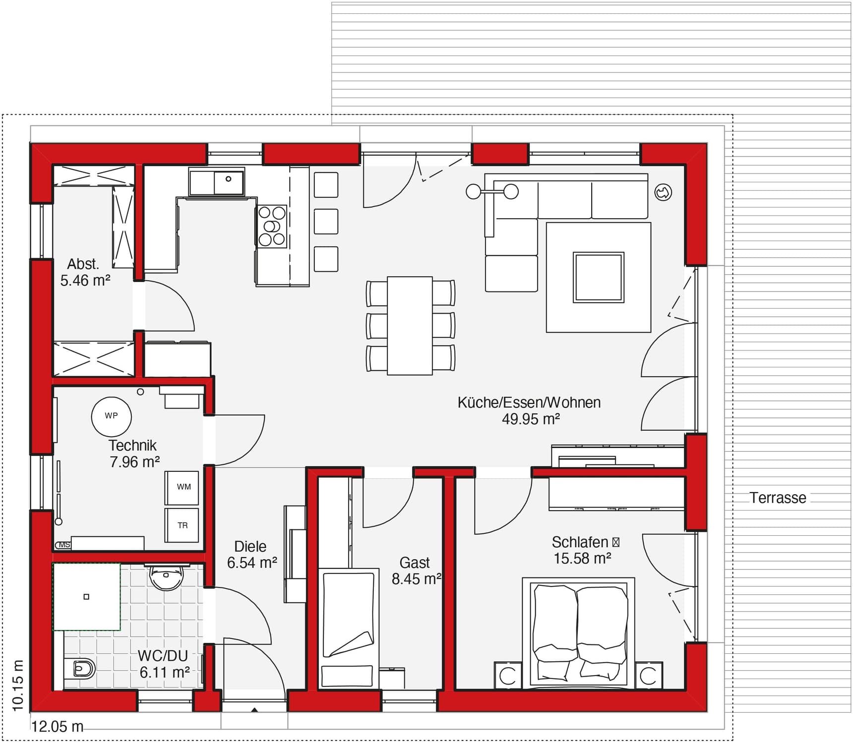
Großer Raum im kleinen Haus

Hier steht hier mit beinahe 50 qm Fläche ein sehr großzügiger Wohn-/Eß-/Kochbereich zur Verfügung. Auch das Schlafzimmer und das Bad sind für zusätzlichen Wohnkomfort ausgelegt.

Hausdaten

Hausart Icon
HausartAktionshaus
Bauweise Icon
BauweiseHolz-Tafelbau
Anzahl Räume Icon
Anzahl Räume3
Baustil Icon
BaustilBungalow
Fassade Icon
FassadePutz
Außenmaße Icon
Außenmaße12.05 m x 10.15 m
Wohnfläche Icon
Wohnfläche100.05 m²
Dachform Icon
DachformWalm-/Zeltdach
Etagen Icon
Etagen1
Energiestandard Icon
EnergiestandardEffizienzhaus 55 EE
Immobilientyp Icon
ImmobilientypPlanungsidee
Dachneigung Icon
Dachneigung22°
Mittlerer U-Wert Icon
Mittlerer U-Wert0.12 W/m²K
Hauseigenschaften Icon
HauseigenschaftenTerasse
Hausdämmstoff Icon
HausdämmstoffHolzfaser- und Zellulosedämmstoffe
Heizungsart Icon
HeizungsartWärmepumpe (Luft, Wasser, oder beides)
Pfeil nach unten linksWir schaffen Platz für Ihre Träume

Grundriss

Bungalow_WD_I_100 - EG.jpg
EDITION B 100 Grundriss (EG)Wohnfläche EG: 10005 m²

Kataloge

WOLF-Haus: Hauskatalog
WOLF-Haus

WOLF-Haus: Hauskatalog


House and TreeParksHouse and PinHäuser liveHouse on HandAnbieter