1. AnbieterArrow Icon
  2. WOLF-HausArrow Icon
  3. EDITION B 80 ELW
Slide 1
Slide 2
Slide 3
Slide 4
Slide 5
no description
WOLF-HausEDITION B 80 ELW
homeBungalow
livingArea80 m²
energyStandardEffizienzhaus 55 EE
Preis anfragen
Katalog bestellen

EDITION B 80 ELW

Zusammen - aber jeder für sich

Die Grundwohnung mit 2 Zimmern wird hier ebenfalls um eine kleine Einliegerwohnung in Form eines 1-Zimmer Appartements mit Dusch-WC erweitert. So lässt es sich gemeinsam und doch komplett eigenständig wohnen.

Hausdaten

Hausart Icon
HausartAktionshaus
Bauweise Icon
BauweiseHolz-Tafelbau
Anzahl Räume Icon
Anzahl Räume3
Baustil Icon
BaustilBungalow
Fassade Icon
FassadePutz
Außenmaße Icon
Außenmaße11.08 m x 9.2 m
Wohnfläche Icon
Wohnfläche79.9 m²
Dachform Icon
DachformWalm-/Zeltdach
Etagen Icon
Etagen1
Energiestandard Icon
EnergiestandardEffizienzhaus 55 EE
Immobilientyp Icon
ImmobilientypPlanungsidee
Dachneigung Icon
Dachneigung22°
Mittlerer U-Wert Icon
Mittlerer U-Wert0.12 W/m²K
Hauseigenschaften Icon
HauseigenschaftenTerasse
Hausdämmstoff Icon
HausdämmstoffHolzfaser- und Zellulosedämmstoffe
Heizungsart Icon
HeizungsartWärmepumpe (Luft, Wasser, oder beides)
Pfeil nach unten linksWir schaffen Platz für Ihre Träume

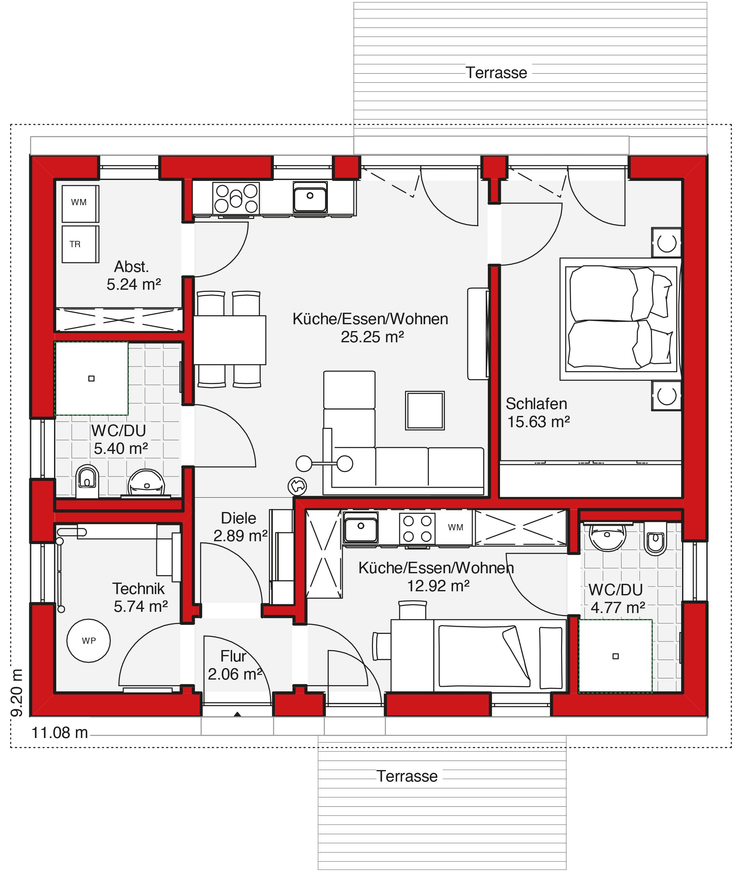
Grundriss

Bungalow_WD_I_80_ELW - EG.jpg
EDITION B 80 ELW Grundriss (EG)Wohnfläche EG: 79,9 m²

Kataloge

WOLF-Haus: Hauskatalog
WOLF-Haus

WOLF-Haus: Hauskatalog


House and TreeParksHouse and PinMusterhausHouse on HandAnbieter