1. AnbieterArrow Icon
  2. WOLF-HausArrow Icon
  3. Die gelungene Kubatur des Raumes
Slide 1
Slide 2
Slide 3
Slide 4
Slide 5
Slide 6
Slide 7
no description
WOLF-HausDie gelungene Kubatur des Raumes
homeKubushäuser im Bauhausstil
livingArea236 m²
energyStandardEffizienzhaus 55
Preis anfragen
Katalog bestellen

Die gelungene Kubatur des Raumes

Das markante Spiel mit kubischen Formen macht diesen Hausentwurf zum modernen Klassiker mit Flachdach. Unterstützt wird die starke Wirkung dabei von der markanten Farbgestaltung.

Die auf das Wesentliche reduzierte Formsprache findet sich auch im Inneren wieder. Schönes Beispiel dafür ist die außergewöhnlich elegante Treppe, die hinter einer Glaswand zu schweben scheint. Beim Grundriss fällt im Erdgeschoss die Verwendung vieler Schiebetüren auf. Um das Haus entstehen zahlreiche, teilweise überdachte Aufenthaltsbereiche.

Hausdaten

Hausart Icon
HausartEinfamilienhaus
Bauweise Icon
BauweiseHolz-Tafelbau
Anzahl Räume Icon
Anzahl Räume6
Baustil Icon
BaustilKubushäuser im Bauhausstil
Fassade Icon
FassadePutz
Außenmaße Icon
Außenmaße14.92 m x 12.23 m
Wohnfläche Icon
Wohnfläche236.02 m²
Dachform Icon
DachformFlachdach
Energiestandard Icon
EnergiestandardEffizienzhaus 55
Immobilientyp Icon
ImmobilientypKundenhaus
Dachneigung Icon
Dachneigung
Hauseigenschaften Icon
HauseigenschaftenGästezimmer
Heizungsart Icon
HeizungsartWärmepumpe (Luft, Wasser, oder beides)
Pfeil nach unten linksWir schaffen Platz für Ihre Träume

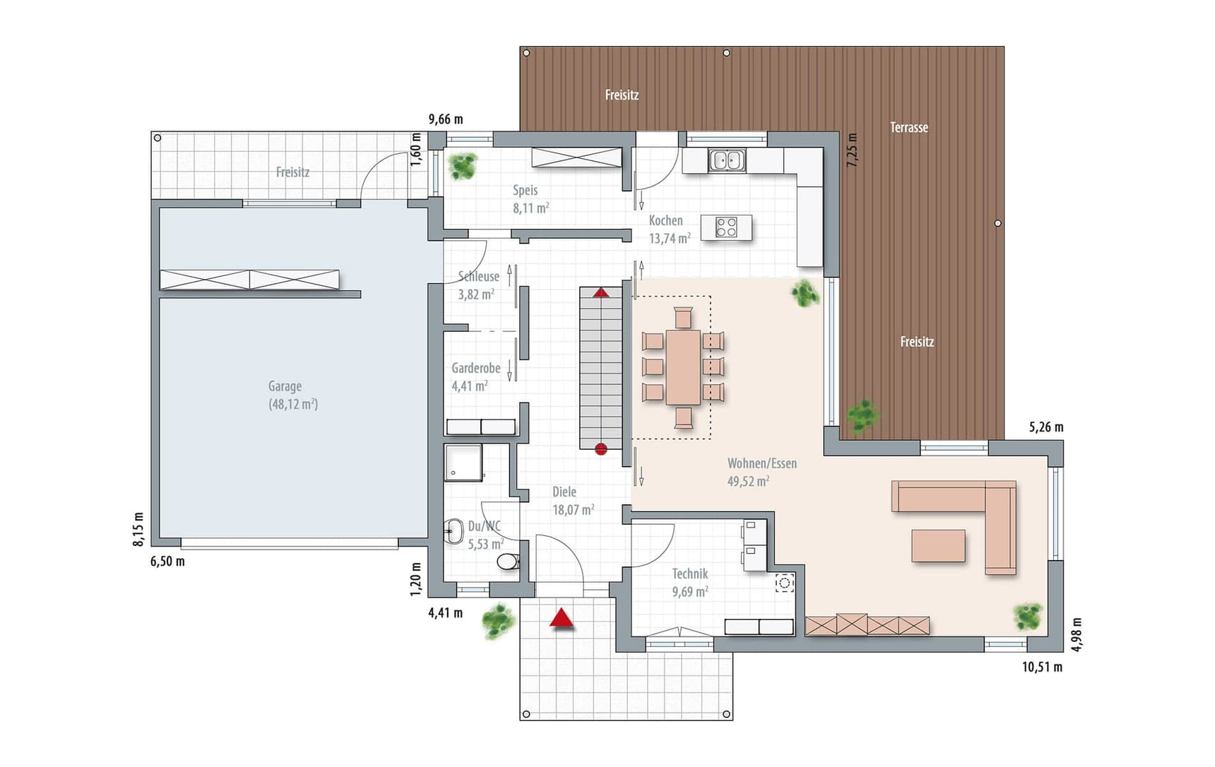
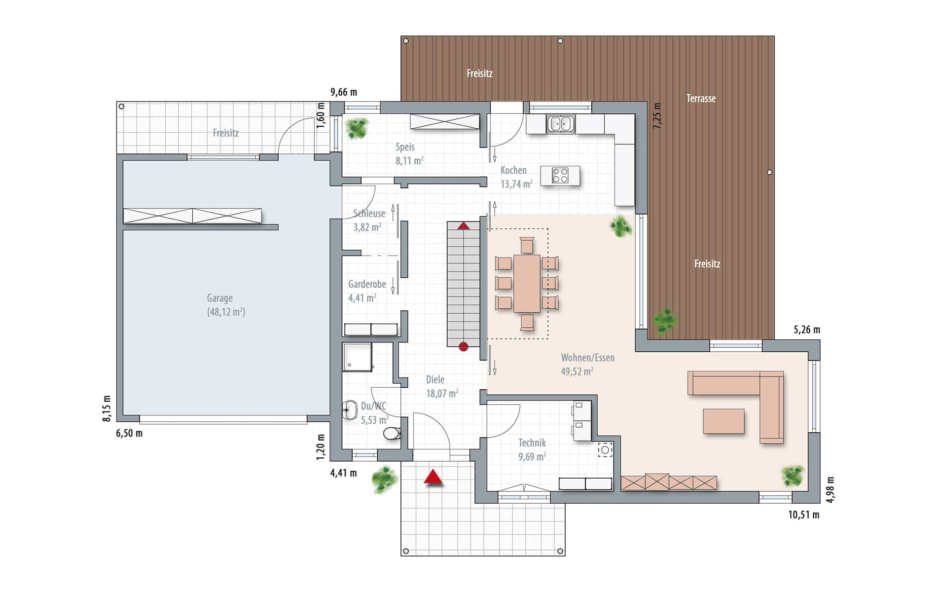
Grundriss

no description
Die gelungene Kubatur des Raumes Grundriss (EG)
no description
Die gelungene Kubatur des Raumes Grundriss (OG)

Kataloge

WOLF-Haus: Hauskatalog
WOLF-Haus

WOLF-Haus: Hauskatalog


House and TreeParksHouse and PinMusterhausHouse on HandAnbieter