1. AnbieterArrow Icon
  2. WeberHausArrow Icon
  3. Musterhaus in Köln
Slide 1
Location Icon
Slide 2
Location Icon
Slide 3
Location Icon
Slide 4
Location Icon
Slide 5
Location Icon
Slide 6
Location Icon
Slide 7
Location Icon
Logo WeberHaus
WeberHausMusterhaus in Köln
homeKlassische Familienhäuser
livingArea164 m²
energyStandardPlusenergiehaus
Preis anfragen

Musterhaus in Köln

Ein Haus am Puls der Zeit 

Ehrgeizige Klimaschutzziele, der Ausbau regenerativer Energien und der Ausbau aus der Atomkraft sorgen dafür, dass sich das bisherige Energieversorgungssystem im Wandel befindet. Das zukünftige Stromnetz ist beispielsweise intelligent und sorgt im Haus dafür, dass viele Technikkomponenten miteinander kommunizieren können: die Waschmaschine, der Wäschetrockner, die Photovoltaikanlage auf dem Dach, der Energiezähler und das öffentliche Stromnetz mit dem Energiemanager. Zukunftsmusik? Von wegen: In der FertighausWelt Köln stellt WeberHaus sein neuestes PlusEnergie-Konzept vor. Das Ausstellungshaus erzeugt mehr Energie, als es selbst benötigt und schafft es außerdem dank innovativem Energiemanagement, Stromerzeuger und Verbraucher so zu vernetzen und zu steuern,

Hausdaten

Hausart Icon
HausartEinfamilienhaus
Bauweise Icon
BauweiseHolz-Tafelbau
Anzahl Räume Icon
Anzahl Räume6
Baustil Icon
BaustilKlassische Familienhäuser
Fassade Icon
FassadePutz
Außenmaße Icon
Außenmaße11.41 m x 10.9 m
Wohnfläche Icon
Wohnfläche163.93 m²
Dachform Icon
DachformVersetztes Pultdach
Etagen Icon
Etagen1.5
Energiestandard Icon
EnergiestandardPlusenergiehaus
Immobilientyp Icon
ImmobilientypMusterhaus
Dachneigung Icon
Dachneigung38°
Kniestock Icon
Kniestock1.5 m
Mittlerer U-Wert Icon
Mittlerer U-Wert0.11 W/m²K
Hauseigenschaften Icon
HauseigenschaftenGästezimmer
Hausdämmstoff Icon
HausdämmstoffMineralfaser (Glaswolle, Steinwolle)
Heizungsart Icon
HeizungsartWärmepumpe (Luft, Wasser, oder beides)
Pfeil nach unten linksWir schaffen Platz für Ihre Träume

Grundriss

no description
Musterhaus in Köln Grundriss (EG)Wohnfläche EG: 90,83 m²
no description
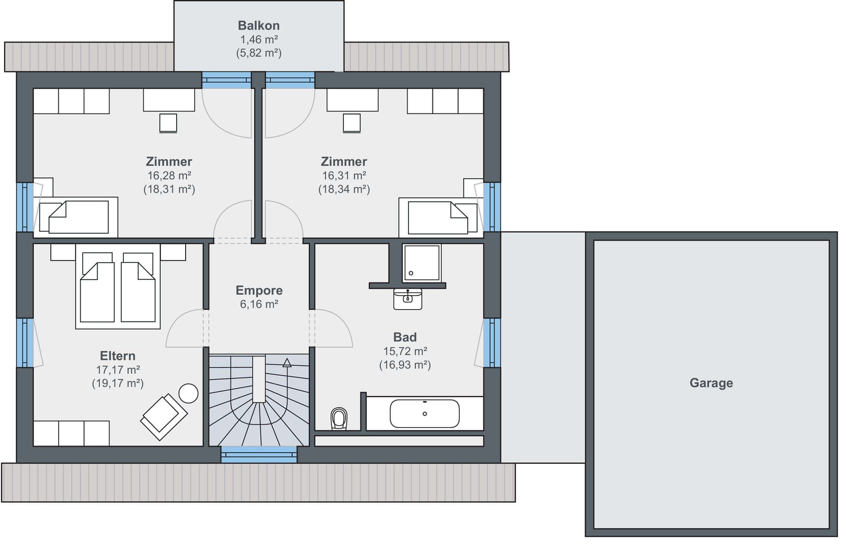
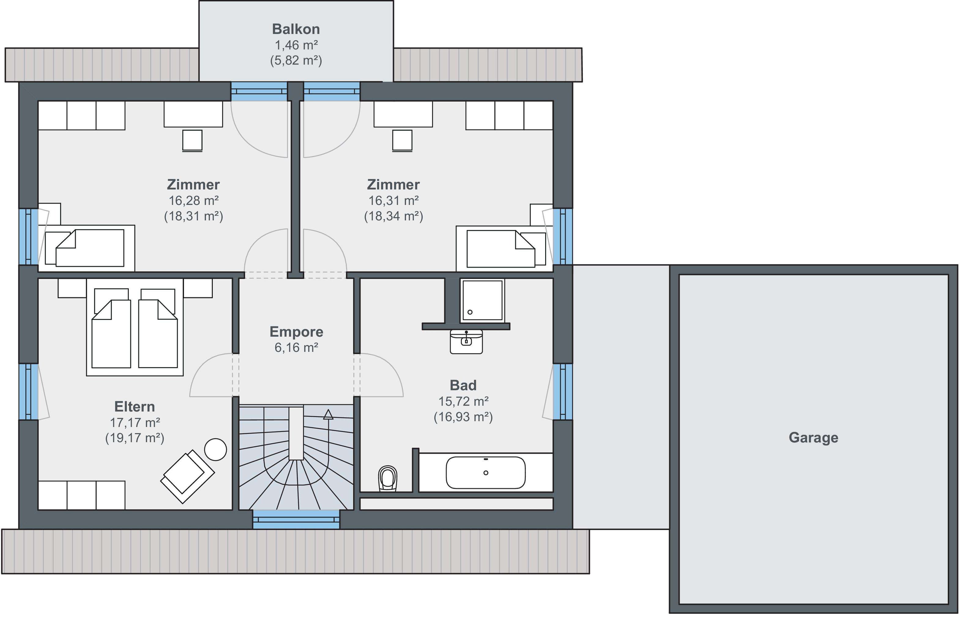
Musterhaus in Köln Grundriss (OG)Wohnfläche OG: 73,1 m²

Öffnungszeiten

Montag:Geschlossen
Dienstag:Geschlossen
Mittwoch:09:00 - 16:00 Uhr
Donnerstag:09:00 - 16:00 Uhr
Freitag:09:00 - 16:00 Uhr
Samstag:09:00 - 16:00 Uhr
Sonntag:09:00 - 16:00 Uhr

(öffnet Mittwoch um 13:00 Uhr)

Pfingstsonntag
10:00 - 17:00 Uhr
Pfingstmontag
10:00 - 17:00 Uhr

Adresse

Europaallee 45
Frechen 50226

Anfahrt planen

Beratungstermin

Fertighaus Team in Frechen
House and TreeParksHouse and PinMusterhausHouse on HandAnbieter