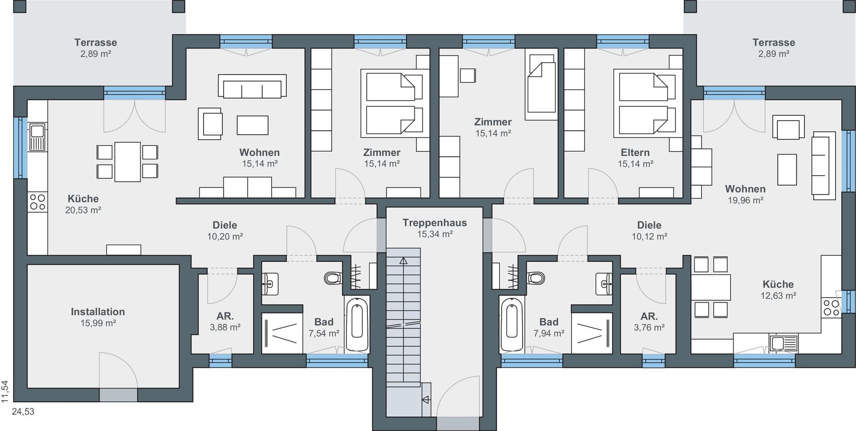
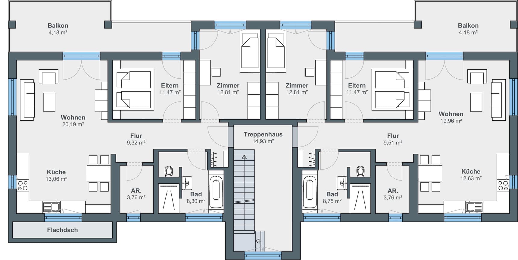
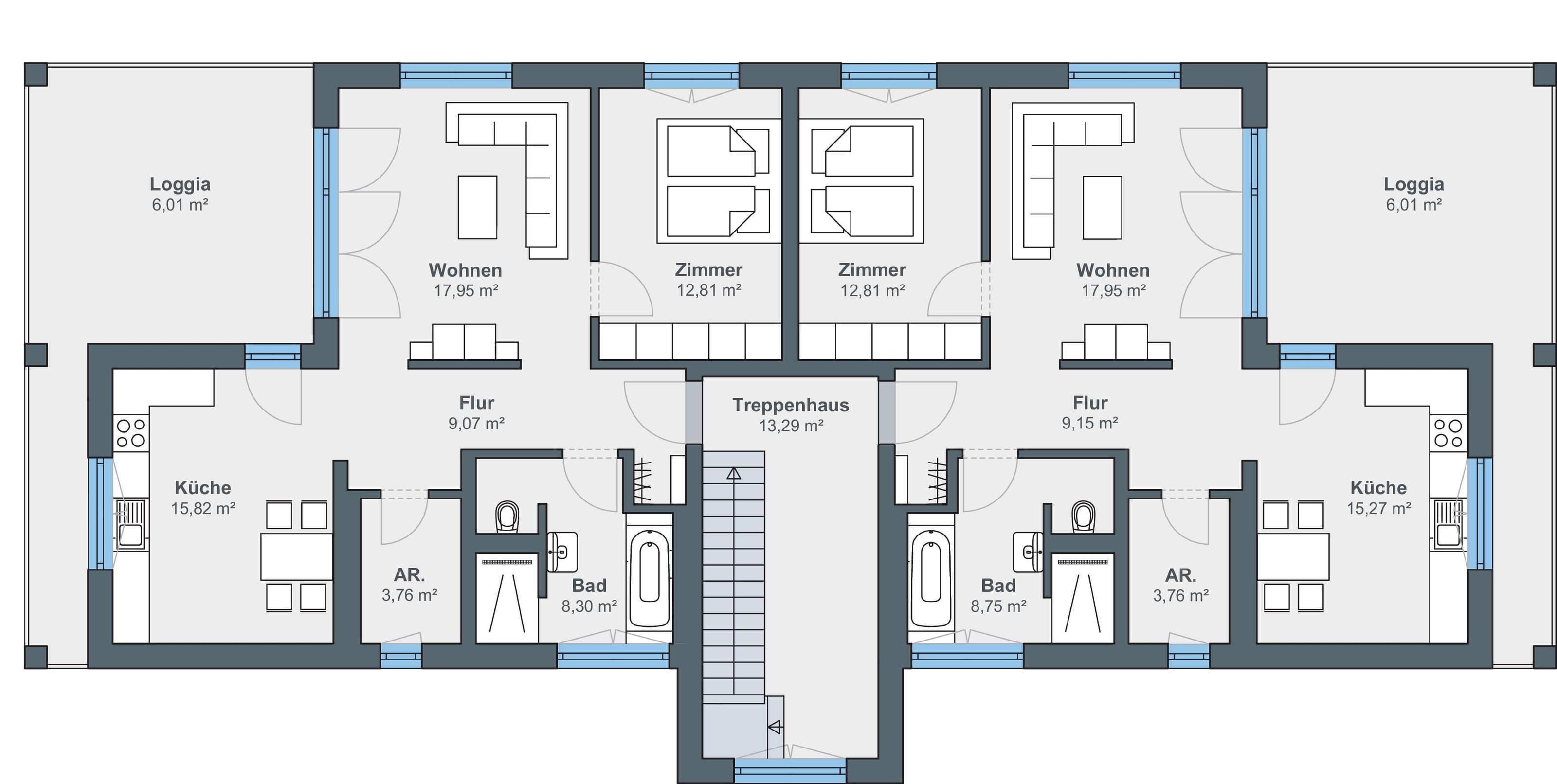
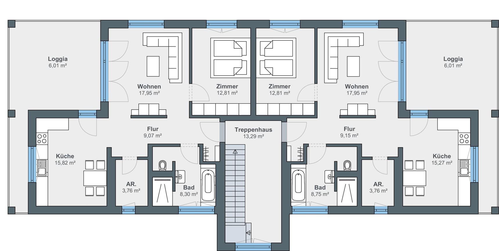
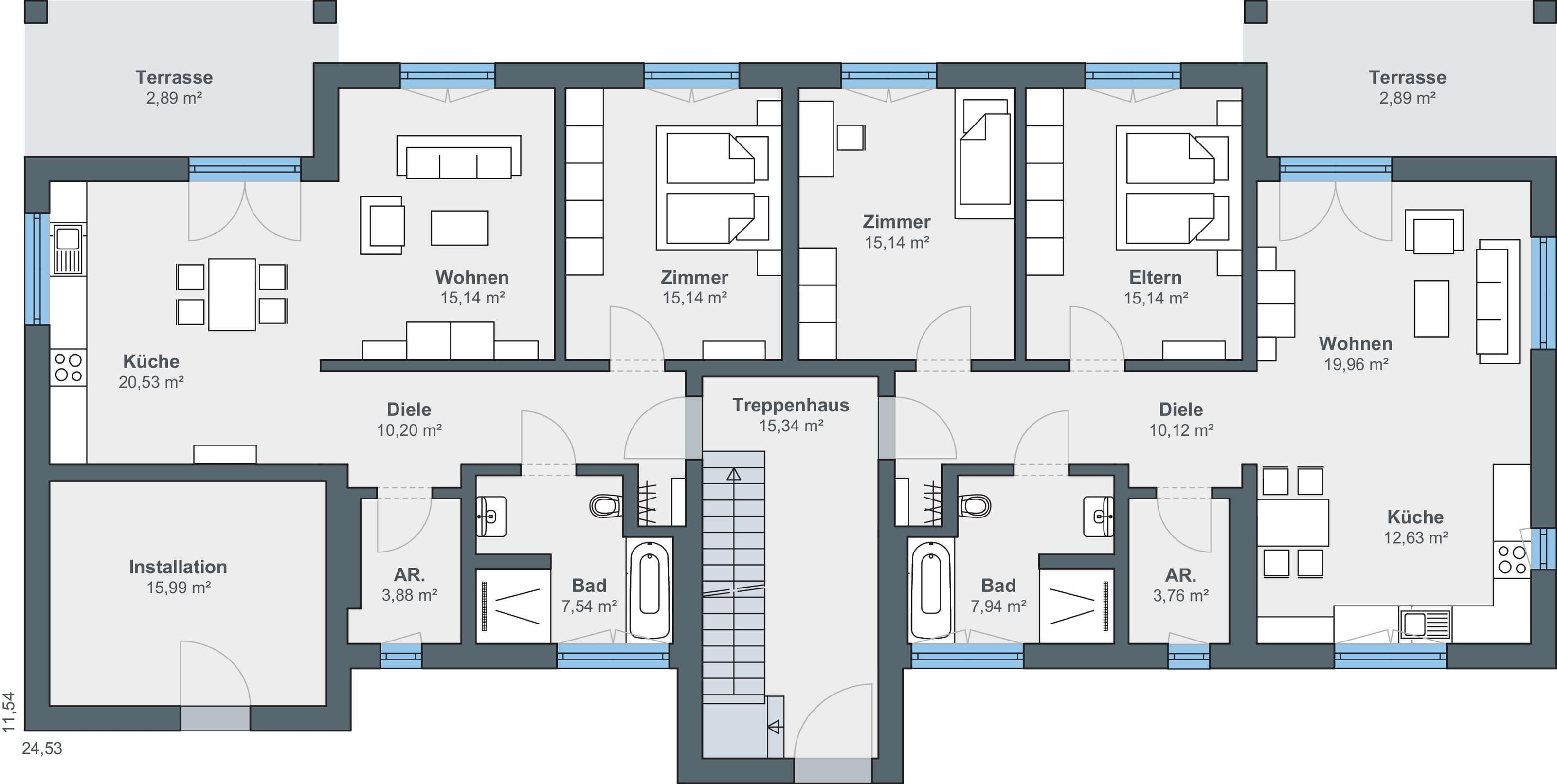
Dieses Mehrfamilienhaus auf Bodenplatte bietet auf drei Etagen sechs Wohnungen. Das zentral platzierte Treppenhaus ermöglicht eine klare Aufteilung mit je einer Wohnung pro Seite. Die Grundrisse umfassen ein Bad mit Dusche und Wanne, einen offenen Wohn-Ess-Kochbereich, ein Schlafzimmer sowie eine Abstellkammer. Drei Wohnungen verfügen zusätzlich über ein weiteres Zimmer, nutzbar als Kinder-, Gäste- oder Arbeitszimmer. Terrasse, Balkon oder Loggia erweitern den Wohnraum. Eine Photovoltaik-Anlage auf dem Flachdach liefert umweltfreundlichen Strom für die Mieter. Die Heiztechnik ist platzsparend im Erdgeschoss untergebracht.


