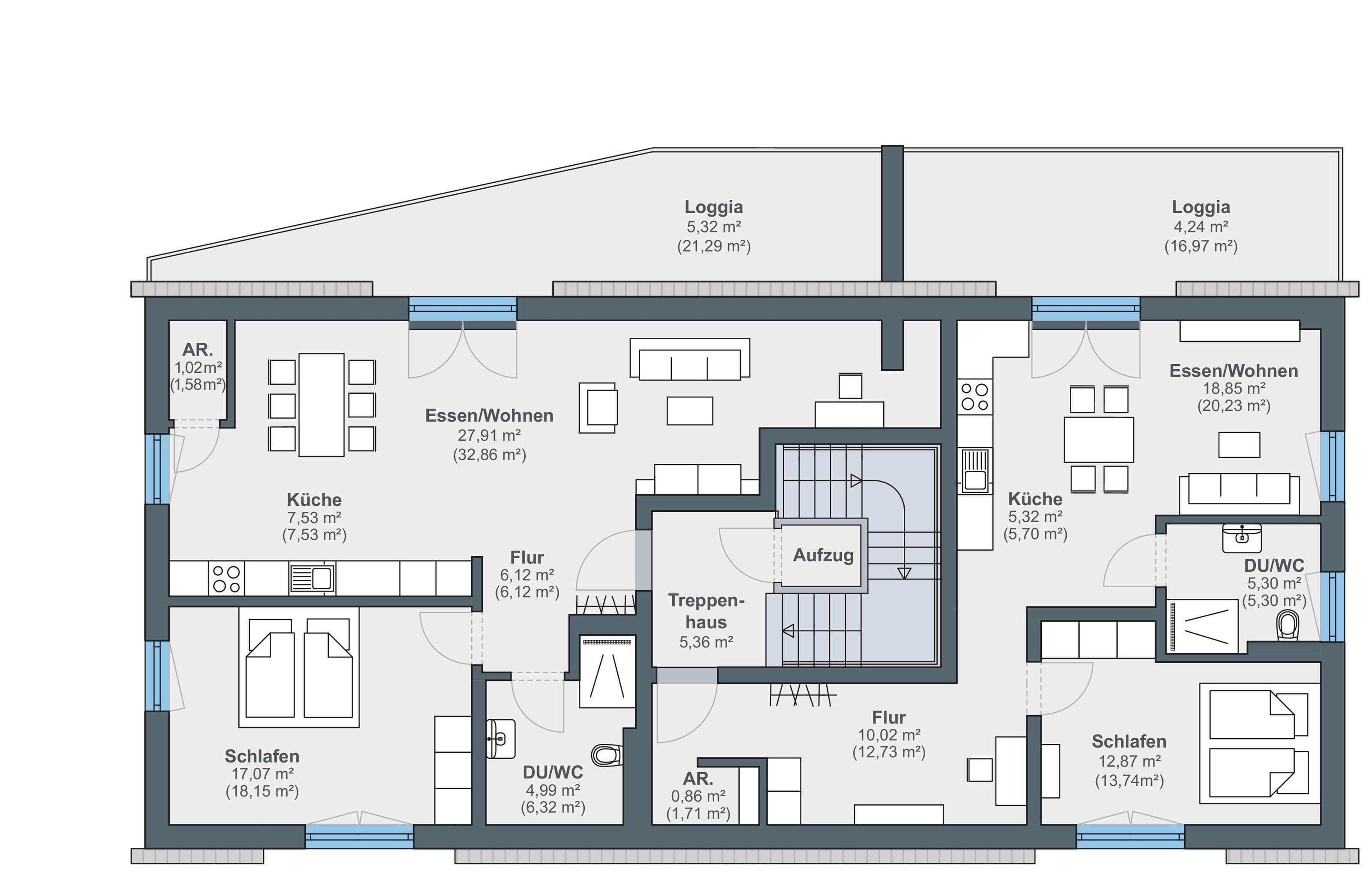
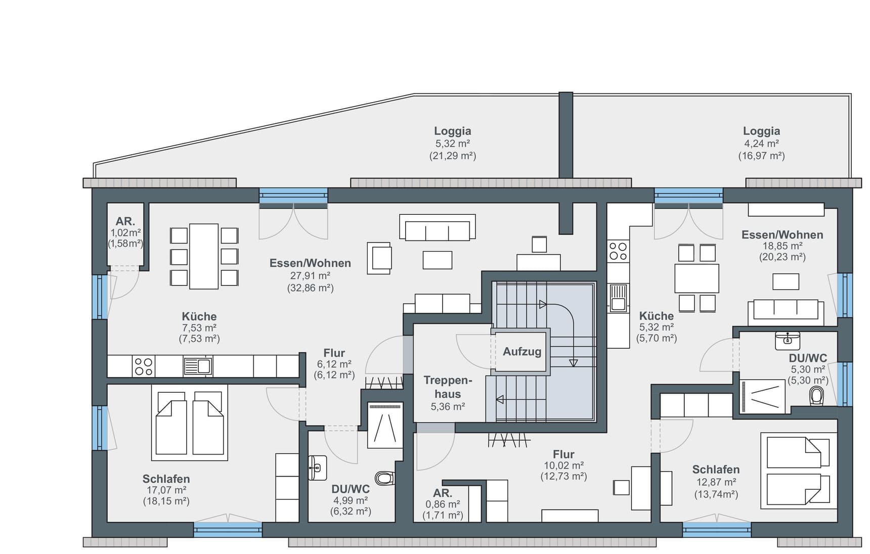
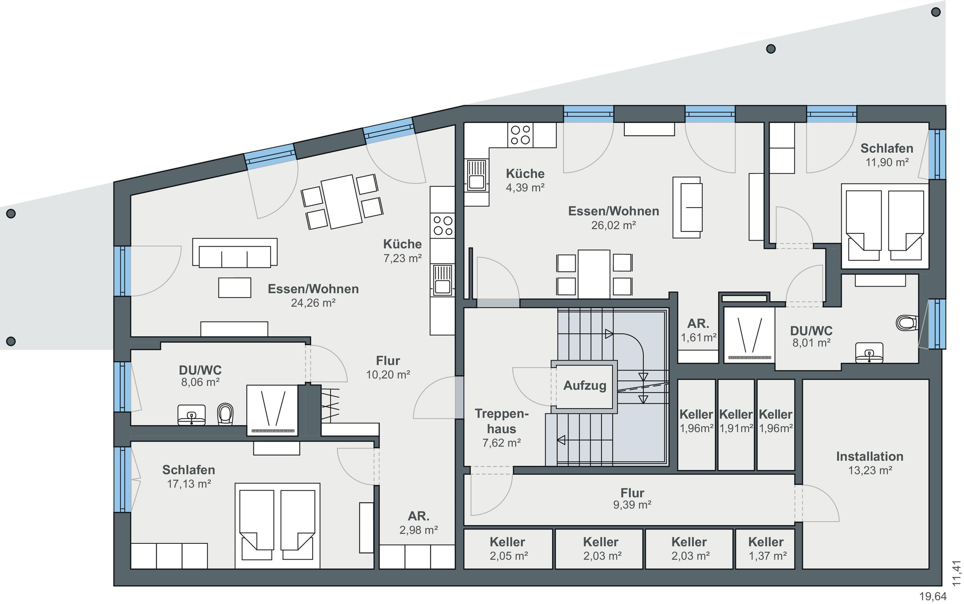
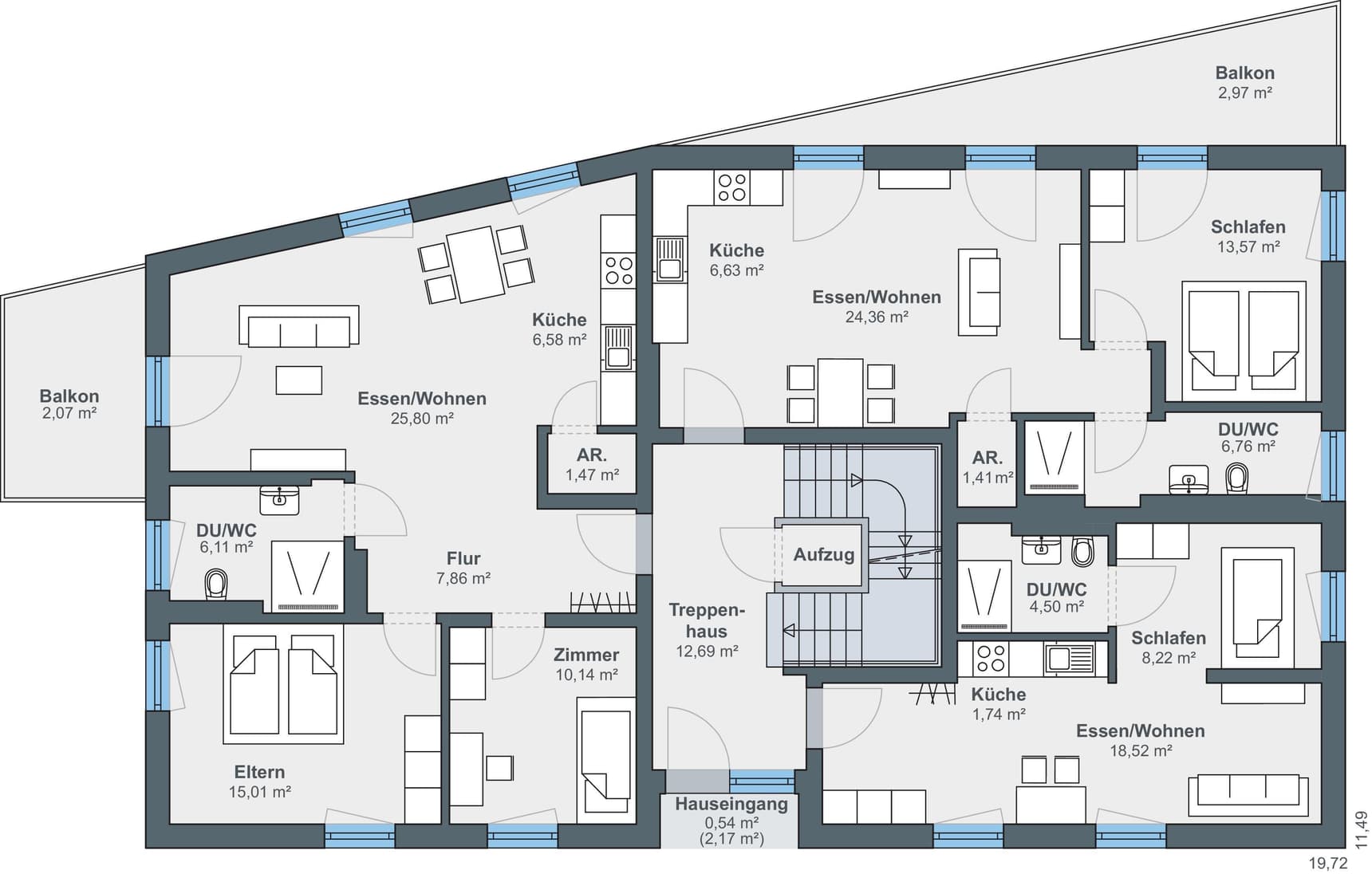
Dieses moderne Haus in Hanglage erstreckt sich über drei Etagen und kombiniert zeitgemäßes Wohnen mit umweltfreundlicher Energiegewinnung. Zwei Photovoltaik-Anlagen auf dem Satteldach ermöglichen den Bewohnern die Nutzung von selbst erzeugtem Strom.
Das Gebäude umfasst sieben unterschiedlich große Wohnungen – fast alle mit großzügigen Terrassen oder Balkonen. Ein zentrales Treppenhaus mit Aufzug verbindet die Etagen. Im Untergeschoss befinden sich zwei Wohnungen sowie Keller- und Technikräume, im Erdgeschoss drei weitere Einheiten und im Dachgeschoss zwei Wohnungen. Dank ökologischer Holzfertigbauweise überzeugt das Haus mit hoher Energieeffizienz, gesundem Raumklima und einer Festpreisgarantie für maximale Planungssicherheit.


