1. AnbieterArrow Icon
  2. WeberHausArrow Icon
  3. Jubiläumshaus Balance 355
Slide 1
Slide 2
Slide 3
Logo WeberHaus
WeberHausJubiläumshaus Balance 355
homeKlassische Familienhäuser
livingArea163 m²
energyStandardEffizienzhaus 55
Preis anfragen
Katalog bestellen

Jubiläumshaus Balance 355

Clever gedacht - perfekt geplant.

Dieses Jubiläumshaus zeichnet sich durch Großzügigkeit und Offenheit aus. Die hervorragend gedämmte Gebäudehülle ÖvoNatur Therm in Kombination mit innovativer Frischluft-Wärmetechnik macht das Balance 355 zu einem äußerst energieeffizienten Eigenheim.

Anlässlich des 65. Jubiläums von WeberHaus bieten wir dieses Traumhaus derzeit zum attraktiven Jubiläumspreis an.

Aktionspreis: 348.650,-€ (Preis-Basis ist die Ausbaustufe “Bad komplett” inklusive Bodenplatte)
Preisstand: 01.05.2025

Hausdaten

Hausart Icon
HausartAktionshaus
Bauweise Icon
BauweiseHolz-Tafelbau
Anzahl Räume Icon
Anzahl Räume6
Baustil Icon
BaustilKlassische Familienhäuser
Fassade Icon
FassadePutz
Außenmaße Icon
Außenmaße9.85 m x 11.1 m
Wohnfläche Icon
Wohnfläche163.31 m²
Dachform Icon
DachformSattel-/Giebeldach
Etagen Icon
Etagen1.5
Energiestandard Icon
EnergiestandardEffizienzhaus 55
Immobilientyp Icon
ImmobilientypPlanungsidee
Dachneigung Icon
Dachneigung30°
Kniestock Icon
Kniestock160 m
Mittlerer U-Wert Icon
Mittlerer U-Wert0.11 W/m²K
Hauseigenschaften Icon
HauseigenschaftenViel Glas, Terasse
Hausdämmstoff Icon
HausdämmstoffMineralfaser (Glaswolle, Steinwolle)
Heizungsart Icon
HeizungsartWärmepumpe (Luft, Wasser, oder beides)
Pfeil nach unten linksWir schaffen Platz für Ihre Träume

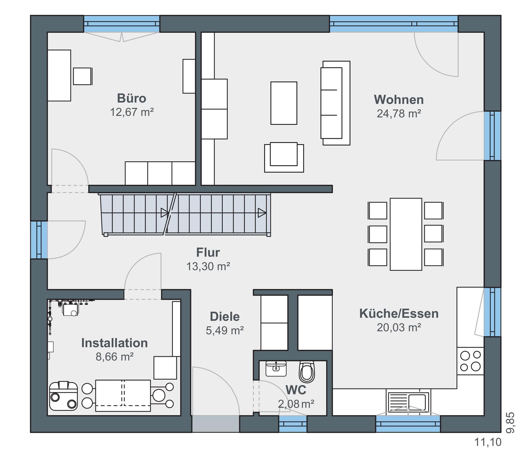
Grundriss

Jubiläumhaus 65 Jahre WeberHaus
Jubiläumshaus Balance 355 Grundriss (EG)Wohnfläche EG: 87,01 m²
Jubiläumhaus 65 Jahre WeberHaus
Jubiläumshaus Balance 355 Grundriss (DG)Wohnfläche DG: 76,3 m²

Kataloge

WeberHaus: OPTION
WeberHaus

WeberHaus: OPTION


WeberHaus: Objektbau Katalog
WeberHaus

WeberHaus: Objektbau Katalog


WeberHaus: Hauskatalog
WeberHaus

WeberHaus: Hauskatalog


House and TreeParksHouse and PinMusterhausHouse on HandAnbieter