1. AnbieterArrow Icon
  2. WeberHausArrow Icon
  3. Musterhaus in München
Slide 1
Location Icon
Slide 2
Location Icon
Slide 3
Location Icon
Slide 4
Location Icon
Slide 5
Location Icon
Slide 6
Location Icon
Slide 7
Location Icon
Slide 8
Location Icon
Logo WeberHaus
WeberHausMusterhaus in München
homeKubushäuser im Bauhausstil
livingArea205 m²
energyStandardEffizienzhaus 55
Preis anfragen

Musterhaus in München

Exklusives Haus mit architektonischer Raffinesse

Die moderne Villa wurde von dem Architekten Hamid von Berg-Hadjoudj entworfen und von Villa Projects, einem namhaften Innenarchitekturbüro, weiterentwickelt. Die Basis ist ein klarer, weißer Kubus, der durch auskragende Elemente akzentuiert wird. Für viel Transparenz sorgen großzügige Glasflächen. Die offene Struktur lässt die Grenzen zwischen Innen und Außen verschwimmen. Balkone und Terrassen laden zum Entspannen ein. Eine Doppelgarage grenzt direkt an das Haus an. Die Villa bietet mit über 200 Quadratmetern Wohnfläche großzügigen Raum für Familien oder Paare, die eine offene Architektur wertschätzen. Mit dem frei geplanten Architektenhaus stellt WeberHaus erneut unter Beweis, dass sich modernes Design, Premium-Qualität und eine nachhaltige Holzbauweise keineswegs ausschließen.

Hausdaten

Hausart Icon
HausartEinfamilienhaus
Bauweise Icon
BauweiseHolz-Tafelbau
Anzahl Räume Icon
Anzahl Räume7
Baustil Icon
BaustilKubushäuser im Bauhausstil
Fassade Icon
FassadePutz
Außenmaße Icon
Außenmaße13.07 m x 19.99 m
Wohnfläche Icon
Wohnfläche204.77 m²
Dachform Icon
DachformFlachdach
Etagen Icon
Etagen2
Energiestandard Icon
EnergiestandardEffizienzhaus 55
Immobilientyp Icon
ImmobilientypMusterhaus
Mittlerer U-Wert Icon
Mittlerer U-Wert0.11 W/m²K
Hauseigenschaften Icon
HauseigenschaftenTerasse, Balkon, Keller, Viel Glas
Hausdämmstoff Icon
HausdämmstoffMineralfaser (Glaswolle, Steinwolle)
Heizungsart Icon
HeizungsartWärmepumpe (Luft, Wasser, oder beides)
Pfeil nach unten linksWir schaffen Platz für Ihre Träume

Grundriss

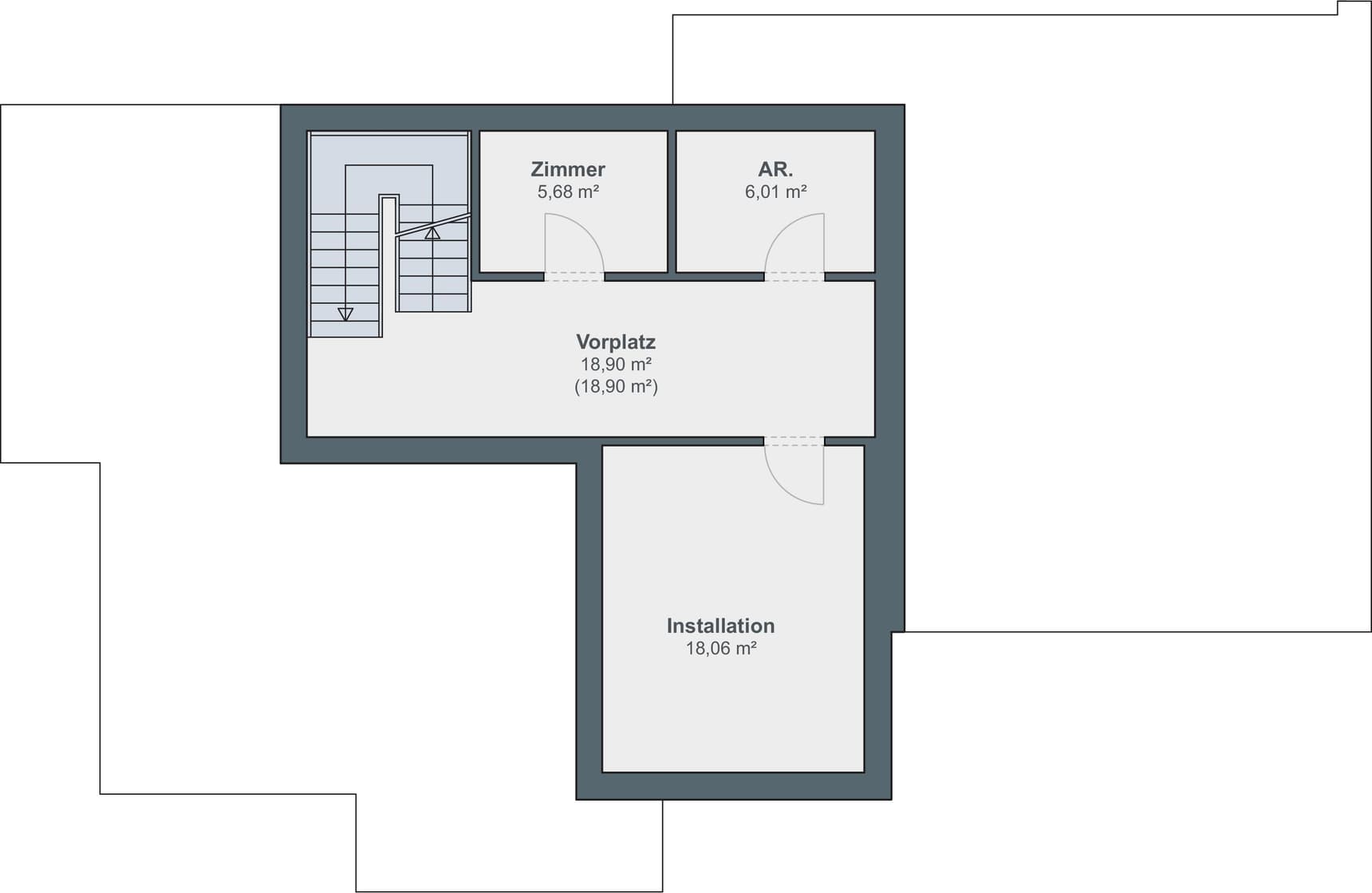
Keller-Grundriss Ausstellungshaus München
Musterhaus in München Grundriss (Keller)
Erdgeschoss-Grundriss Ausstellungshaus München
Musterhaus in München Grundriss (EG)Wohnfläche EG: 106,29 m²
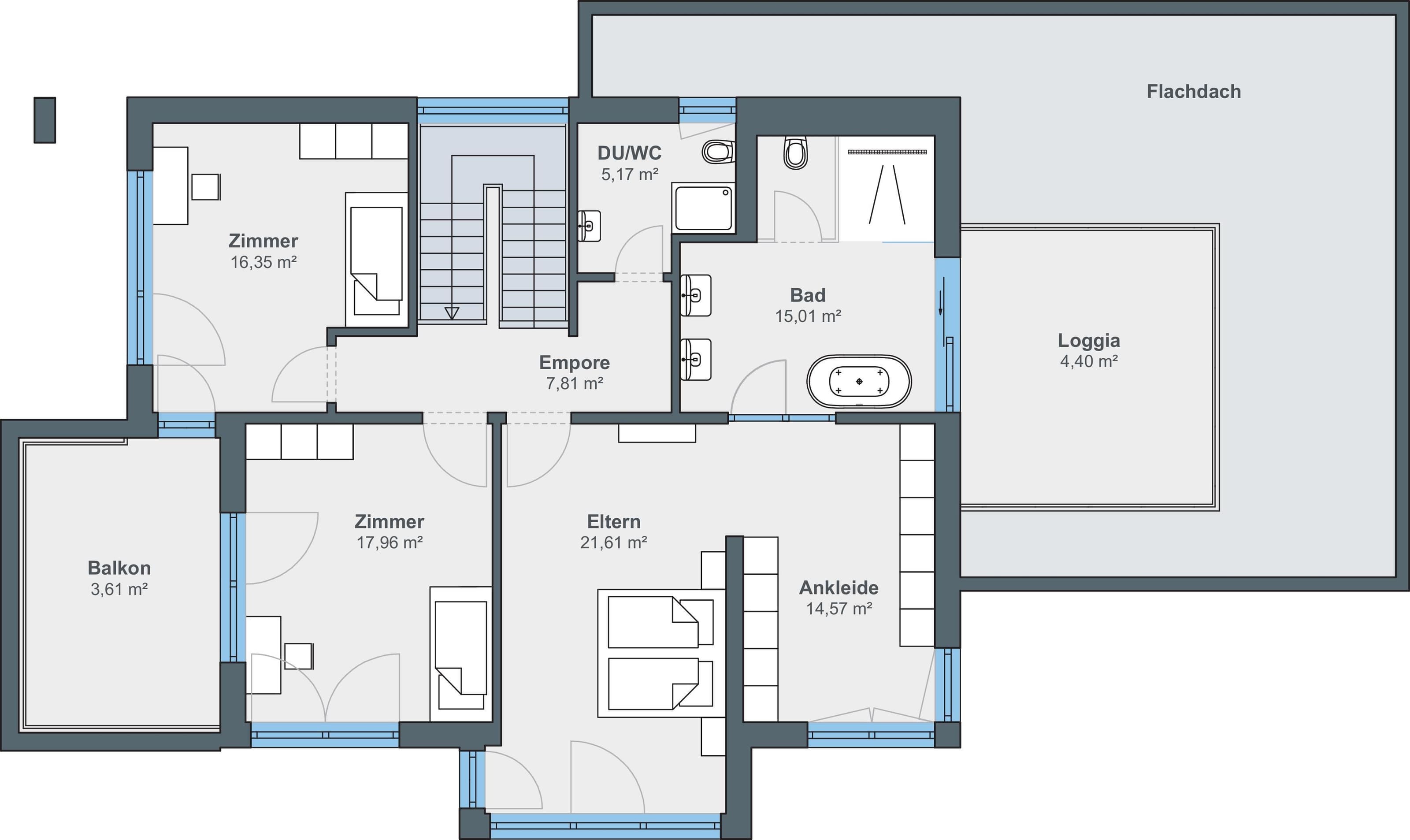
Obergeschoss-Grundriss Ausstellungshaus München
Musterhaus in München Grundriss (OG)Wohnfläche OG: 98,48 m²

Öffnungszeiten

Montag:Geschlossen
Dienstag:08:00 - 15:00 Uhr
Mittwoch:08:00 - 15:00 Uhr
Donnerstag:08:00 - 15:00 Uhr
Freitag:08:00 - 15:00 Uhr
Samstag:08:00 - 15:00 Uhr
Sonntag:11:00 - 15:00 Uhr

(öffnet Dienstag um 12:00 Uhr)

Adresse

Senator-Gerauer-Straße 25
Poing-Grub bei München 85586

Anfahrt planen

Beratungstermin

Fertighaus Team in Poing-Grub bei München
House and TreeParksHouse and PinMusterhausHouse on HandAnbieter