1. AnbieterArrow Icon
  2. STREIF HausArrow Icon
  3. Musterhaus Schkeuditz
Slide 1
Location Icon
Slide 2
Location Icon
Slide 3
Location Icon
Slide 4
Location Icon
no description
STREIF HausMusterhaus Schkeuditz
homeStadtvillen
livingArea129 m²
energyStandardEffizienzhaus 40
Preis anfragen

Musterhaus Schkeuditz

Sie möchten ein Fertighaus bauen und sich gerne vorab live und in Farbe über die verschiedenen Möglichkeiten informieren? Lernen Sie STREIF als Fertighausbaupartner kennen und besuchen Sie uns im Musterhaus Schkeuditz bei Leipzig.

Dieses Musterhaus (STREIF-Haus-ID: MV-SV-WD-129) präsentiert sich als moderne 2-geschossige Stadtvilla mit Walmdach, inspiriert vom Landhaus- und Scandi-Stil. Sprossenfenster, helle Farben, ein Erker mit Dachterrasse und ein überdachter Eingangsbereich verleihen dem Haus seinen besonderen Charme. Das Innere des Hauses bietet eine durchdachte Raumaufteilung und lichtdurchflutetes Wohnen. 

Weitere Informationen und eine Bildergalerie finden sie auf unserer Webseite unter STREIF-Musterhaus Leipzig

Hausdaten

Hausart Icon
HausartEinfamilienhaus
Bauweise Icon
BauweiseHolz-Tafelbau
Baustil Icon
BaustilStadtvillen
Fassade Icon
FassadePutz
Wohnfläche Icon
Wohnfläche129 m²
Dachform Icon
DachformWalm-/Zeltdach
Etagen Icon
Etagen2
Energiestandard Icon
EnergiestandardEffizienzhaus 40
Immobilientyp Icon
ImmobilientypMusterhaus
Hauseigenschaften Icon
HauseigenschaftenErker
Hausdämmstoff Icon
HausdämmstoffMineralfaser (Glaswolle, Steinwolle)
Heizungsart Icon
HeizungsartWärmepumpe (Luft, Wasser, oder beides)
Pfeil nach unten linksWir schaffen Platz für Ihre Träume

Grundriss

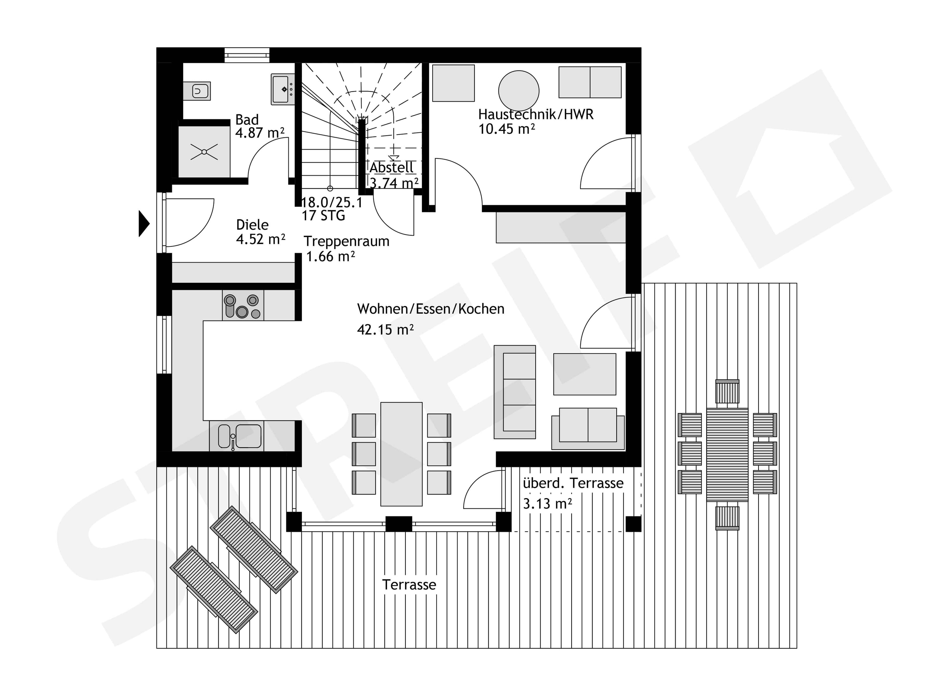
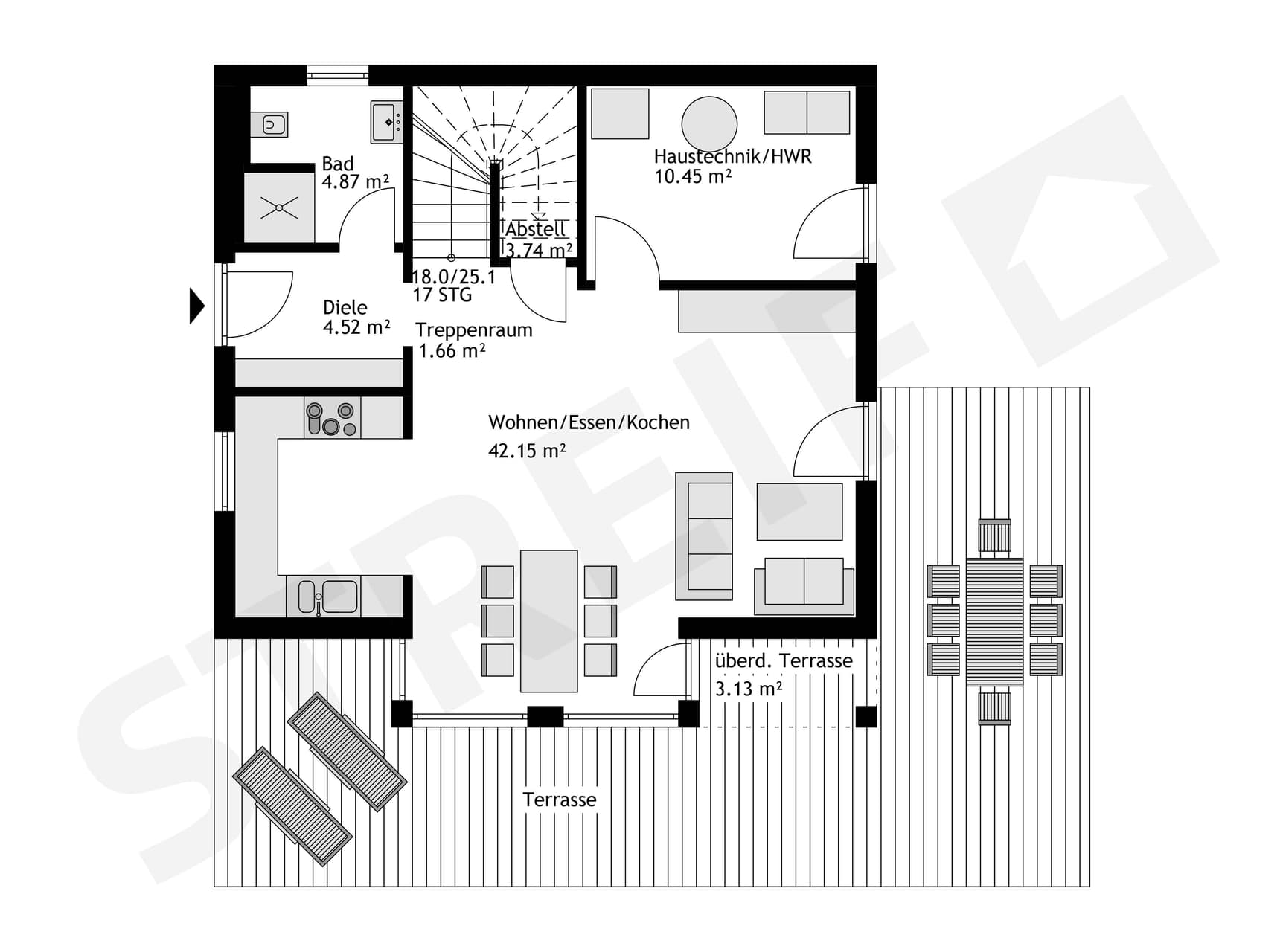
streif-musterhaus-schkeuditz-grundriss-eg
Musterhaus Schkeuditz Grundriss (EG)
streif-musterhaus-schkeuditz-grundriss-og
Musterhaus Schkeuditz Grundriss (OG)

Unser Team vor Ort

Joachim KöhlerFachberater*in bei STREIF Haus
no description
Wir beraten Sie gerne!Arrow Icon
House and TreeParksHouse and PinMusterhausHouse on HandAnbieter