1. AnbieterArrow Icon
  2. STREIF HausArrow Icon
  3. Klassiker City - Modernes Stadthaus
Fertighaus Stadtvilla zweigeschossig kubisch Walmdach mit Überstand weißer Putz graue Akzente rechteckige Fenster Carport Terrasse Einfahr
no description
STREIF HausKlassiker City - Modernes Stadthaus
homeStadtvillen
livingArea159 m²
energyStandardEffizienzhaus 40
Preis anfragen
Katalog bestellen

Klassiker City - Modernes Stadthaus

Diese Stadtvilla (STREIF-Haus-ID: TH-SV-WD-159) zeigt einen klar strukturierten, zweigeschossigen Baukörper mit Walmdach und überdachtem Eingangsbereich. Die Fassade ist in hellem Putz gehalten und wird durch graue Akzente gegliedert. Rechteckige Fenster sorgen für eine gleichmäßige Belichtung.

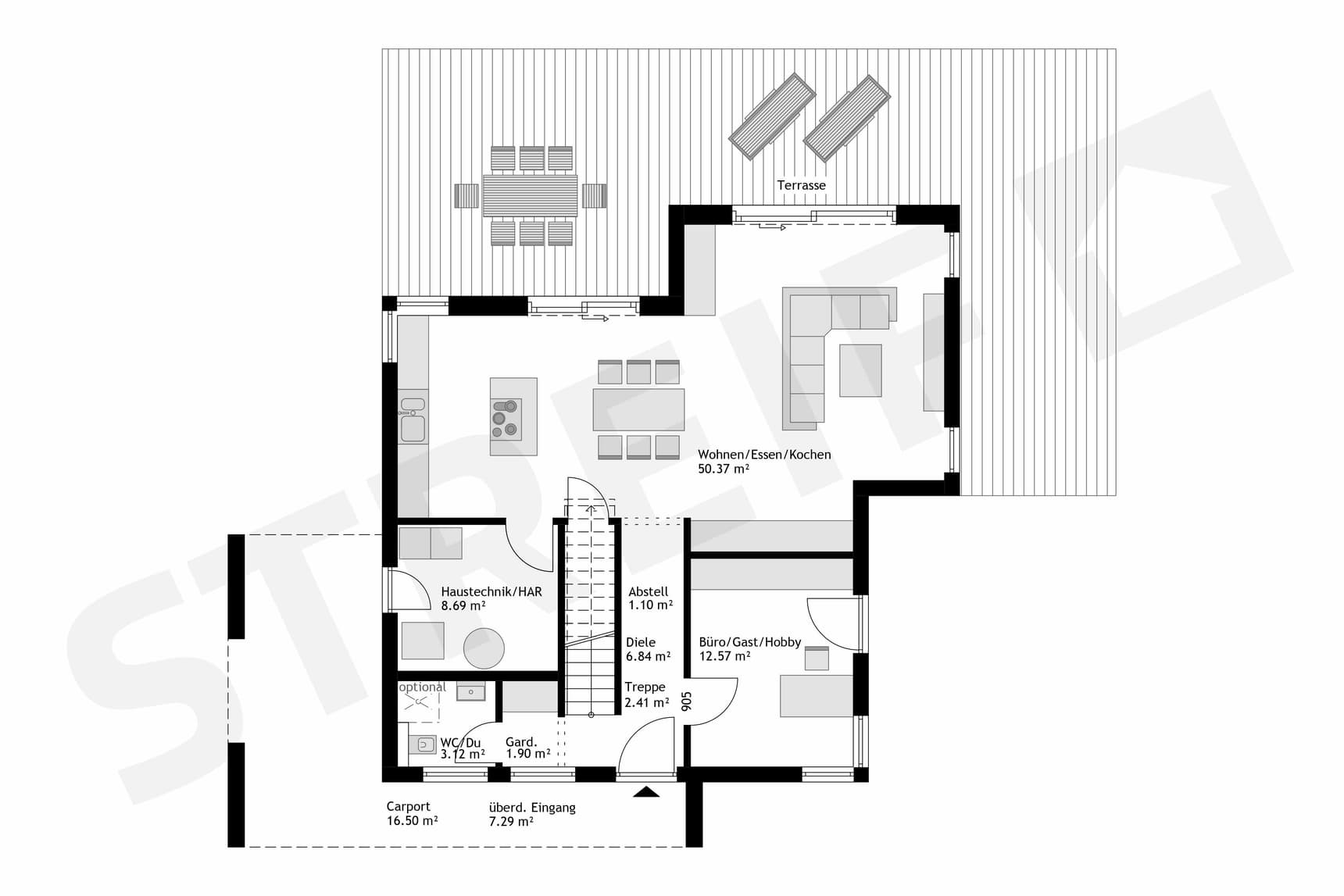
Im Erdgeschoss befindet sich ein zentral erschlossener Wohn-, Ess- und Kochbereich mit direktem Zugang zur Terrasse. Ergänzt wird die Ebene durch ein separates Büro, Hauswirtschaftsraum sowie einen überdachten Eingang mit Carport.

Das Obergeschoss ist kompakt organisiert und bietet drei Schlafzimmer, ein Bad sowie eine Ankleide. Die Räume sind über einen mittig angeordneten Flur verbunden.

Weitere Informationen zu dieser Hausbaureihe finden Sie hier

Ausstattung

STREIF-Energiespar-Häuser sind für die Effizienzhaus-Klasse 40* vorbereitet. (*In Abhängigkeit von Gebäudestandort, Gebäudeausrichtung, Fensterflächenanteile, Haustechnik usw. können zusätzliche oder abweichende Leistungen erforderlich werden, die im Zuge der Bauantragsbewertung/-erstellung bewertet werden.)

Gegen Aufpreis erstellen wir eine Ökobilanzierung für Ihr Haus oder führen eine vollständige Nachhaltigkeitszertifizierung nach QNG durch. Für das Erreichen der Vorgaben des Qualitätssiegels Nachhaltiges Gebäude (QNG) für eine Ökobilanzierung oder eine Nachhaltigkeitszertifizierung wird zusätzlich eine Photovoltaik-Anlage mit Batteriespeicher benötigt. Mit dem Erfüllen dieser und weiterer Anforderungen wird Ihr Haus nach den neuen KfW-Förderrichtlinien für den Klimafreundlichen Neubau (KFN) förderfähig. 

Die Außenwände im Passiv-Haus-Standard und eine sparsame Heiztechnik mit integrierter Wohnraumlüftung und Wärmerückgewinnung, garantieren einen geringen Energieverbrauch und ein fantastisches Raumklima, das insbesondere Allergiker aufatmen lässt. 

STREIF Leistungen sind MEHR WERT - schon im Grundpreis enthalten!
- 20-monatige Festpreisgarantie 
- Inkl. individuelle Grundrissgestaltung und Raumaufteilung
- Inkl. gedämmte Fundamentplatte
- Inkl. STREIF-Luft-Luft-Wärmepumpen-Technologie mit integrierter Lüftungsanlage mit Wärmerückgewinnung
- Inkl. Haustür von KERA und Fenster von Porta/Kömmerling
- Inkl. Sanitärobjekte von Markenherstellern

- Inkl. Massivholz-Geschosstreppe aus eigener Produktion (außer beim Hausentwurf Bungalow)
- Inkl. Elektroinstallation u. v. m.

Die hohe Wertigkeit und Langlebigkeit eines STREIF-Energiespar-Hauses wird durch zahlreiche Auszeichnungen, Qualitäts- und Gütesiegel unabhängiger Institute und Verbände dokumentiert.

Hausdaten

Hausart Icon
HausartEinfamilienhaus
Bauweise Icon
BauweiseHolz-Tafelbau
Baustil Icon
BaustilStadtvillen
Fassade Icon
FassadePutz
Wohnfläche Icon
Wohnfläche159 m²
Dachform Icon
DachformWalm-/Zeltdach
Etagen Icon
Etagen2
Energiestandard Icon
EnergiestandardEffizienzhaus 40
Pfeil nach unten linksWir schaffen Platz für Ihre Träume

Grundriss

Fertighaus Stadtvilla Grundriss Erdgeschoss kompakt zentraler Flur offene Küche Wohnen Essen Terrasse Büro Haustechnik Carport Eingang
Klassiker City - Modernes Stadthaus Grundriss (EG)
Fertighaus Stadtvilla Grundriss Obergeschoss kompakt Flur drei Schlafzimmer Ankleide Bad Treppe mittig angeordnet
Klassiker City - Modernes Stadthaus Grundriss (OG)

Kataloge

STREIF Haus - Prospekt
STREIF Haus

STREIF Haus - Prospekt


STREIF Haus - Kundenmagazin
STREIF Haus

STREIF Haus - Kundenmagazin


House and TreeParksHouse and PinHäuser liveHouse on HandAnbieter
Einfamilienhaus Klassiker City – Modernes Stadthaus von Streif