1. AnbieterArrow Icon
  2. STREIF HausArrow Icon
  3. Base House - mit Holzfassade
Slide 1
Slide 2
no description
STREIF HausBase House - mit Holzfassade
homeKlassische Familienhäuser
livingArea133 m²
energyStandardEffizienzhaus 40
Preis anfragen
Katalog bestellen

Base House - mit Holzfassade

Das zweigeschossige Einfamilienhaus überzeugt durch eine zeitgemäße Architektur mit klarer Formsprache und einer durchdachten Raumstruktur auf etwa 133 m² Wohnfläche. Die dargestellte Ausführung zeigt eine moderne Holzfassade, die dem Gebäude eine warme und natürliche Ausstrahlung verleiht.

Zur Straßenseite hin sorgt ein schmales Fensterband für angenehme Privatsphäre. Auf der Gartenseite hingegen schaffen ein großflächiges Panoramafenster sowie eine Hebeschiebetür helle, lichtdurchflutete Wohnbereiche.

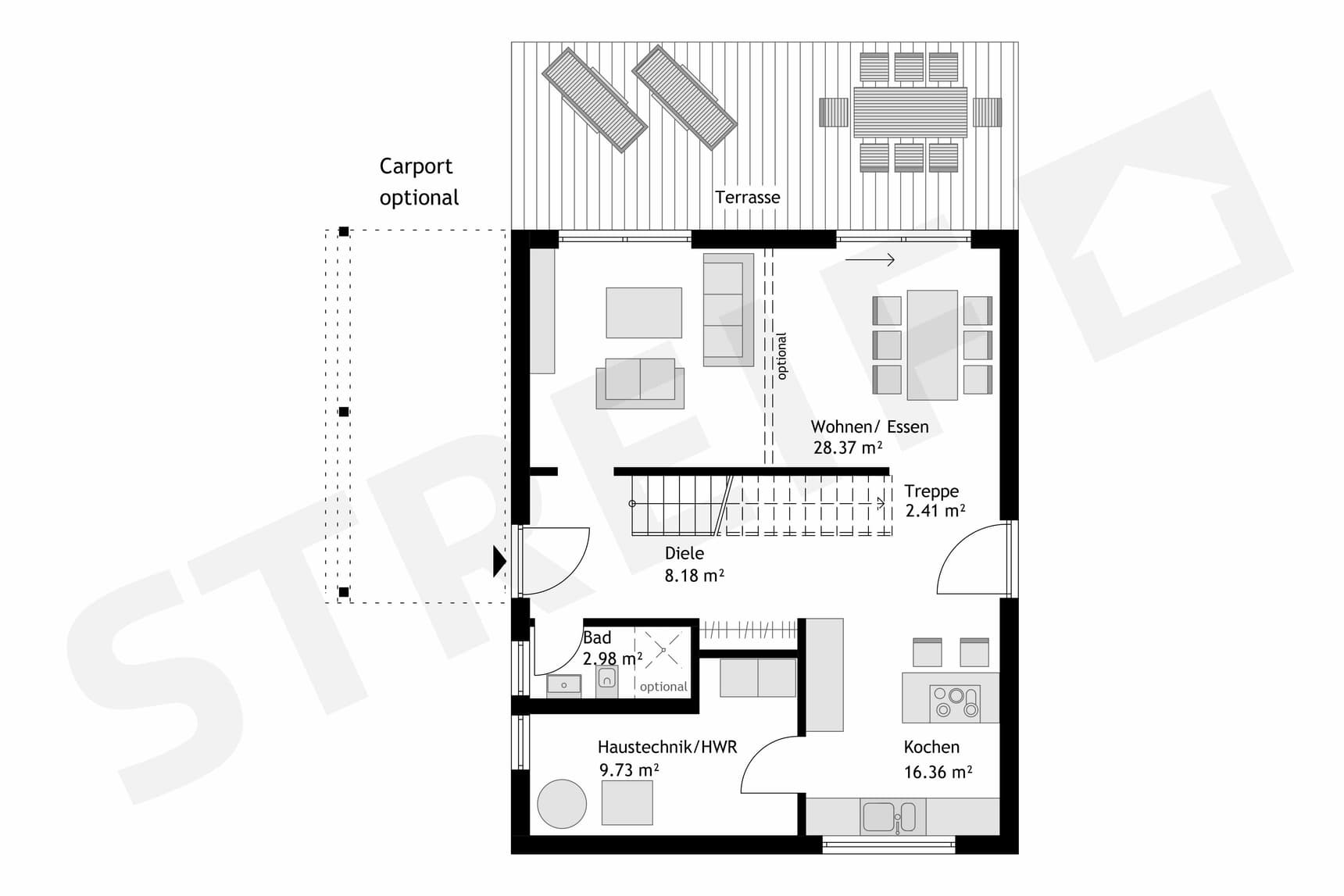
Im Erdgeschoss gliedert eine zentral angeordnete, gerade verlaufende Treppe den offenen Wohn- und Essbereich von Diele, Garderobe, Gäste-WC (auf Wunsch mit Dusche) und dem Technikraum. Die Küche ist offen gestaltet, jedoch leicht abgewinkelt, sodass eine dezente optische Abgrenzung zum Essbereich entsteht.

Im Dachgeschoss befinden sich zwei gleich große Kinderzimmer, ein Elternbereich sowie ein großzügig gestaltetes Familienbad.

Die Grundrissgestaltung lässt sich individuell anpassen (ausgenommen sind Bäder und Technikräume). Änderungen erfolgen unter Berücksichtigung der haustechnischen Anforderungen sowie der jeweils gültigen regionalen Bauvorschriften. Auf Wunsch ist das Haus auch mit Holz- oder Klinkerfassade realisierbar.

Die gezeigten Abbildungen können Sonderausstattungen enthalten. Unsere Bauberatung informiert Sie gerne umfassend über Fördermöglichkeiten und individuelle Gestaltungsoptionen.

Weitere Details finden Sie auf unserer Website unter der STREIF-Haus ID: AH-EFH-SD-133

Hausdaten

Hausart Icon
HausartEinfamilienhaus
Bauweise Icon
BauweiseHolz-Tafelbau
Baustil Icon
BaustilKlassische Familienhäuser
Fassade Icon
FassadePutz, Holz
Außenmaße Icon
Außenmaße8.38 m x 10.255 m
Wohnfläche Icon
Wohnfläche133 m²
Dachform Icon
DachformSattel-/Giebeldach
Etagen Icon
Etagen2
Energiestandard Icon
EnergiestandardEffizienzhaus 40
Immobilientyp Icon
ImmobilientypPlanungsidee
Hausdämmstoff Icon
HausdämmstoffMineralfaser (Glaswolle, Steinwolle)
Pfeil nach unten linksWir schaffen Platz für Ihre Träume

Grundriss

Fertighaus Stadtvilla Grundriss Erdgeschoss Wohnen Essen Küche Diele Bad HWR Treppe Zugang Terrasse optional Carport
Base House - mit Holzfassade Grundriss (EG)
Fertighaus Stadtvilla Grundriss Obergeschoss zwei Kinderzimmer Schlafzimmer Bad Flur zentrale Treppe kompakte Raumaufteilung
Base House - mit Holzfassade Grundriss (OG)

Kataloge

STREIF Haus - Prospekt
STREIF Haus

STREIF Haus - Prospekt


STREIF Haus - Kundenmagazin
STREIF Haus

STREIF Haus - Kundenmagazin


House and TreeParksHouse and PinHäuser liveHouse on HandAnbieter