1. AnbieterArrow Icon
  2. STREIF HausArrow Icon
  3. Musterhaus Frankfurt
Slide 1
Location Icon
Slide 2
Location Icon
Slide 3
Location Icon
Slide 4
Location Icon
no description
STREIF HausMusterhaus Frankfurt
homeStadtvillen
livingArea146 m²
energyStandardPlusenergiehaus
Preis anfragen

Musterhaus Frankfurt

Das STREIF Musterhaus in Frankfurt (STREIF-Haus-ID: MH-EFH-SD-152) ist ein Plus-Energie-Haus und präsentiert sich als zweigeschossige, helle Stadtvilla mit 167 m² Wohnfläche. Das Besondere daran ist das flachgeneigte Zeltdach sowie die durchgängig bodentiefen Fenster- und Türelemente.

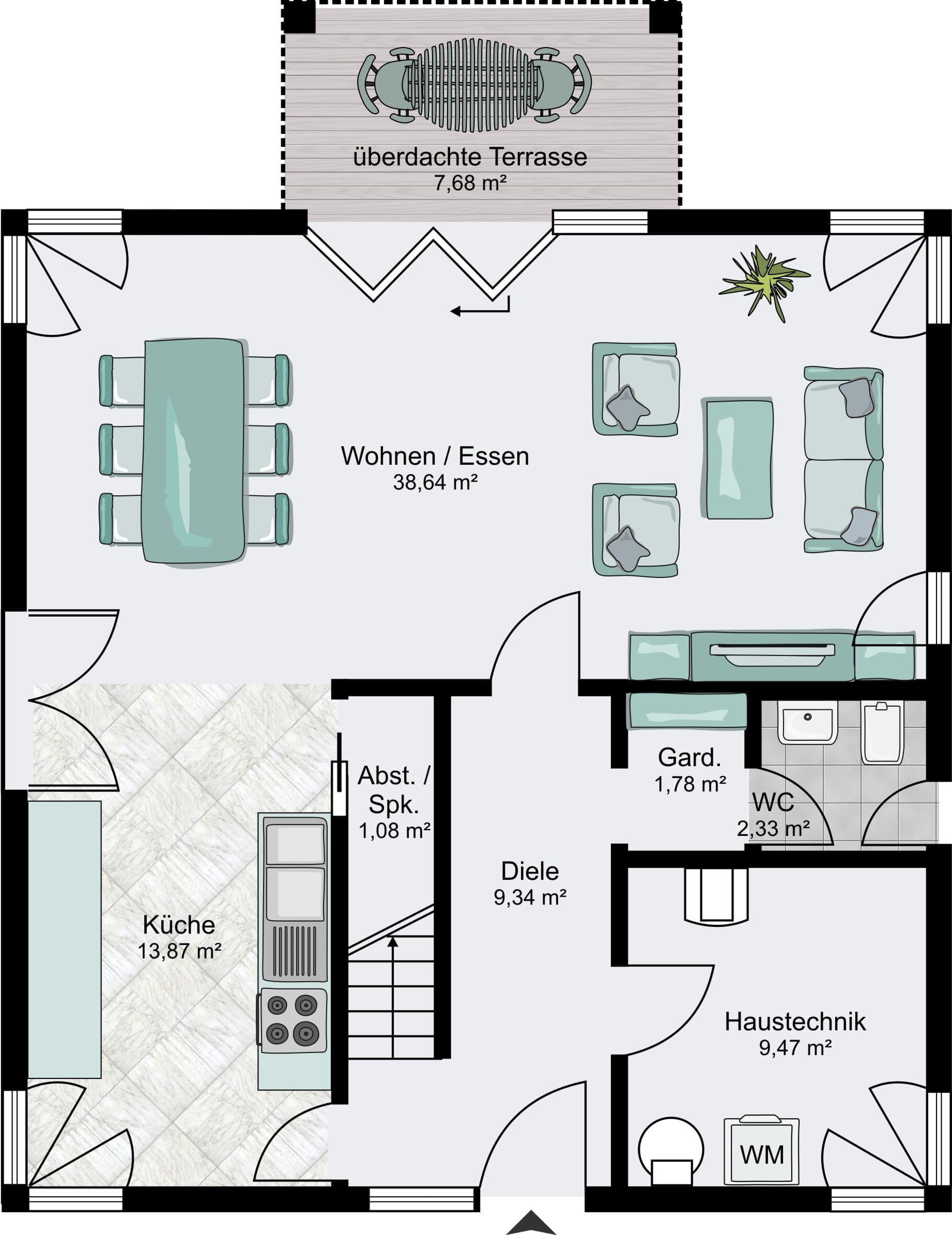
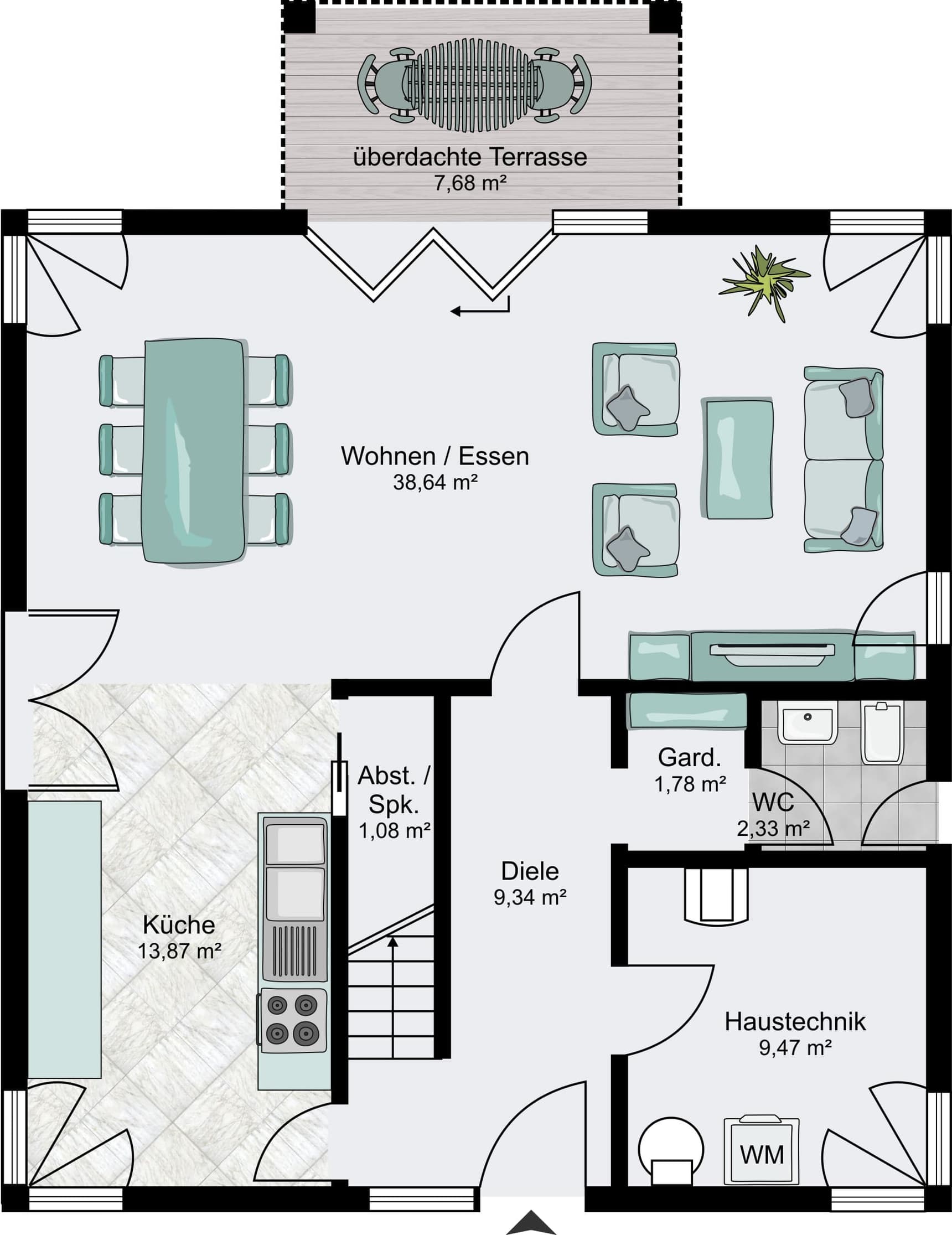
Der großzügige Wohn- und Essbereich mit angrenzender Küche bildet im Erdgeschoss den Mittelpunkt. Die Wohnfläche wird optisch durch den direkten Zugang zur überdachten Terrasse erweitert. Im Obergeschoss befinden sich sowohl der Eltern- als auch der Kinderbereich, die über eine Galerie gleichermaßen getrennt und verbunden werden. Beide Bereiche verfügen über ein eigenes Badezimmer. Ein Highlight im Obergeschoss ist das geräumige Ankleidezimmer, das über einen direkten Durchgang zum Bad und zum Schlafraum verfügt.

Ihnen fehlt zu Ihrem STREIF-Wunschhaus das passende Grundstück? Kein Problem. Wir haben garantiert auch für Sie das richtige Baugrundstück. Nutzen Sie unsere attraktiven Angebote.

Hausdaten

Hausart Icon
HausartEinfamilienhaus
Bauweise Icon
BauweiseHolz-Tafelbau
Anzahl Räume Icon
Anzahl Räume7
Baustil Icon
BaustilStadtvillen
Fassade Icon
FassadePutz
Außenmaße Icon
Außenmaße12.45 m x 10.58 m
Wohnfläche Icon
Wohnfläche145.81 m²
Dachform Icon
DachformWalm-/Zeltdach
Energiestandard Icon
EnergiestandardPlusenergiehaus
Immobilientyp Icon
ImmobilientypMusterhaus
Dachneigung Icon
Dachneigung24°
Hauseigenschaften Icon
HauseigenschaftenTerasse
Hausdämmstoff Icon
HausdämmstoffMineralfaser (Glaswolle, Steinwolle)
Heizungsart Icon
HeizungsartWärmepumpe (Luft, Wasser, oder beides)
Pfeil nach unten linksWir schaffen Platz für Ihre Träume

Grundriss

no description
Musterhaus Frankfurt Grundriss (EG)Wohnfläche EG: 76,51 m²
no description
Musterhaus Frankfurt Grundriss (OG)Wohnfläche OG: 69,3 m²

Unser Team vor Ort

Willfried KunzFachberater*in bei STREIF Haus
no description
Wir beraten Sie gerne!Arrow Icon
Ursel KunzFachberater*in bei STREIF Haus
no description
House and TreeParksHouse and PinMusterhausHouse on HandAnbieter