1. AnbieterArrow Icon
  2. STREIF HausArrow Icon
  3. Musterhaus Bad Vilbel
Slide 1
Location Icon
Slide 2
Location Icon
Slide 3
Location Icon
Slide 4
Location Icon
no description
STREIF HausMusterhaus Bad Vilbel
homeKlassische Familienhäuser
livingArea119 m²
energyStandardEffizienzhaus 40
Preis anfragen

Musterhaus Bad Vilbel

Hoher Wohnwert mit durchdachter, auf Wohlfühlen gestalteter Raumaufteilung - so beschreiben viele Besucher begeistert das Musterhaus Bad Vilbel von STREIF.

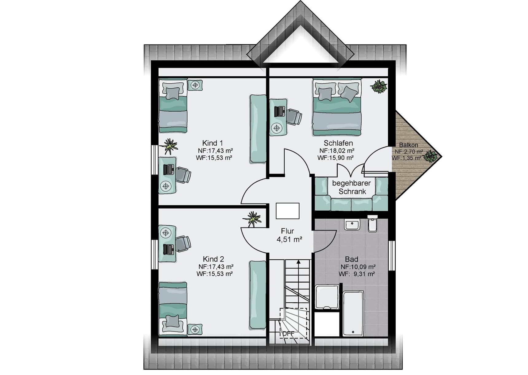
Das Architektenhaus Bad Vilbel (STREIF-Haus-ID: MH-SV-WD-163) überzeugt mit einem außergewöhnlichen Grundriss. Durch die weiße Putzfassade kommen die anthrazitfarbenen Fensterrahmen gut zur Geltung und geben dem Haus in Kombination mit Holzlisenen am Giebel und einem Balkongeländer aus Glas einen modernen und frischen Charakter. Im Erdgeschoss wird der große Wohn-/Essbereich durch die Erkerausbildung geprägt. Die Küche ist separat, aber dennoch offen angelegt. Das bietet den Vorteil, dass für Gäste und Besucher der Küchenbereich nicht unmittelbar einsehbar ist. Neben der Küche ist der praktische Hauswirtschafts- und Technikraum angelegt. Die Terrasse ist durch einen Gebäudeversatz teilweise überdacht. Viele bodentiefe Fensterelemente im Erdgeschoss lassen außergewöhnlich viel Licht ins Haus. Im Dachgeschoss befinden sich zwei gleich große Kinderzimmer und ein großes Elternschlafzimmer mit Ankleide und einem kleinem Balkon. Komplettiert wird die Etage durch ein großzügiges Badezimmer, welches mit Wanne und Dusche ausgestattet ist.
Die gezeigten Fotos und Grundrisse sind Hausbeispiele. Jedes STREIF-Haus wird individuell nach Kundenwunsch geplant und gebaut.

Hausdaten

Hausart Icon
HausartEinfamilienhaus
Bauweise Icon
BauweiseHolz-Tafelbau
Anzahl Räume Icon
Anzahl Räume7
Baustil Icon
BaustilKlassische Familienhäuser
Fassade Icon
FassadePutz
Außenmaße Icon
Außenmaße9.33 m x 8.08 m
Wohnfläche Icon
Wohnfläche119 m²
Dachform Icon
DachformSattel-/Giebeldach
Energiestandard Icon
EnergiestandardEffizienzhaus 40
Immobilientyp Icon
ImmobilientypMusterhaus
Dachneigung Icon
Dachneigung38°
Kniestock Icon
Kniestock0.75 m
Hauseigenschaften Icon
HauseigenschaftenTerasse
Hausdämmstoff Icon
HausdämmstoffMineralfaser (Glaswolle, Steinwolle)
Heizungsart Icon
HeizungsartWärmepumpe (Luft, Wasser, oder beides)
Pfeil nach unten linksWir schaffen Platz für Ihre Träume

Grundriss

no description
Musterhaus Bad Vilbel Grundriss (EG)
no description
Musterhaus Bad Vilbel Grundriss (DG)

Unser Team vor Ort

Willfried KunzFachberater*in bei STREIF Haus
no description
Wir beraten Sie gerne!Arrow Icon
House and TreeParksHouse and PinMusterhausHouse on HandAnbieter