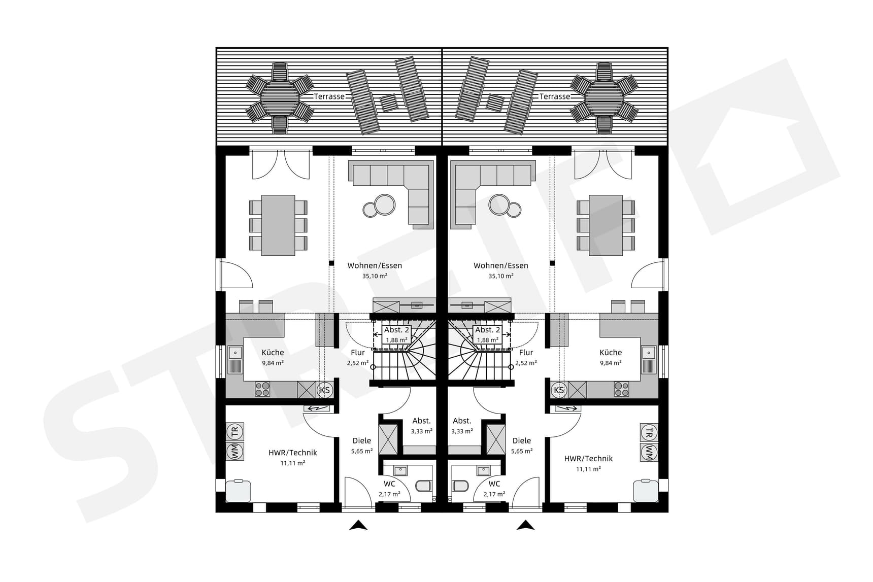
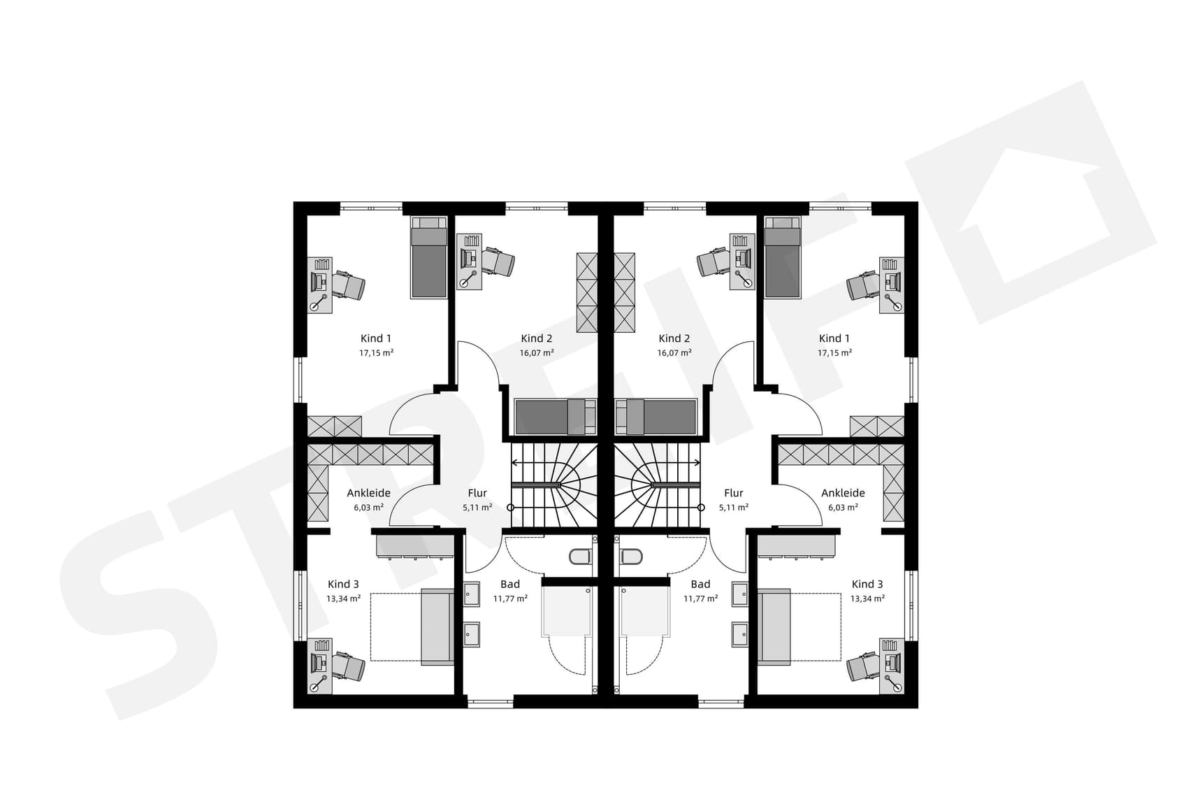
Die zweigeschossige Architektur mit aufgesetztem Staffelgeschoss und Flachdach (STREIF-Haus-ID: TH-DH-FD-200) verleiht dem Doppelhaus eine moderne, ausdrucksstarke Erscheinung. Der großzügige, lichtdurchflutete Wohn-, Ess- und Kochbereich bildet das Herzstück des Hauses. Im Obergeschoss befinden sich drei geräumige Kinderzimmer und ein Familienbad – eines der Zimmer verfügt zusätzlich über eine eigene Ankleide und kann bei Bedarf als Elternschlafzimmer genutzt werden.
Das Staffelgeschoss dient als privater Rückzugsbereich mit Schlafzimmer, Ankleide, großem Bad und direktem Zugang zur Dachterrasse. Alternativ lässt es sich flexibel als Gäste-, Jugend- oder Arbeitsbereich nutzen. Wie jedes STREIF-Haus wird auch dieser Entwurf individuell nach den Wünschen der Bauherren geplant und realisiert.
Alle STREIF-Häuser entsprechen den Vorgaben des Gebäudeenergiegesetzes (GEG) und erfüllen standardmäßig die Kriterien eines KfW-Effizienzhauses 40.
Bauen Sie Ihr Haus nachhaltig und zukunftsorientiert: Auf Wunsch bieten wir Ihnen für Ihr STREIF-Haus eine Ökobilanzierung oder eine Nachhaltigkeitszertifizierung (z. B. QNG-Zertifizierung) an. Diese Zusatzleistungen sind gegen Aufpreis erhältlich und unterstützen Sie dabei, den ökologischen Fußabdruck Ihres Hauses transparent zu machen und staatliche Fördermöglichkeiten optimal zu nutzen.
Wenn Sie Ihren Hausbau nachhaltig planen möchten, beraten wir Sie gerne individuell. Vor Beginn der Planung ist eine separate Nachhaltigkeitsberatung erforderlich, in der wir gemeinsam die nachhaltigen Planungsziele für Ihr Bauprojekt festlegen. So entsteht ein energieeffizientes, umweltfreundliches und zukunftssicheres Zuhause – ganz nach Ihren Vorstellungen.
Weitere Informationen zu dieser Hausbaureihe finden Sie auf unserer Webseite unter Doppelhaus.


