
Dieses Doppelhaus (STREIF-Haus-ID: TH-DH-FD-140) überzeugt durch klare Architektur und dezente Eleganz. Versetzte Fassadenelemente verleihen der Front und den Seitenflächen Tiefe und schaffen zugleich großzügige Innenräume. Auf Wunsch kann die Außenansicht mit einer zweifarbigen Gestaltung oder Natursteinverkleidung individuell aufgewertet werden.
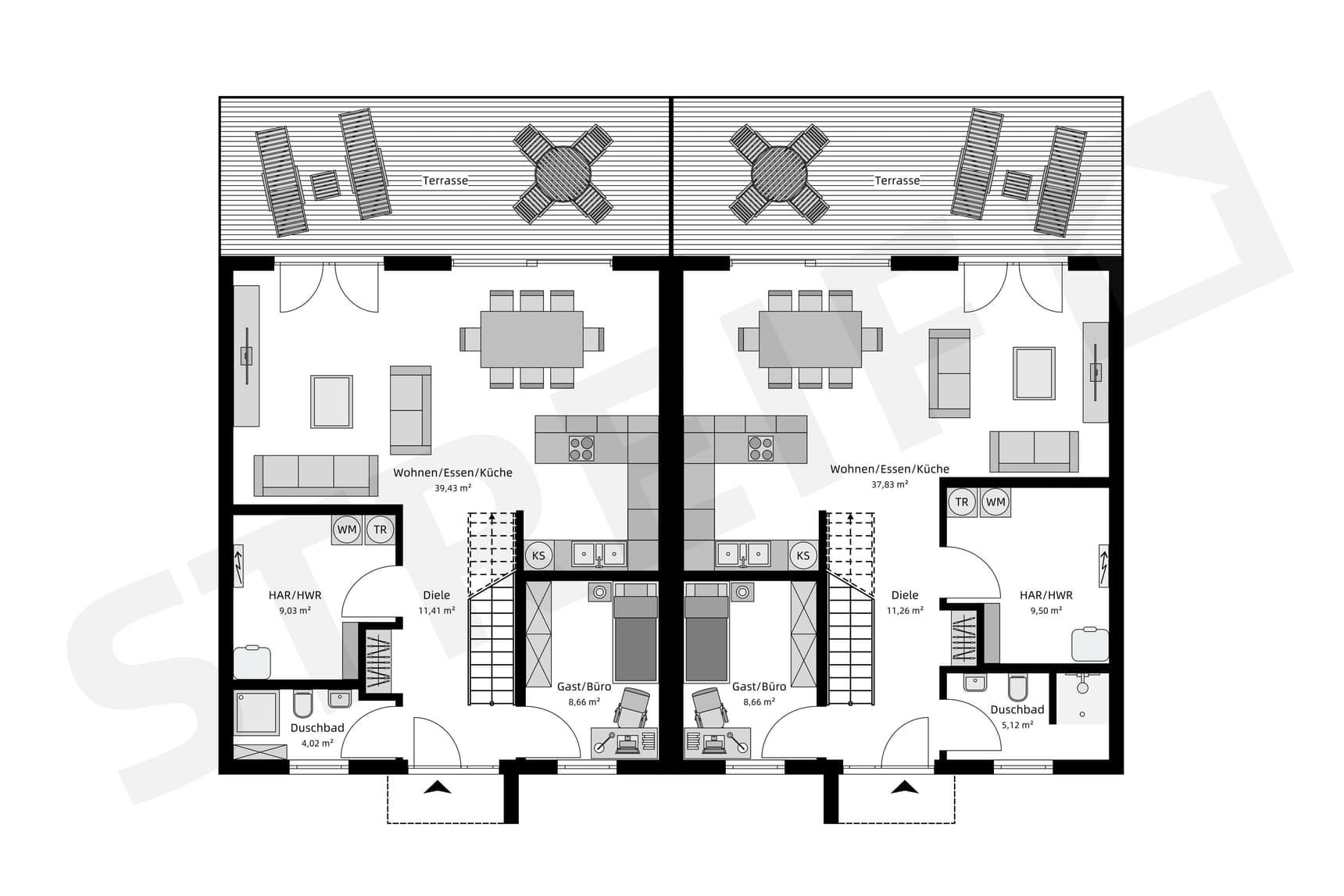
Im Erdgeschoss erwartet Sie ein offener Wohn-, Ess- und Kochbereich mit viel Platz für Familienleben. Ergänzt wird das Raumangebot durch eine funktionale Diele mit Garderobe und Abstellraum. Das Obergeschoss bietet zwei helle Kinderzimmer mit Balkonzugang, ein Elternschlafzimmer mit Ankleide sowie ein modernes Familienbad.
Mit rund 140 m² Wohnfläche pro Haushälfte bietet das Haus ideale Voraussetzungen für eine drei- bis vierköpfige Familie. Jede Planung wird bei STREIF individuell nach den Wünschen der Bauherren umgesetzt.
Alle STREIF-Häuser entsprechen den Vorgaben des Gebäudeenergiegesetzes (GEG) und erfüllen standardmäßig die Kriterien eines KfW-Effizienzhauses 40.
Bauen Sie Ihr Haus nachhaltig und zukunftsorientiert: Auf Wunsch bieten wir Ihnen für Ihr STREIF-Haus eine Ökobilanzierung oder eine Nachhaltigkeitszertifizierung (z. B. QNG-Zertifizierung) an. Diese Zusatzleistungen sind gegen Aufpreis erhältlich und unterstützen Sie dabei, den ökologischen Fußabdruck Ihres Hauses transparent zu machen und staatliche Fördermöglichkeiten optimal zu nutzen.
Wenn Sie Ihren Hausbau nachhaltig planen möchten, beraten wir Sie gerne individuell. Vor Beginn der Planung ist eine separate Nachhaltigkeitsberatung erforderlich, in der wir gemeinsam die nachhaltigen Planungsziele für Ihr Bauprojekt festlegen. So entsteht ein energieeffizientes, umweltfreundliches und zukunftssicheres Zuhause – ganz nach Ihren Vorstellungen.
Weitere Informationen zu dieser Hausbaureihe finden Sie auf unserer Webseite unter Doppelhaus.

