1. AnbieterArrow Icon
  2. STREIF HausArrow Icon
  3. Klassiker Family - Landhaus
no description
no description
STREIF HausKlassiker Family - Landhaus
homeKlassische Familienhäuser
livingArea157 m²
energyStandardEffizienzhaus 40
Preis anfragen
Katalog bestellen

Klassiker Family - Landhaus

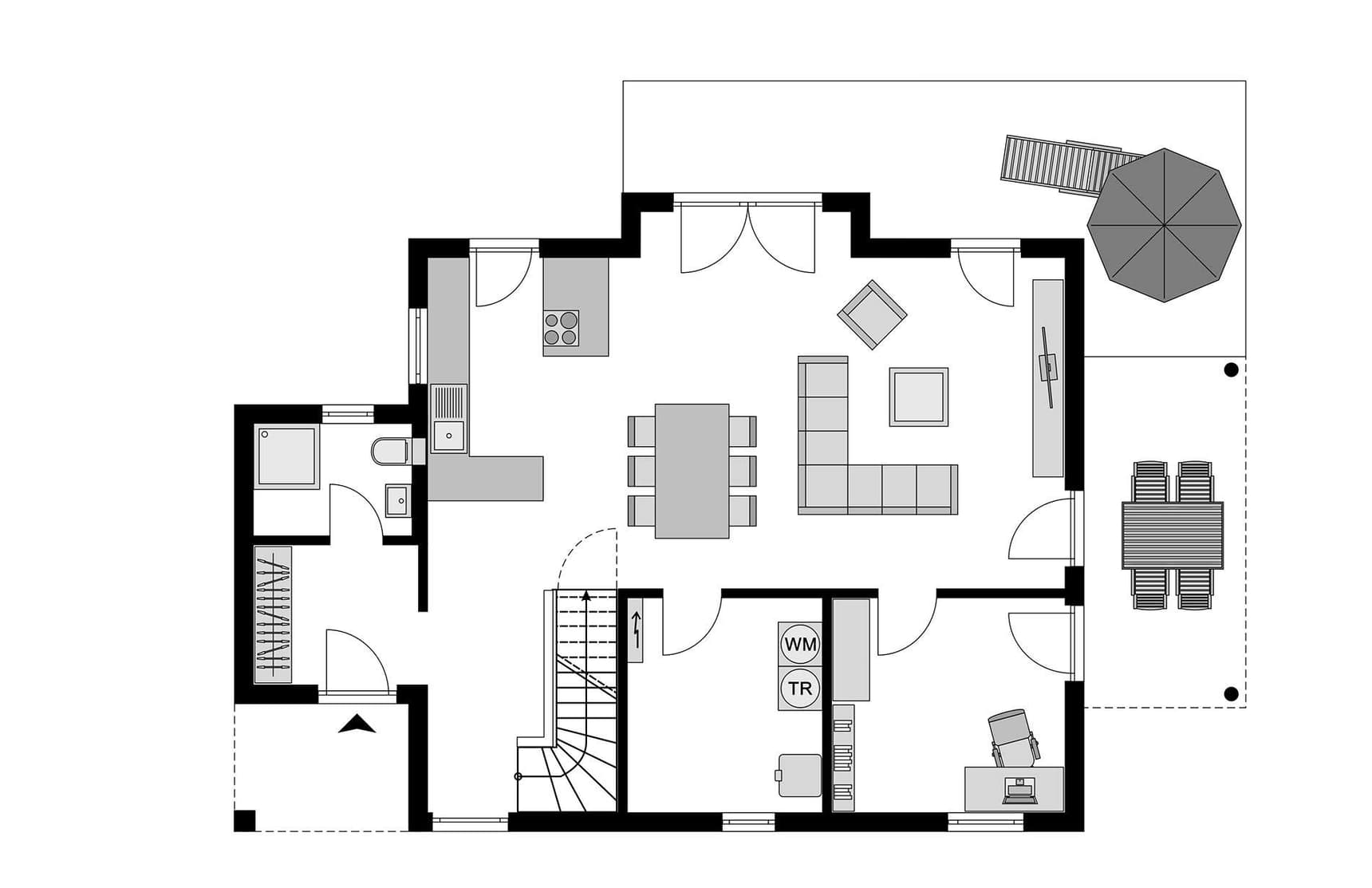
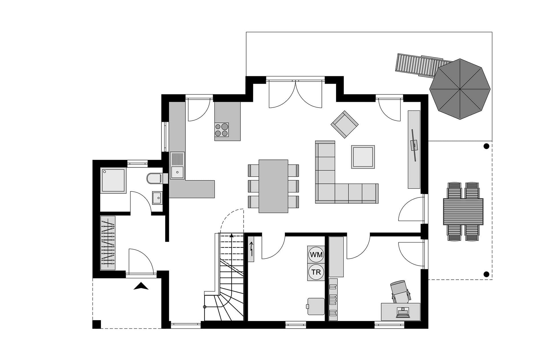
Der Hausentwurf (STREIF-Haus-ID TH-EFH-SD-157) ist im Stil der beliebten Landhausarchitektur geplant. Die Gartenansicht wird von einem Zwerchhaus mit Satteldach geprägt. Weitere Details sind eine Wohnraumerweiterung mit überdachtem Hauseingang. Großzügig und lichtdurchflutet präsentiert sich der Wohn-/Ess- und Kochbereich. Die Grundrissgestaltung bietet einen Windfang mit einem Garderobenbereich, ein Duschbad, eine Diele mit Treppenaufgang und einen Hauswirtschafts-/Haustechnikraum. Besonders praktisch ist ein zusätzlicher Raum, der als Arbeits-, Gäste- oder Schlafzimmer nutzbar ist. Das Wohnen auf einer Etage ist aufgrund  der Planung ebenfalls möglich. Der Elternschlafbereich mit Ankleide, 2 Kinderzimmer und ein Familienbad befinden sich im Dachgeschoss des Hauses.

Weitere Informationen zu dieser Hausbaureihe finden Sie hier

Der gezeigte Hausentwurf ist ein Gestaltungsvorschlag. Individuelle Anpassungen wie z. B. Hausgröße, Dachgeometrie, Fenstergrößen-/ und -position sind möglich. Fragen Sie Ihren persönlichen STREIF-Bauberater.

Ausstattung

STREIF-Energiespar-Häuser sind für die Effizienzhaus-Klasse 40* vorbereitet. (*In Abhängigkeit von Gebäudestandort, Gebäudeausrichtung, Fensterflächenanteile, Haustechnik usw. können zusätzliche oder abweichende Leistungen erforderlich werden, die im Zuge der Bauantragsbewertung/-erstellung bewertet werden.)

Gegen Aufpreis erstellen wir eine Ökobilanzierung für Ihr Haus oder führen eine vollständige Nachhaltigkeitszertifizierung nach QNG durch. Für das Erreichen der Vorgaben des Qualitätssiegels Nachhaltiges Gebäude (QNG) für eine Ökobilanzierung oder eine Nachhaltigkeitszertifizierung wird zusätzlich eine Photovoltaik-Anlage mit Batteriespeicher benötigt. Mit dem Erfüllen dieser und weiterer Anforderungen wird Ihr Haus nach den neuen KfW-Förderrichtlinien für den Klimafreundlichen Neubau (KFN) förderfähig. 

Die Außenwände im Passiv-Haus-Standard und eine sparsame Heiztechnik mit integrierter Wohnraumlüftung und Wärmerückgewinnung, garantieren einen geringen Energieverbrauch und ein fantastisches Raumklima, das insbesondere Allergiker aufatmen lässt. 

STREIF Leistungen sind MEHR WERT - schon im Grundpreis enthalten!
- 20-monatige Festpreisgarantie 
- Inkl. individuelle Grundrissgestaltung und Raumaufteilung
- Inkl. gedämmte Fundamentplatte
- Inkl. STREIF-Luft-Luft-Wärmepumpen-Technologie mit integrierter Lüftungsanlage mit Wärmerückgewinnung
- Inkl. Haustür von KERA und Fenster von Porta/Kömmerling
- Inkl. Sanitärobjekte von Markenherstellern

- Inkl. Massivholz-Geschosstreppe aus eigener Produktion (außer beim Hausentwurf Bungalow)
- Inkl. Elektroinstallation u. v. m.

Die hohe Wertigkeit und Langlebigkeit eines STREIF-Energiespar-Hauses wird durch zahlreiche Auszeichnungen, Qualitäts- und Gütesiegel unabhängiger Institute und Verbände dokumentiert.

Hausdaten

Hausart Icon
HausartEinfamilienhaus
Bauweise Icon
BauweiseHolz-Tafelbau
Anzahl Räume Icon
Anzahl Räume7
Baustil Icon
BaustilKlassische Familienhäuser
Fassade Icon
FassadeKlinker
Außenmaße Icon
Außenmaße87.05 m x 99.55 m
Wohnfläche Icon
Wohnfläche157 m²
Dachform Icon
DachformSattel-/Giebeldach
Energiestandard Icon
EnergiestandardEffizienzhaus 40
Immobilientyp Icon
ImmobilientypPlanungsidee
Dachneigung Icon
Dachneigung38°
Kniestock Icon
Kniestock1 m
Hauseigenschaften Icon
HauseigenschaftenGästezimmer
Hausdämmstoff Icon
HausdämmstoffMineralfaser (Glaswolle, Steinwolle)
Heizungsart Icon
HeizungsartWärmepumpe (Luft, Wasser, oder beides)
Pfeil nach unten linksWir schaffen Platz für Ihre Träume

Grundriss

no description
Klassiker Family - Landhaus Grundriss (EG)
no description
Klassiker Family - Landhaus Grundriss (DG)

Unser Team vor Ort

Burkhard PassargeFachberater*in bei STREIF Haus
Default Avatar
Wir beraten Sie gerne!Arrow Icon

Kataloge

STREIF Haus - Prospekt
STREIF Haus

STREIF Haus - Prospekt


STREIF Haus - Kundenmagazin
STREIF Haus

STREIF Haus - Kundenmagazin


House and TreeParksHouse and PinMusterhausHouse on HandAnbieter