1. AnbieterArrow Icon
  2. STREIF HausArrow Icon
  3. Klassiker Family - Landhaus mit Zwerchgiebel
no description
no description
STREIF HausKlassiker Family - Landhaus mit Zwerchgiebel
homeKlassische Familienhäuser
livingArea174 m²
energyStandardEffizienzhaus 40
Preis anfragen
Katalog bestellen

Klassiker Family - Landhaus mit Zwerchgiebel

Ungebrochen ist die Begeisterung für das Bauen und Wohnen im Landhausstil. Dieser Hausentwurf (STREIF-Haus-ID TH-EFH-SD-174) interpretiert den Landhausstil in einem modernen Erscheinungsbild. Eine Wohnraumerweiterung mit überdachtem Hauseingang prägt, gemeinsam mit einem Zwerchgiebel mit Satteldach, die Frontseite des Landhauses. Auf 174 m² Grundfläche bietet der Entwurf viel Platz für die ganze Familie. Der Grundriss bietet im Erdgeschoss einen großen Wohn-/Ess- und Kochbereich, der sich über eine große Panorama-Hebeschiebetür und vier Terrassentüren zum Garten hin öffnet. Der Kochbereich bietet die Möglichkeit mit einer Kochinsel möbliert zu werden. Der Eingangsbereich bietet einen separaten Platz für eine Garderobe. Neben dem Hauswirtschafts-/Haustechnikraum wird die Etage um einen zusätzlichen Raum ergänzt, der als Arbeits-, Gäste- oder Schlafzimmer genutzt werden kann.

Weitere Informationen zu dieser Hausbaureihe finden Sie hier

Die abgebildeten Hausentwürfe sind Gestaltungsvorschläge. Eine Vielzahl individueller Anpassungen wie z. B. Hausgröße, Dachgeometrie, Fenstergrößen-/ und -position sind möglich. Fragen Sie Ihren persönlichen STREIF-Bauberater.

Ausstattung

STREIF-Energiespar-Häuser sind für die Effizienzhaus-Klasse 40* vorbereitet. (*In Abhängigkeit von Gebäudestandort, Gebäudeausrichtung, Fensterflächenanteile, Haustechnik usw. können zusätzliche oder abweichende Leistungen erforderlich werden, die im Zuge der Bauantragsbewertung/-erstellung bewertet werden.)

Gegen Aufpreis erstellen wir eine Ökobilanzierung für Ihr Haus oder führen eine vollständige Nachhaltigkeitszertifizierung nach QNG durch. Für das Erreichen der Vorgaben des Qualitätssiegels Nachhaltiges Gebäude (QNG) für eine Ökobilanzierung oder eine Nachhaltigkeitszertifizierung wird zusätzlich eine Photovoltaik-Anlage mit Batteriespeicher benötigt. Mit dem Erfüllen dieser und weiterer Anforderungen wird Ihr Haus nach den neuen KfW-Förderrichtlinien für den Klimafreundlichen Neubau (KFN) förderfähig. 

Die Außenwände im Passiv-Haus-Standard und eine sparsame Heiztechnik mit integrierter Wohnraumlüftung und Wärmerückgewinnung, garantieren einen geringen Energieverbrauch und ein fantastisches Raumklima, das insbesondere Allergiker aufatmen lässt. 

STREIF Leistungen sind MEHR WERT - schon im Grundpreis enthalten!
- 20-monatige Festpreisgarantie 
- Inkl. individuelle Grundrissgestaltung und Raumaufteilung
- Inkl. gedämmte Fundamentplatte
- Inkl. STREIF-Luft-Luft-Wärmepumpen-Technologie mit integrierter Lüftungsanlage mit Wärmerückgewinnung
- Inkl. Haustür von KERA und Fenster von Porta/Kömmerling
- Inkl. Sanitärobjekte von Markenherstellern

- Inkl. Massivholz-Geschosstreppe aus eigener Produktion (außer beim Hausentwurf Bungalow)
- Inkl. Elektroinstallation u. v. m.

Die hohe Wertigkeit und Langlebigkeit eines STREIF-Energiespar-Hauses wird durch zahlreiche Auszeichnungen, Qualitäts- und Gütesiegel unabhängiger Institute und Verbände dokumentiert.

Hausdaten

Hausart Icon
HausartEinfamilienhaus
Bauweise Icon
BauweiseHolz-Tafelbau
Anzahl Räume Icon
Anzahl Räume7
Baustil Icon
BaustilKlassische Familienhäuser
Fassade Icon
FassadeKlinker
Außenmaße Icon
Außenmaße9.33 m x 10.58 m
Wohnfläche Icon
Wohnfläche174 m²
Dachform Icon
DachformSattel-/Giebeldach
Energiestandard Icon
EnergiestandardEffizienzhaus 40
Immobilientyp Icon
ImmobilientypPlanungsidee
Dachneigung Icon
Dachneigung38°
Kniestock Icon
Kniestock1 m
Hauseigenschaften Icon
HauseigenschaftenGästezimmer
Hausdämmstoff Icon
HausdämmstoffMineralfaser (Glaswolle, Steinwolle)
Heizungsart Icon
HeizungsartWärmepumpe (Luft, Wasser, oder beides)
Pfeil nach unten linksWir schaffen Platz für Ihre Träume

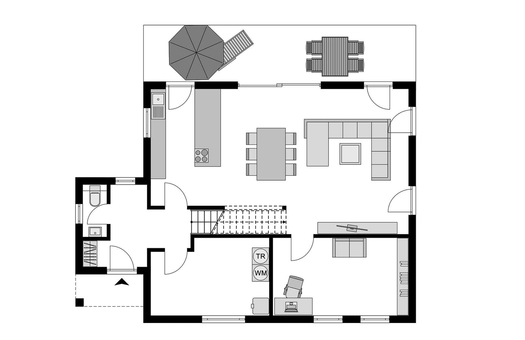
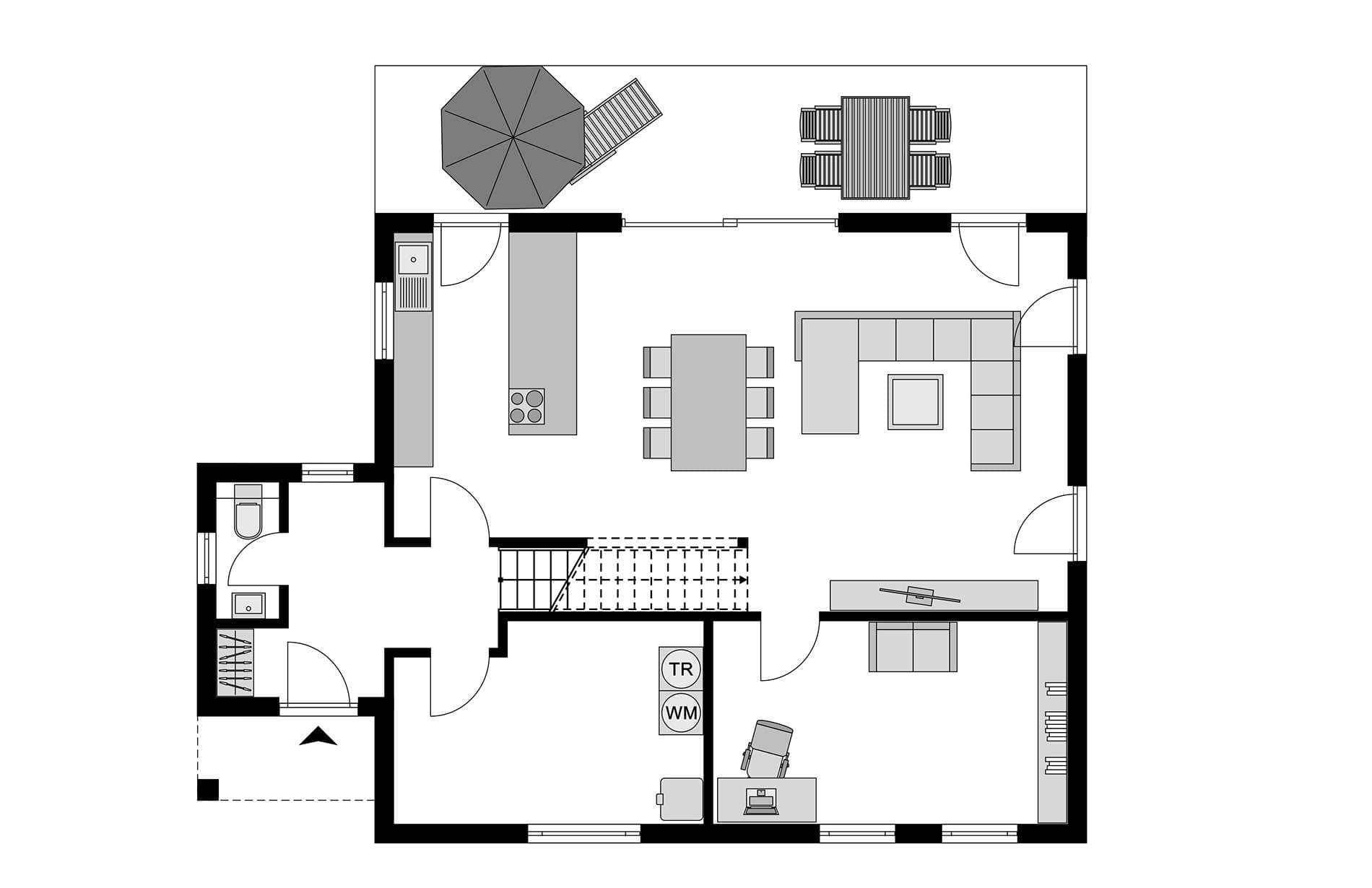
Grundriss

no description
Klassiker Family - Landhaus mit Zwerchgiebel Grundriss (EG)
no description
Klassiker Family - Landhaus mit Zwerchgiebel Grundriss (DG)

Unser Team vor Ort

STREIF HausFachberater*in bei STREIF Haus
Default Avatar
Wir beraten Sie gerne!Arrow Icon

Kataloge

STREIF Haus - Prospekt
STREIF Haus

STREIF Haus - Prospekt


STREIF Haus - Kundenmagazin
STREIF Haus

STREIF Haus - Kundenmagazin


House and TreeParksHouse and PinHäuser liveHouse on HandAnbieter