1. AnbieterArrow Icon
  2. STREIF HausArrow Icon
  3. Klassiker Family - Energiesparhaus mit moderner Architektur 
Slide 1
Slide 2
no description
STREIF HausKlassiker Family - Energiesparhaus mit moderner Architektur 
homeKlassische Familienhäuser
livingArea160 m²
energyStandardEffizienzhaus 40 EE
Preis anfragen
Katalog bestellen

Klassiker Family - Energiesparhaus mit moderner Architektur 

Die repräsentative Hausarchitektur wurde auf einem kompakten und durchdachten Grundriss konzipiert. Ein Zwerchgiebel mit Flachdach und eine Wohnraumerweiterung mit überdachtem Hauseingang sind die Besonderheiten bei diesem Hausentwurf. Die Garage schmiegt sich an das Gebäude an. Sie können über einen Nebeneingang direkt vom Hauswirtschafts-/Haustechnikraum aus betreten werden. Der Wohn-/Ess- und Kochbereich öffnet sich über eine große Panorama-Hebeschiebetür und 6 Terrassentüren, die übereck angeordnet sind zum Garten hin. Der Eingangsbereich ist mit 2 praktischen Garderobenn ​​ausgestattet. Im Dachgeschoss des Hauses finden Sie zwei gleich große Kinderzimmer und einen Elternbereich mit 2 Ankleiden Platz. Ergänzt wird die Etage durch ein familienfreundliches Bad.

Weitere Informationen zu dieser Hausbaureihe finden Sie hier

Der gezeigte Hausentwurf ist ein Gestaltungsvorschlag. Individuelle Anpassungen wie z. B. Hausgröße, Dachgeometrie, Fenstergrößen-/ und -position sind möglich. Fragen Sie Ihren persönlichen STREIF-Bauberater.

Ausstattung

STREIF-Energiespar-Häuser sind für die Effizienzhaus-Klasse 40* vorbereitet. (*In Abhängigkeit von Gebäudestandort, Gebäudeausrichtung, Fensterflächenanteile, Haustechnik usw. können zusätzliche oder abweichende Leistungen erforderlich werden, die im Zuge der Bauantragsbewertung/-erstellung bewertet werden.)

Gegen Aufpreis erstellen wir eine Ökobilanzierung für Ihr Haus oder führen eine vollständige Nachhaltigkeitszertifizierung nach QNG durch. Für das Erreichen der Vorgaben des Qualitätssiegels Nachhaltiges Gebäude (QNG) für eine Ökobilanzierung oder eine Nachhaltigkeitszertifizierung wird zusätzlich eine Photovoltaik-Anlage mit Batteriespeicher benötigt. Mit dem Erfüllen dieser und weiterer Anforderungen wird Ihr Haus nach den neuen KfW-Förderrichtlinien für den Klimafreundlichen Neubau (KFN) förderfähig. 

Die Außenwände im Passiv-Haus-Standard und eine sparsame Heiztechnik mit integrierter Wohnraumlüftung und Wärmerückgewinnung, garantieren einen geringen Energieverbrauch und ein fantastisches Raumklima, das insbesondere Allergiker aufatmen lässt. 

STREIF Leistungen sind MEHR WERT - schon im Grundpreis enthalten!
- 16-monatige Festpreisgarantie 
- Inkl. individuelle Grundrissgestaltung und Raumaufteilung
- Inkl. gedämmte Fundamentplatte
- Inkl. STREIF-Luft-Luft-Wärmepumpen-Technologie mit integrierter Lüftungsanlage mit Wärmerückgewinnung
- Inkl. Haustür von KERA und Fenster von Porta/Kömmerling
- Inkl. Sanitärobjekte von Markenherstellern

- Inkl. Massivholz-Geschosstreppe aus eigener Produktion (außer beim Hausentwurf Bungalow)
- Inkl. Elektroinstallation u. v. m.

Die hohe Wertigkeit und Langlebigkeit eines STREIF-Energiespar-Hauses wird durch zahlreiche Auszeichnungen, Qualitäts- und Gütesiegel unabhängiger Institute und Verbände dokumentiert.

Hausdaten

Hausart Icon
HausartEinfamilienhaus
Bauweise Icon
BauweiseHolz-Tafelbau
Anzahl Räume Icon
Anzahl Räume7
Baustil Icon
BaustilKlassische Familienhäuser
Fassade Icon
FassadeKlinker
Außenmaße Icon
Außenmaße87.05 m x 9.55 m
Wohnfläche Icon
Wohnfläche160 m²
Dachform Icon
DachformSattel-/Giebeldach
Energiestandard Icon
EnergiestandardEffizienzhaus 40 EE
Pfeil nach unten linksWir schaffen Platz für Ihre Träume

Grundriss

no description
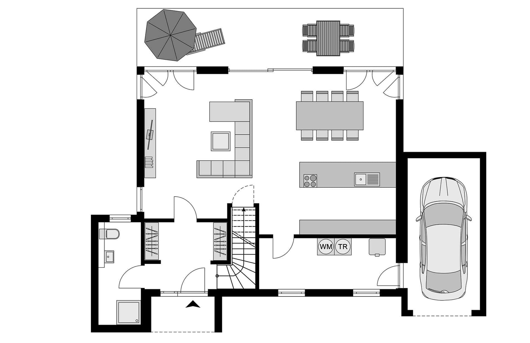
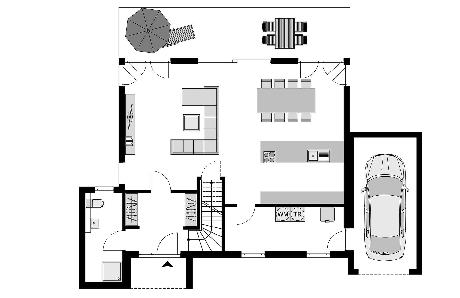
Klassiker Family - Energiesparhaus mit moderner Architektur  Grundriss (EG)
no description
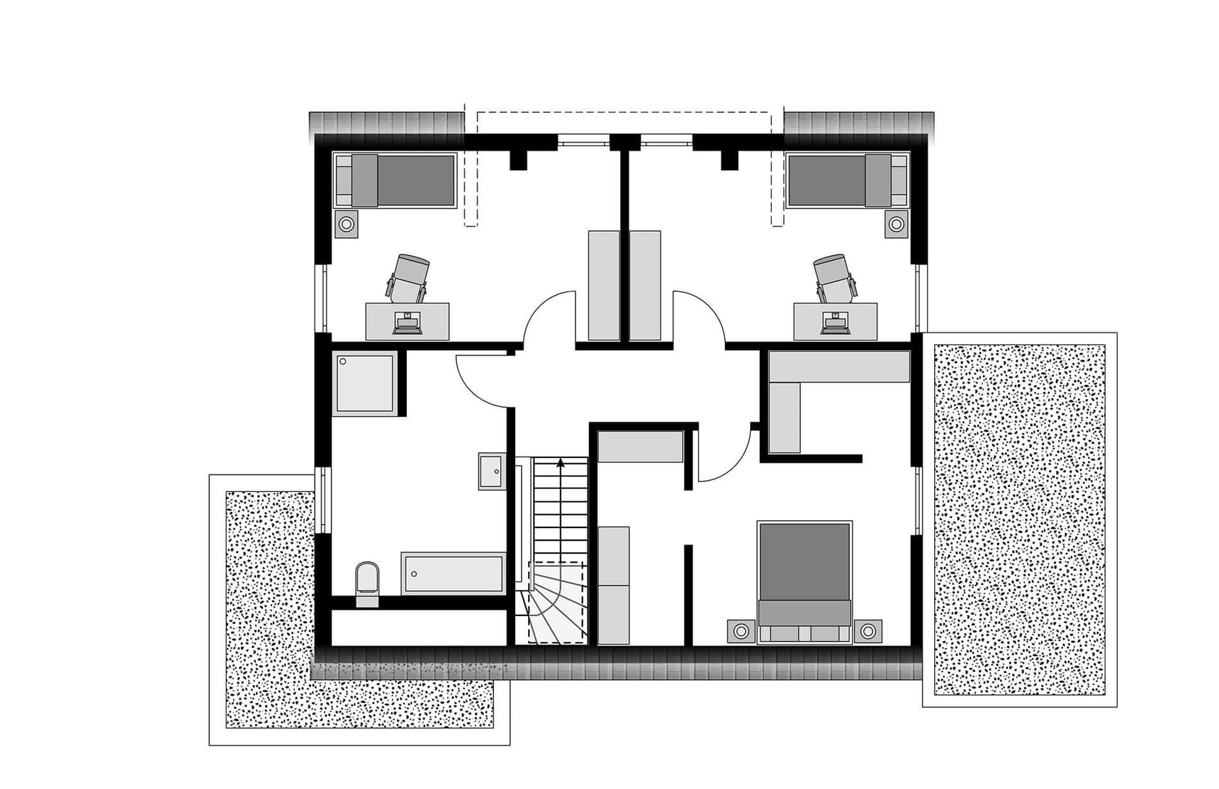
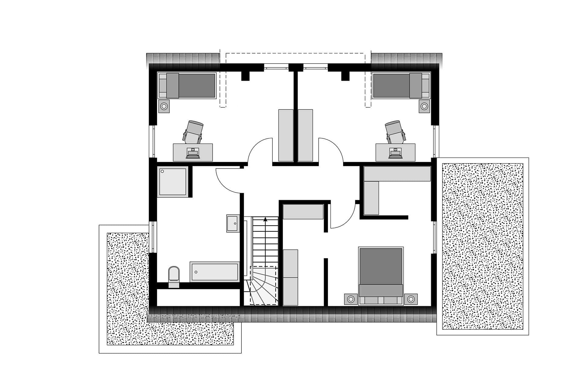
Klassiker Family - Energiesparhaus mit moderner Architektur  Grundriss (DG)

Unser Team vor Ort

STREIF HausFachberater*in bei STREIF Haus
Default Avatar
Wir beraten Sie gerne!Arrow Icon

Kataloge

STREIF Broschüre
STREIF Haus

STREIF Broschüre


Mit Herz und Verstand - Sinn und Antrieb von STREIF ist es, für die vielen Menschen, mit Leidenschaft und Können, ein für sie perfektes, langlebiges und wertbeständiges Zuhause zu schaffen, heute und für Generationen.
STREIF Kundenmagazin
STREIF Haus

STREIF Kundenmagazin


Häuser, so individuell wie Sie! Erfahren Sie mehr zum Thema Bauen mit STREIF.
House and TreeParksHouse and PinHäuser liveHouse on HandAnbieter