1. AnbieterArrow Icon
  2. STREIF HausArrow Icon
  3. Klassiker City - Stadtvilla in Bauhausarchitektur 
Slide 1
Slide 2
no description
STREIF HausKlassiker City - Stadtvilla in Bauhausarchitektur 
homeKlassische Familienhäuser
livingArea168 m²
energyStandardEffizienzhaus 40
Preis anfragen
Katalog bestellen

Klassiker City - Stadtvilla in Bauhausarchitektur 

Viel Platz und eine Architektur mit Bauhausstil prägen den Hausentwurf. (STREIF-Haus-ID TH-SV-FD-168) Der Eingangsbereich ist als Zwerchhaus vorgezogen und akzentuiert. Ein Erker mit Übereck-Fenster und aufgesetztem Balkon sowie eine Wohnraumerweiterung im Erdgeschoss ergeben die Gebäudeversätze, die charakteristisch für den Bauhausstil sind.
Für einen hohen Wohnkomfort sorgt viel Platz auf 168 m² Grundfläche, die mit 4 Schlafräumen, 3 Bädern, einem Hauswirtschafts-/Haustechnikraum und einem sehr großzügigen Wohn-/Ess- und Kochbereich geplant sind. Der Flur im Obergeschoss ist als Galerie angelegt. Die Küche kann mit einer Kochinsel geplant werden.

Weitere Informationen zu dieser Hausbaureihe finden Sie hier

Ausstattung

STREIF-Energiespar-Häuser sind für die Effizienzhaus-Klasse 40* vorbereitet. (*In Abhängigkeit von Gebäudestandort, Gebäudeausrichtung, Fensterflächenanteile, Haustechnik usw. können zusätzliche oder abweichende Leistungen erforderlich werden, die im Zuge der Bauantragsbewertung/-erstellung bewertet werden.)

Gegen Aufpreis erstellen wir eine Ökobilanzierung für Ihr Haus oder führen eine vollständige Nachhaltigkeitszertifizierung nach QNG durch. Für das Erreichen der Vorgaben des Qualitätssiegels Nachhaltiges Gebäude (QNG) für eine Ökobilanzierung oder eine Nachhaltigkeitszertifizierung wird zusätzlich eine Photovoltaik-Anlage mit Batteriespeicher benötigt. Mit dem Erfüllen dieser und weiterer Anforderungen wird Ihr Haus nach den neuen KfW-Förderrichtlinien für den Klimafreundlichen Neubau (KFN) förderfähig. 

Die Außenwände im Passiv-Haus-Standard und eine sparsame Heiztechnik mit integrierter Wohnraumlüftung und Wärmerückgewinnung, garantieren einen geringen Energieverbrauch und ein fantastisches Raumklima, das insbesondere Allergiker aufatmen lässt. 

STREIF Leistungen sind MEHR WERT - schon im Grundpreis enthalten!
- 20-monatige Festpreisgarantie 
- Inkl. individuelle Grundrissgestaltung und Raumaufteilung
- Inkl. gedämmte Fundamentplatte
- Inkl. STREIF-Luft-Luft-Wärmepumpen-Technologie mit integrierter Lüftungsanlage mit Wärmerückgewinnung
- Inkl. Haustür von KERA und Fenster von Porta/Kömmerling
- Inkl. Sanitärobjekte von Markenherstellern

- Inkl. Massivholz-Geschosstreppe aus eigener Produktion (außer beim Hausentwurf Bungalow)
- Inkl. Elektroinstallation u. v. m.

Die hohe Wertigkeit und Langlebigkeit eines STREIF-Energiespar-Hauses wird durch zahlreiche Auszeichnungen, Qualitäts- und Gütesiegel unabhängiger Institute und Verbände dokumentiert.

Hausdaten

Hausart Icon
HausartEinfamilienhaus
Bauweise Icon
BauweiseHolz-Tafelbau
Anzahl Räume Icon
Anzahl Räume7
Baustil Icon
BaustilKlassische Familienhäuser
Fassade Icon
FassadeKlinker
Außenmaße Icon
Außenmaße9.33 m x 9.33 m
Wohnfläche Icon
Wohnfläche168 m²
Dachform Icon
DachformFlachdach
Energiestandard Icon
EnergiestandardEffizienzhaus 40
Immobilientyp Icon
ImmobilientypPlanungsidee
Hauseigenschaften Icon
HauseigenschaftenGästezimmer
Hausdämmstoff Icon
HausdämmstoffMineralfaser (Glaswolle, Steinwolle)
Heizungsart Icon
HeizungsartWärmepumpe (Luft, Wasser, oder beides)
Pfeil nach unten linksWir schaffen Platz für Ihre Träume

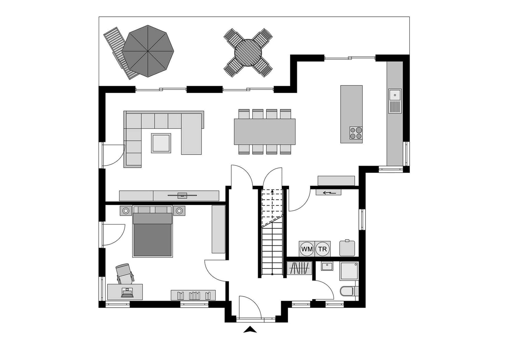
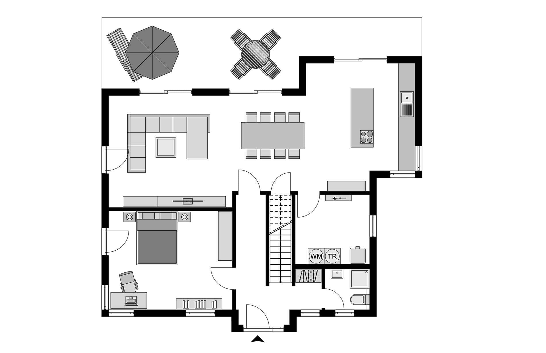
Grundriss

Fertighaus Stadtvilla Erdgeschoss-Grundriss mit Wohn-Ess-Kochbereich, Büro, Terrasse, Luftraum und Haustechnik
Klassiker City - Stadtvilla in Bauhausarchitektur  Grundriss (EG)
Fertighaus Stadtvilla Obergeschoss-Grundriss mit zwei Kinderzimmern, Schlafzimmer, Ankleide, Bädern und Dachterrasse
Klassiker City - Stadtvilla in Bauhausarchitektur  Grundriss (OG)

Unser Team vor Ort

STREIF HausFachberater*in bei STREIF Haus
Default Avatar
Wir beraten Sie gerne!Arrow Icon

Kataloge

STREIF Haus - Prospekt
STREIF Haus

STREIF Haus - Prospekt


STREIF Haus - Kundenmagazin
STREIF Haus

STREIF Haus - Kundenmagazin


House and TreeParksHouse and PinMusterhausHouse on HandAnbieter