1. AnbieterArrow Icon
  2. STREIF HausArrow Icon
  3. Home & Generation CITY 190
Slide 1
Slide 2
Slide 3
Slide 4
no description
STREIF HausHome & Generation CITY 190
homeKlassische Familienhäuser
livingArea189 m²
energyStandardEffizienzhaus 40 EE
Preis anfragen
Katalog bestellen

Home & Generation CITY 190

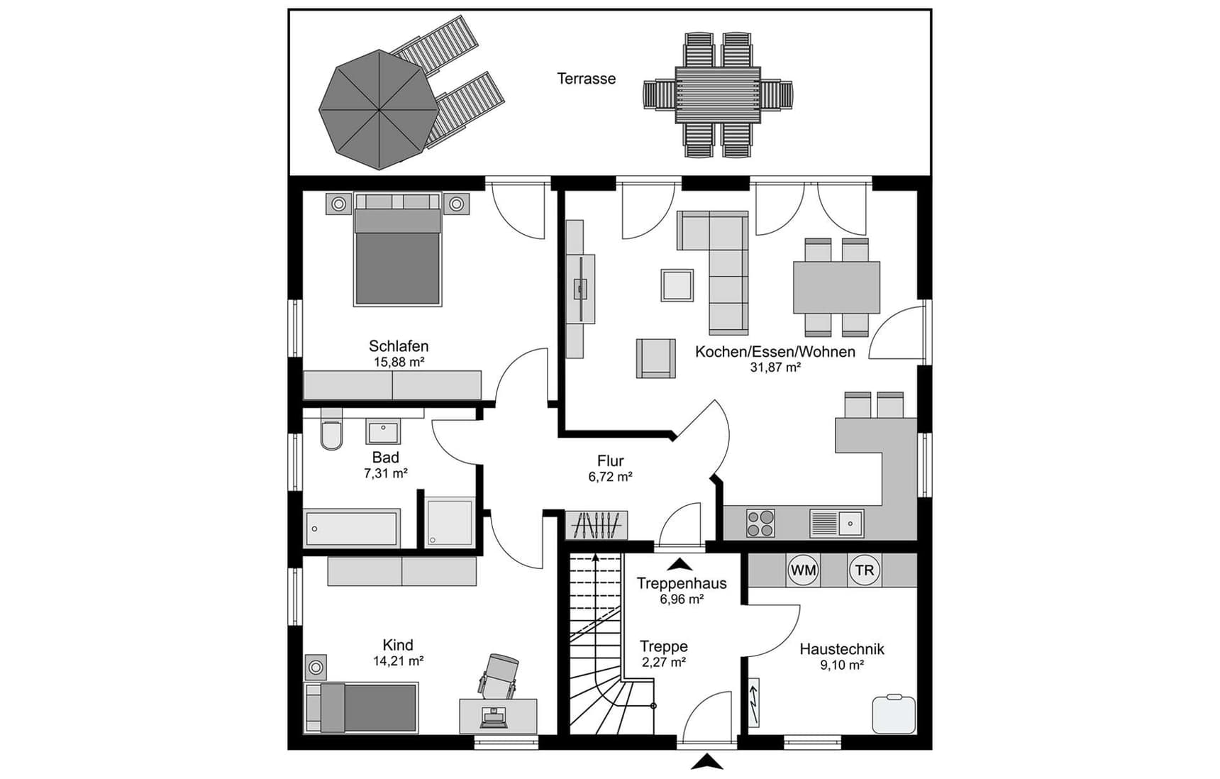
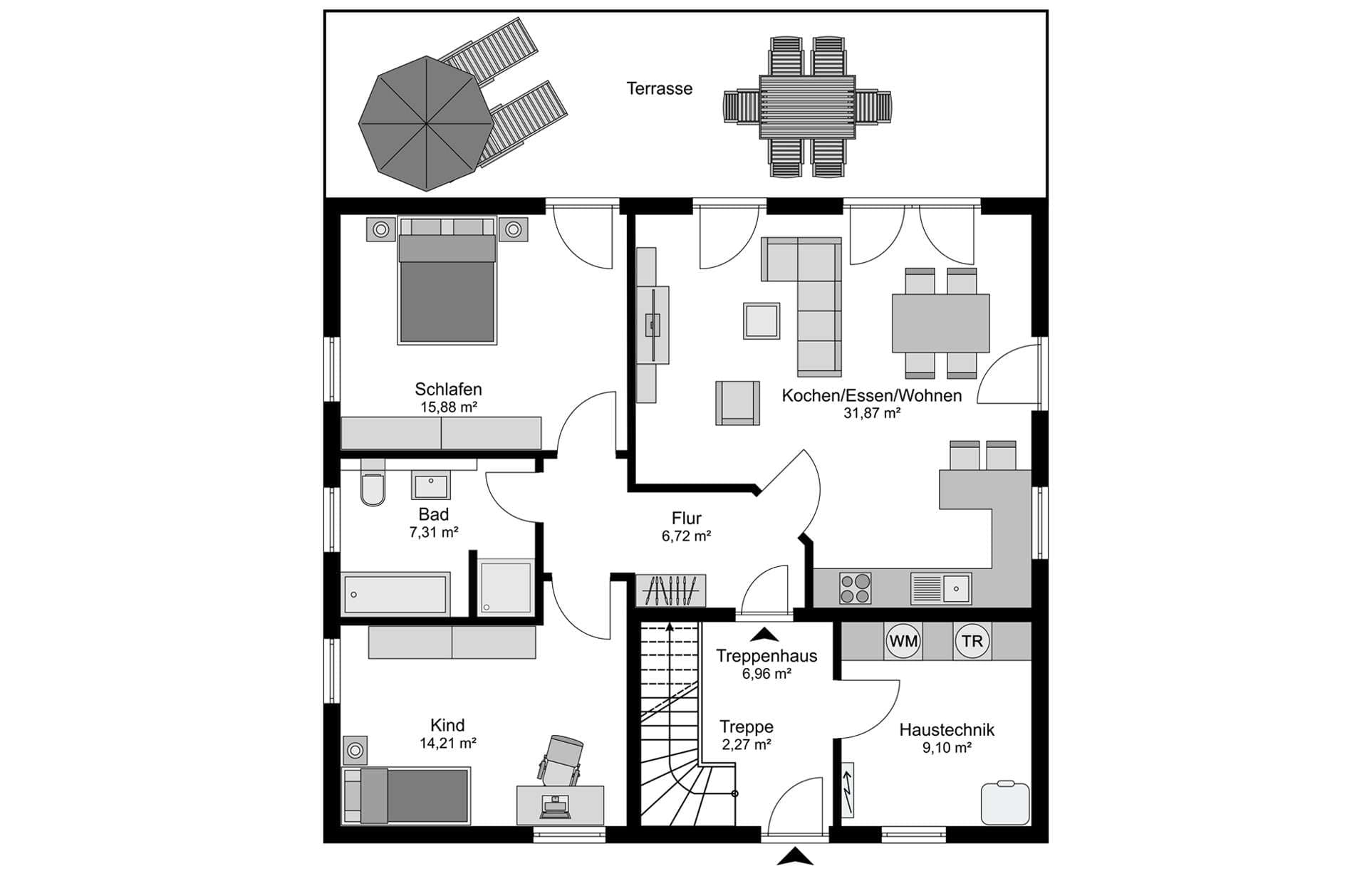
Zwei Wohnungen, eine gut durchdachte Grundrissplanung und eine moderne Eleganz in der Architektur bietet der Zweifamilien-Hausentwurf CITY 190 von STREIF (TH-ZH-WD-189). Die Basisversion des Entwurfes bietet die Möglichkeit, bei Bedarf Anbauteile hinzuzufügen. Ein Überecker, ein Balkon oder eine Überdachung bringen Individualität und Stil in die Hausarchitektur. Die geplanten bodentiefen, doppelflügeligen Terrassentüren bringen ein großzügiges Wintergartenfeeling in die Wohnbereiche der beiden Wohnungen. Beide Wohnungen sind mit einem offen gestalteten Koch-/Ess-und Wohnbereich, einem Schlafzimmer, einem Kinderzimmer und einem familienfreundlichen Bad mit Wanne und Dusche geplant. Kurze Wege und guter Wohnkomfort zeichnen die Grundrissgestaltung beider Wohnungen aus. Im Obergeschoss liegt direkt neben der Küche ein praktischer Hauswirtschafts-/Haustechnikraum. Im Erdgeschoss, separat im Flurbereich neben der Treppe, befindet sich der Haustechnik-/Hauswirtschaftsraum.

Die hohe Wertigkeit und Langlebigkeit eines STREIF-Energiespar-Hauses wird durch zahlreiche Auszeichnungen, Qualitäts- und Gütesiegel unabhängiger Institute und Verbände dokumentiert.

Baunebenkosten fallen zuzüglich an.
Die Angabe der Wohnfläche entspricht der Raumgrundfläche.

Bilder können Sonderausstattungen wie z. B. Dachneigungen, Anbauteile, Carports/Garagen, Balkone, Gauben usw. zeigen, die nicht im Grundriss abgebildet und nicht im Angebotspreis enthalten sind. Abgebildet ist der Basis-Grundriss ohne Anbauteile. Änderungen und Irrtümer vorbehalten.

Hausdaten

Bauweise Icon
BauweiseHolz-Tafelbau
Baustil Icon
BaustilKlassische Familienhäuser
Fassade Icon
FassadePutz
Wohnfläche Icon
Wohnfläche189 m²
Dachform Icon
DachformWalm-/Zeltdach
Energiestandard Icon
EnergiestandardEffizienzhaus 40 EE
Pfeil nach unten linksWir schaffen Platz für Ihre Träume

Grundriss

no description
Home & Generation CITY 190 Grundriss (EG)
no description
Home & Generation CITY 190 Grundriss (OG)

Unser Team vor Ort

STREIF HausFachberater*in bei STREIF Haus
Default Avatar
Wir beraten Sie gerne!Arrow Icon

Kataloge

STREIF Broschüre
STREIF Haus

STREIF Broschüre


Mit Herz und Verstand - Sinn und Antrieb von STREIF ist es, für die vielen Menschen, mit Leidenschaft und Können, ein für sie perfektes, langlebiges und wertbeständiges Zuhause zu schaffen, heute und für Generationen.
STREIF Kundenmagazin
STREIF Haus

STREIF Kundenmagazin


Häuser, so individuell wie Sie! Erfahren Sie mehr zum Thema Bauen mit STREIF.
House and TreeParksHouse and PinHäuser liveHouse on HandAnbieter