.jpg&w=1456&q=75)
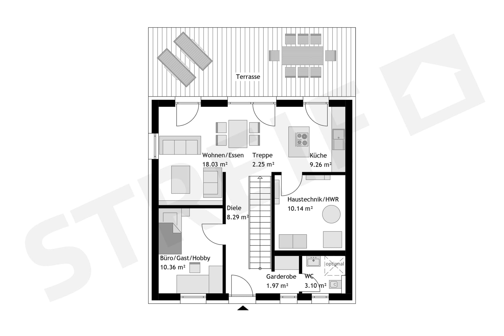
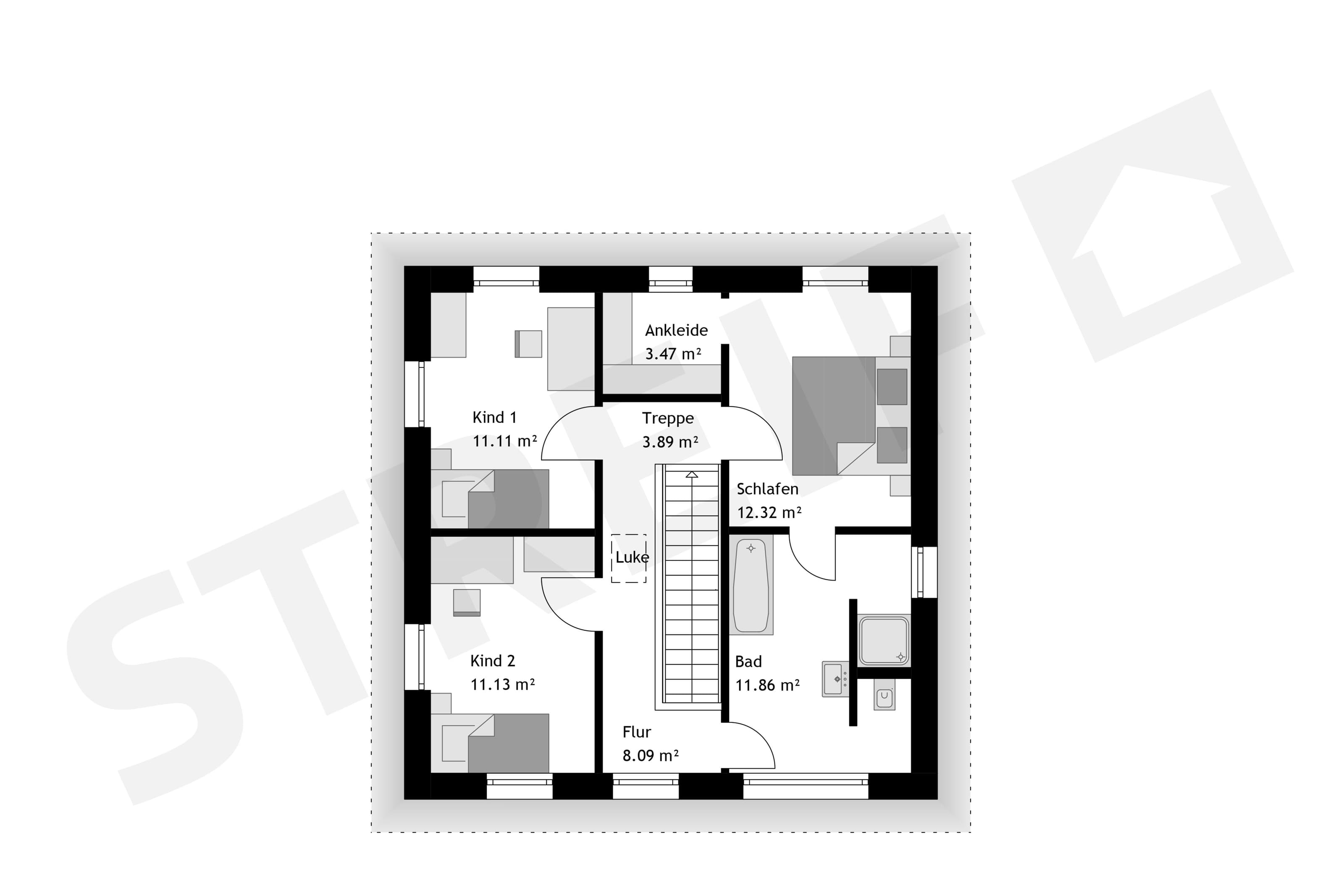
Die zweigeschossige Stadtvilla von STREIF besticht durch ihre moderne, repräsentative Architektur und ein durchdachtes Wohnkonzept voller Wohlfühlcharakter. Im Mittelpunkt steht der offene Wohn-, Ess- und Kochbereich, der mit drei Terrassentüren und großzügigen Fensterflächen helle, einladende Räume schafft. Im Erdgeschoss erweitern ein vielseitig nutzbares Zimmer (z. B. als Büro, Gäste- oder Hobbyraum), eine separate Garderobe sowie ein Bad mit optionaler Dusche das Raumangebot. Das Obergeschoss überzeugt mit zwei Kinderzimmern, einem komfortablen Familienbad und einem Elternbereich mit angrenzender Ankleide.
Das Haus ist in den Ausstattungslinien Smartline, Premiumline und Queensline erhältlich und kann in vier Ausbaustufen individuell angepasst werden. Eine optionale Klinkerfassade steht in 35 Varianten zur Auswahl . Aktionspreise bis 31.10.2025. Weitere Informationen dazu finden Sie auf unserer Webseite unter der STREIF-Haus ID: AH-SV-WD-125
Aktionspreis gültig beim Effizienzhausstandard 40, Hausgröße 125 m², Ausstattungslinie Premiumline, Ausbaustufe fastfertig+.
Grundrisse sind individualisierbar (ausgenommen Bäder und Haustechnikräume). Abbildungen können Sonderausstattungen enthalten. Unsere regionale Bauberatung informiert Sie gerne über Anpassungen und Fördermöglichkeiten.

