.jpg&w=1456&q=75)
Das zweigeschossige Einfamilienhaus präsentiert sich mit moderner Architektur, klaren Linien und einer intelligenten Raumaufteilung auf rund 133 m² Wohnfläche.
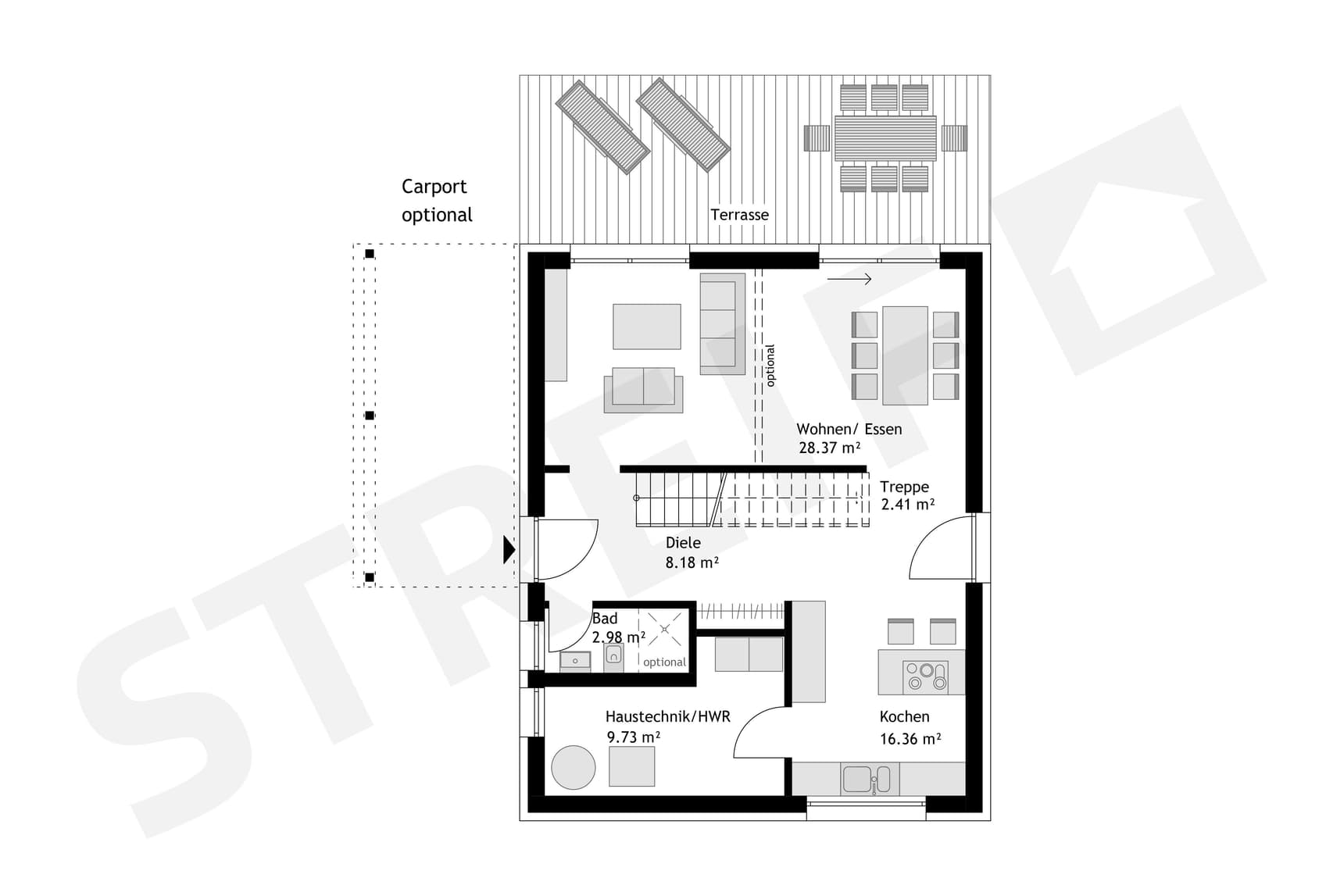
Zur Straßenseite hin bietet ein schmales Fensterband Privatsphäre, während auf der Gartenseite ein großzügiges Panoramafenster und eine Hebeschiebetür für lichtdurchflutete Wohnräume sorgen.
Im Erdgeschoss trennt eine zentral platzierte, geradläufige Treppe den offenen Wohn- und Essbereich von Diele, Gäste-WC (optional mit Dusche), Garderobe und Haustechnik. Die Küche ist offen, jedoch geschickt abgewinkelt – ideal, um eine optische Trennung zum Essbereich zu schaffen.
Das Dachgeschoss beherbergt zwei gleich große Kinderzimmer, den Elternbereich sowie ein komfortables Familienbad.
Die Grundrisse können individuell angepasst werden (ausgenommen Bäder und Haustechnikräume). Änderungen sind abhängig von Haustechnik und regionalen Bauvorschriften.
Abbildungen zeigen teilweise Sonderausstattungen. Unsere Bauberatung informiert Sie gerne über Fördermöglichkeiten und individuelle Gestaltungslösungen.
Weitere Informationen dazu finden Sie auf unserer Webseite unter der STREIF-Haus ID: AH-EFH-SD-133

