Dieses klassisch gestaltete STREIF-Einfamilienhaus (STREIF-Haus-ID: AH-EFH-SD-154) überzeugt mit einem durchdachten und familienfreundlichen Grundriss. Im Erdgeschoss erwartet Sie ein rund 43 m² großer, offen gestalteter Wohn-, Ess- und Kochbereich, der das Herzstück des Hauses bildet – ideal für gemeinsames Familienleben und gemütliche Stunden. Ergänzt wird das Raumangebot durch ein flexibel nutzbares Zusatzzimmer, das sich perfekt als Gästezimmer, Homeoffice oder Hobbyraum eignet. Optional lässt sich zudem ein zweites Duschbad im Erdgeschoss integrieren – ein praktischer Vorteil für den Alltag.
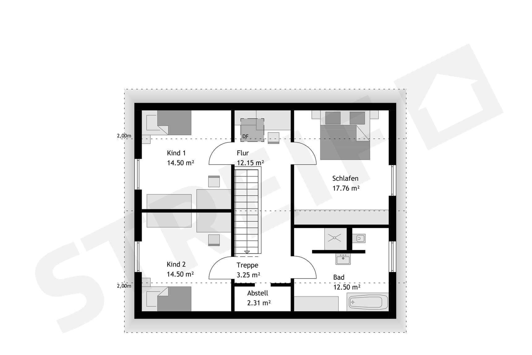
Im Dachgeschoss stehen drei großzügige Schlafzimmer zur Verfügung, die vielseitig genutzt werden können – als Elternschlafzimmer, Kinderzimmer oder Arbeitszimmer. Ein geräumiges Familienbad mit moderner Ausstattung rundet das Obergeschoss ab und sorgt für zusätzlichen Wohnkomfort.
Folgende STREIF-Leistungen sind im Hauspreis unserer Platzwunder enthalten – bei Ausbaustufe fastfertig+ in der Ausstattungslinie Smartline, ohne Fundamentplatte:
•Inklusive STREIF-Luft-Luft-Wärmepumpen-Technologie, mit integrierter Lüftungsanlage mit Wärmerückgewinnung
•Inklusive Kunststoffhaustür
•Inklusive hocheffizienten Kunststoff-Fenstern von Porta/Kömmerling mit 3-fach-Wärmeschutzverglasung
•Inklusive Treppe in Buche natur, keilgezinkt aus eigener Produktion (außer Bungalow)
•Bad/WC gefliest inklusive Sanitärobjekten von Markenherstellern
•Inklusive Elektroinstallation u.v.m.
•Inklusive Vorbereitung zur Installation einer Photovoltaik-Anlage
•Änderung gegen Aufpreis möglich
Die Fundamentplatte wird zum Platzwunder-Aktionspreis angeboten.
Die gezeigten Abbildungen können Sonderausstattungen oder Anbauteile enthalten, die nicht im Standard-Lieferumfang enthalten sind.

