Dieses moderne Aktionshaus "Unsere Besten - Doppelhaus 2" (STREIF-Haus-ID: TH-DH-WD-140) als Fertighaus mit Walmdach kombiniert zeitgemäße Architektur mit hoher Wohnqualität. Die elegante Dachform sorgt für eine stilvolle Optik und überzeugt zugleich durch Langlebigkeit und Schutz vor Witterungseinflüssen. Jeder Entwurf wird bei STREIF individuell nach Kundenwunsch geplant – für ein einzigartiges Zuhause.
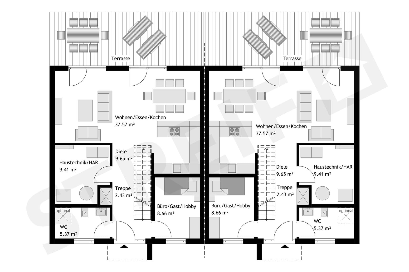
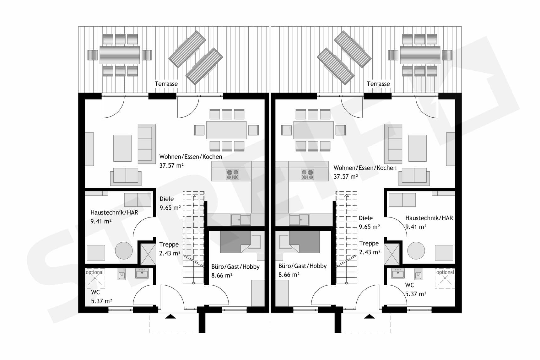
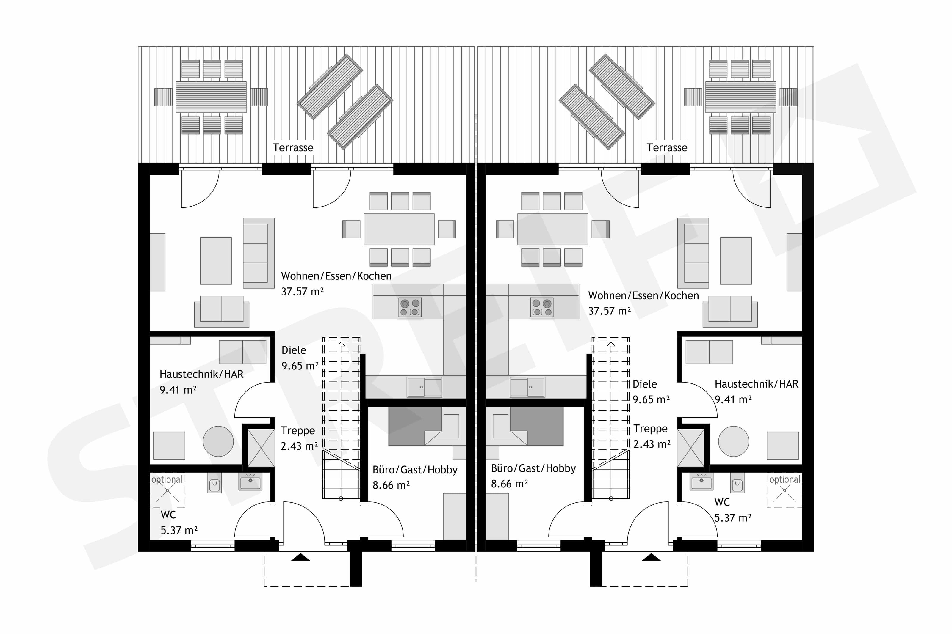
Der offen gestaltete Wohn-, Ess- und Kochbereich im Erdgeschoss bietet auf rund 39 m² viel Raum für gemeinsames Leben. Große Fensterflächen, eine Panorama-Hebeschiebetür und eine doppelflügelige Terrassentür schaffen helle, freundliche Räume mit direktem Zugang zur Terrasse. Ein zusätzliches Zimmer im Erdgeschoss bietet flexible Nutzungsmöglichkeiten, etwa als Homeoffice, Gäste- oder Schlafzimmer. Mit einem optionalen Duschbad lässt sich sogar das Wohnen auf einer Ebene realisieren.
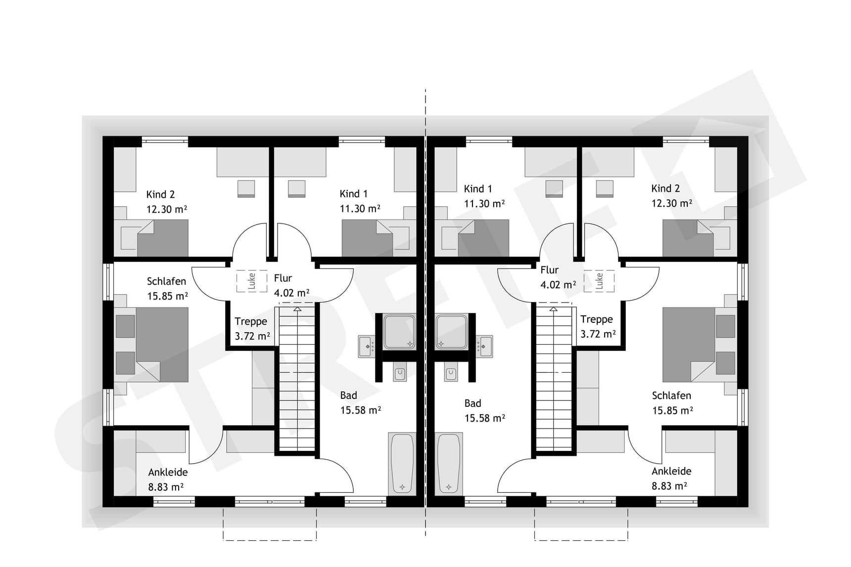
Im Obergeschoss erwarten Sie ein komfortabler Elternbereich mit begehbarer Ankleide, zwei Kinderzimmer und ein geräumiges Familienbad – ideal für modernes Familienleben. Wichtig: Aufgrund der Bauweise müssen beide Haushälften gleichzeitig errichtet werden – optimal für gemeinsame Bauprojekte mit Familie oder Freunden.
Jedes STREIF-Doppelhaus wird energieeffizient, individuell und wertbeständig gebaut – abgestimmt auf Ihre Wünsche und Bedürfnisse. Fragen Sie Ihre persönliche STREIF-Bauberatung in der Region. Diese informiert Sie gerne auch über die aktuellen KfW-Fördermöglichkeiten.
Die präsentierten Grundrissdarstellungen sind als Beispiele zu verstehen und können individuell angepasst werden. Abhängig von der gewählten technischen Ausstattung und den jeweiligen Bauvorgaben vor Ort kann es notwendig sein, bestimmte Änderungen vorzunehmen. Alle angegebenen Maße verstehen sich als ungefähre Richtwerte.
Unter Berücksichtigung der gewählten Dachform und Grundrissstruktur ist eine ökologische Bewertung nach KFWG-Standard bei den Ausstattungsserien Premium und Queensline unter Umständen realisierbar.
Gestalterische Freiheiten bestehen grundsätzlich, jedoch bleiben die Position der Sanitärbereiche sowie die Dimension und Platzierung des Technikraums fix. Für ausführliche Informationen zu aktuellen Förderprogrammen stehen Ihnen unsere STREIF-Bauberatungen gerne zur Verfügung.
Bitte beachten Sie, dass einige der dargestellten Visualisierungen optionale Ausstattungen oder Zusatzbauteile enthalten können, die nicht zum Lieferumfang gehören.
Folgende STREIF-Leistungen sind im Bestpreis unserer Bestseller enthalten – bei Ausbaustufe fastfertig+ in der Ausstattungslinie Smartline:
•Inklusive Fundamentplatte
•Inklusive STREIF-Luft-Luft-Wärmepumpen-Technologie, mit integrierter Lüftungsanlage mit Wärmerückgewinnung
•Inklusive Kunststoffhaustür
•Inklusive hocheffizienten Kunststoff-Fenstern von Porta/Kömmerling
•Inklusive Treppe in Buche natur aus eigener Produktion (außer Bungalow)
•Inklusive Sanitärobjekten von Markenherstellern in Bad/WC
•Inklusive Elektroinstallation u.v.m.
•Inklusive Vorbereitung zur Installation einer Photovoltaik-Anlage
•Individuelle Grundrissgestaltung und Raumaufteilung möglich | Die Position der Bäder, die Größe der Haustechnikräume und der Treppen sind bei „Unsere Besten“ nicht veränderbar.
Die gezeigten Abbildungen können Sonderausstattungen oder Anbauteile enthalten, die nicht im Standard-Lieferumfang enthalten sind.

