Das Aktionshaus City (STREIF-Haus-ID: AH-SV-WD-125) aus der Reihe "Herzenshäuser " vereint modernes Design mit durchdachter Funktionalität. Die 2-geschossige Stadtvilla mit Walmdach überzeugt mit lichtdurchfluteten Räumen und einer flexiblen Raumaufteilung.
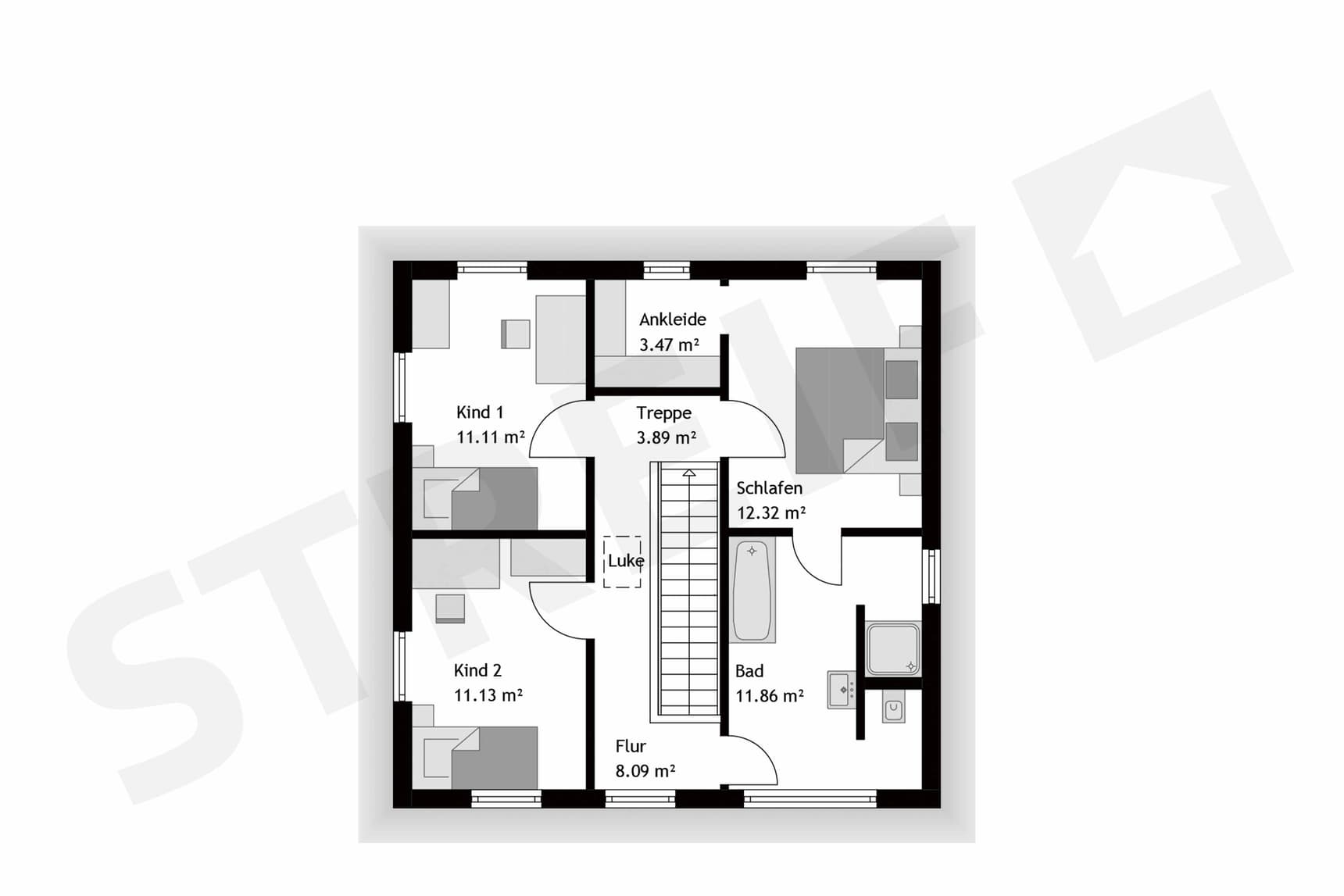
Im Erdgeschoss bietet ein Zusatzraum Platz für Büro, Gäste oder Hobby, zudem ist eine optionale Dusche möglich. Eine geradläufige Treppe führt ins Obergeschoss, das perfekt auf Familienbedürfnisse abgestimmt ist. Die City-Linie ist auch mit anderen Treppen-Varianten erhältlich.
Das Aktionshaus “Herzenshäuser - City” ist in drei Größen verfügbar und optional auch mit Holz- oder Klinkerfassade möglich:
L – 125,27 m²
XL – 144,36 m²
XXL – 175,56 m²
Planen Sie jetzt Ihre Zukunft in einem energieeffizienten Zuhause und sichern sich einen unserer Bestseller zu Bestpreisen.
STREIF-Fertighäuser sind förderfähig. Fragen Sie Ihre persönliche STREIF-Bauberatung in der Region. Diese informiert Sie gerne über die aktuellen KfW-Fördermöglichkeiten.
Die präsentierten Grundrissdarstellungen sind als Beispiele zu verstehen und können individuell angepasst werden. Abhängig von der gewählten technischen Ausstattung und den jeweiligen Bauvorgaben vor Ort kann es notwendig sein, bestimmte Änderungen vorzunehmen. Alle angegebenen Maße verstehen sich als ungefähre Richtwerte.
Unter Berücksichtigung der gewählten Dachform und Grundrissstruktur ist eine ökologische Bewertung nach KFWG-Standard bei den Ausstattungsserien Premium und Queensline unter Umständen realisierbar.
Gestalterische Freiheiten bestehen grundsätzlich, jedoch bleiben die Position der Sanitärbereiche sowie die Dimension und Platzierung des Technikraums fix. Für ausführliche Informationen zu aktuellen Förderprogrammen stehen Ihnen unsere STREIF-Bauberatungen gerne zur Verfügung.
Bitte beachten Sie, dass einige der dargestellten Visualisierungen optionale Ausstattungen oder Zusatzbauteile enthalten können, die nicht zum Lieferumfang gehören.
Folgende STREIF-Leistungen sind bei den Hauspreisen für die Herzenshäuser bei Ausbaustufe fastfertig+ in der STREIF-Standard-Ausstattungslinie PREMIUMLINE enthalten:
•Inklusive gedämmter Fundamentplatte
•Inklusive STREIF-Luft-Luft-Wärmepumpen-Technologie mit integrierter Lüftungsanlage und Wärmerückgewinnung
•Inklusive Holzhaustür von KERA-Tür
•Inklusive Fenster von Porta/Kömmerling
•Inklusive Treppe aus eigener Produktion
•Inklusive gefliestem Bad mit Sanitärobjekten von Markenherstellern in Bad und WC
•Inklusive frostsicherer Außenzapfstelle
•Inklusive Elektroinstallation u. v. m.
•Inklusive Vorbereitung zur Installation einer Photovoltaikanlage
•Individuelle Grundrissgestaltung und Raumaufteilung möglich
Die gezeigten Abbildungen können Sonderausstattungen oder Anbauteile enthalten, die nicht im Standard-Lieferumfang enthalten sind.

