1. AnbieterArrow Icon
  2. Sonnleitner HolzbauwerkeArrow Icon
  3. Kundenhaus 'Frankfurt'
Slide 1
Slide 2
Slide 3
Slide 4
Slide 5
Slide 6
Slide 7
Slide 8
Slide 9
Slide 10
Slide 11
Sonnleitner_Logo_2.jpg
Sonnleitner HolzbauwerkeKundenhaus 'Frankfurt'
homeVillen
livingArea289 m²
energyStandardEffizienzhaus 55
Preis anfragen
Katalog bestellen

Kundenhaus 'Frankfurt'

Holz im Bauhausstil Ein Holzhaus wird zum Architektenhaus im klaren Bauhausstil mit spektakulären Logenplätzen

Wohnen, essen, kochen und schlafen mit Blick in die Natur. Großzügige Glasfronten lassen Wohnträume wahr werden.

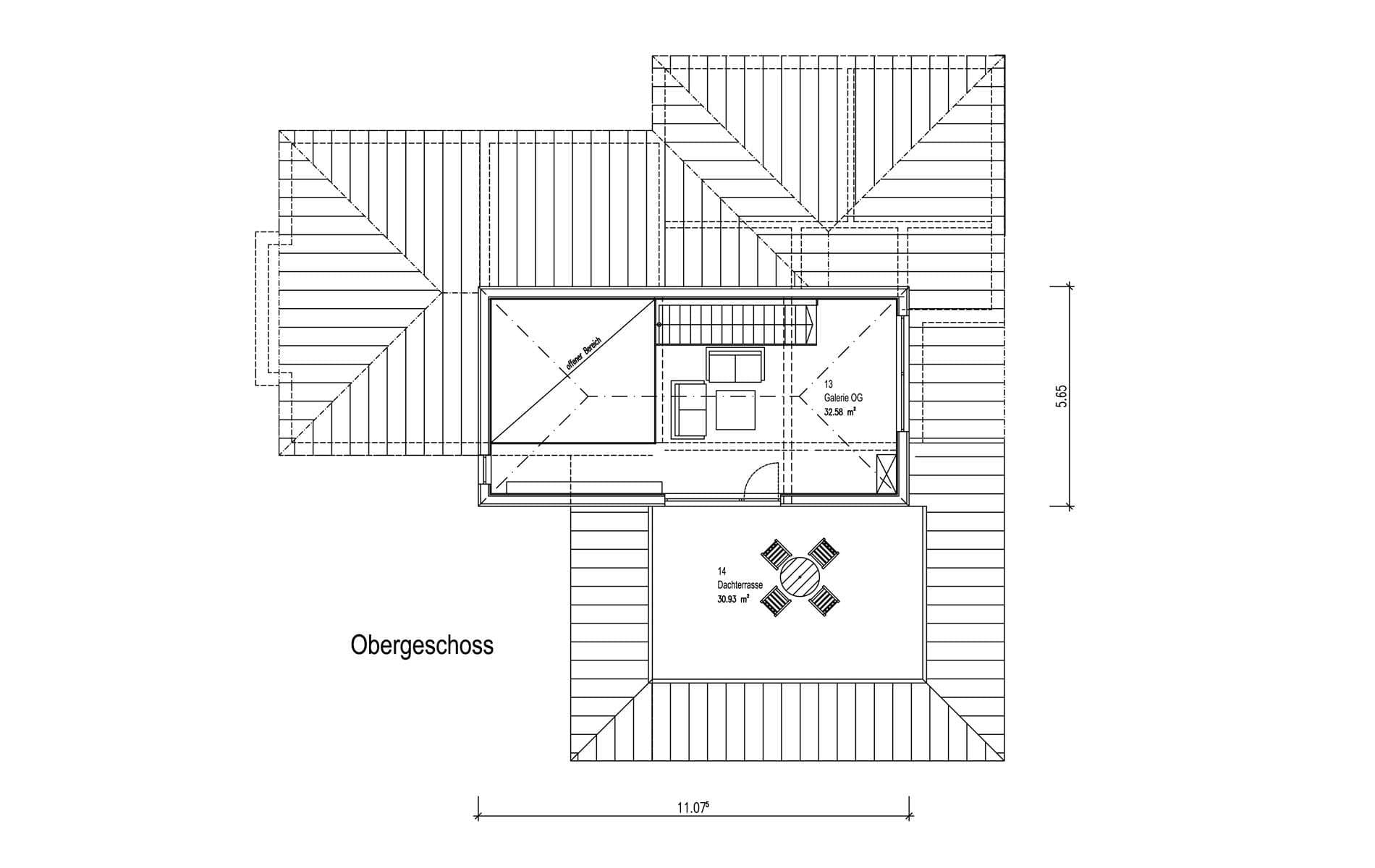
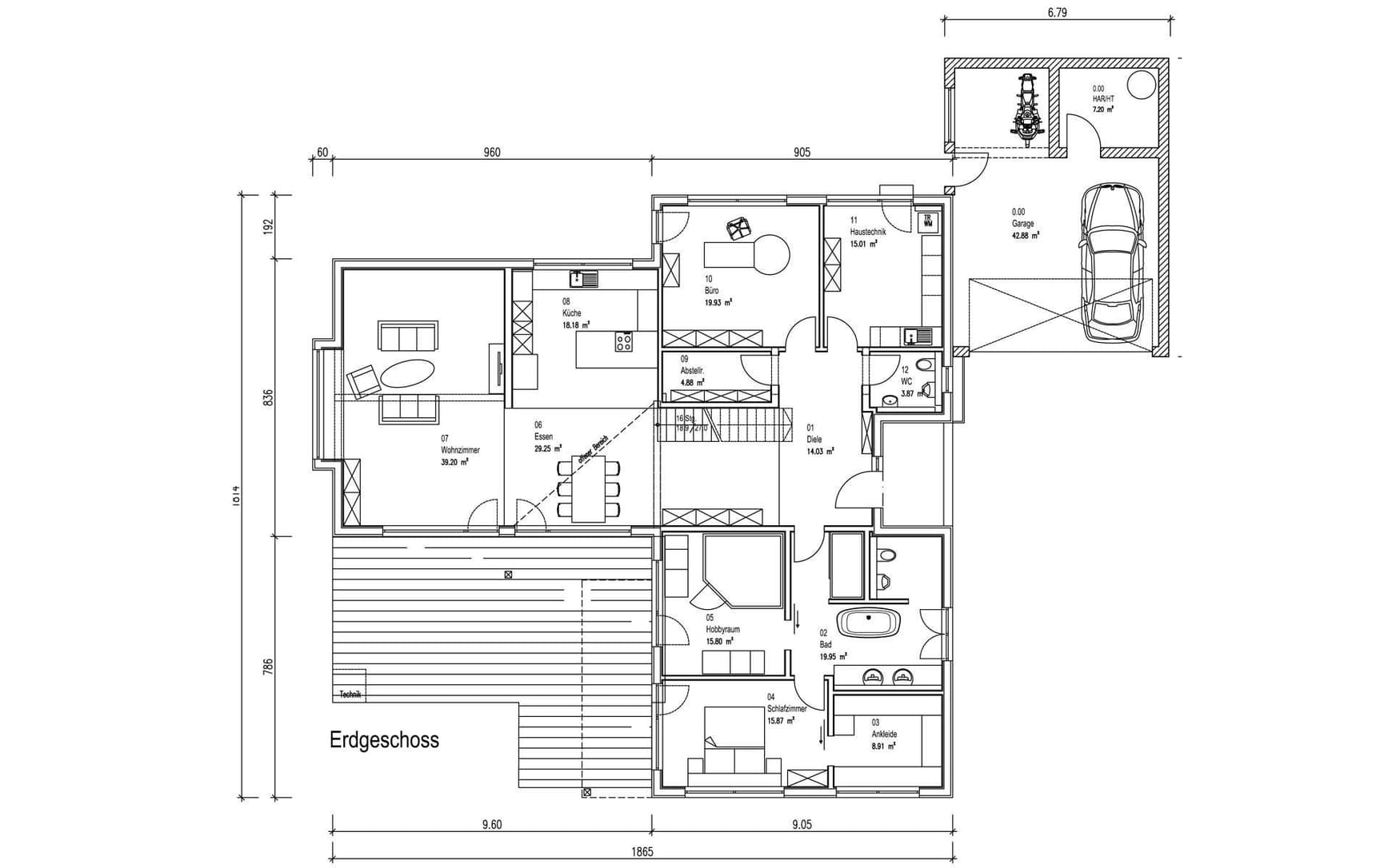
Die individuelle Grundrisslösung des Hauses auf dem Hanggrundstück mit rund 288 m2 Gesamtwohnfläche bietet im Erdgeschoss eine großzügige Komplettwohneinheit mit 204 m². Der offene Wohn-Essbereich mit Küche verfügt über einen großflächig verglasten Zugang zur Terrasse mit Pool und einem riesigen Panoramafenster. Über Eck befinden sich Schlafzimmer und Hobbyraum. Auch diese gehen durch eine Vollverglasung optisch direkt in die Terrasse über, die bei ca. 75 m² genug Fläche für einen Pool bietet. Die restlichen 48 m² Wohnfläche im Dachgeschoss beherbergen eine Galerie, die über eine raumbreite Verglasung mit einer 30 m² große Dachterrasse optisch verbunden ist und einen spektakulären Blick in die Natur bietet.

Individuelle Holzeinbauschränke im Ankleidebereich, eine eingebaute Deckenbeleuchtung und eine integrierte Sitzmöglichkeit aus Holz am Panoramafenster zeigen auch im Ausbaubereich Handwerkskunst auf hohem Niveau.

Das Haus wurde als ökologische Holzkonstruktion  errichtet und überzeugt auch mit inneren Werten. Als  Energiestandard wird KfW 55 mit einer Luft-Wärmepumpen-Heizung ausgezeichnet. Der Endenergiebedarf beträgt 19,8 kWh/(m²a). Ein Schwedenofen bietet zusätzliche Wohlfühlwärme

Weitere Infos und Impressionen

Hausdaten

Hausart Icon
HausartEinfamilienhaus
Bauweise Icon
BauweiseMassivholzkonstruktion
Anzahl Räume Icon
Anzahl Räume6
Baustil Icon
BaustilVillen
Fassade Icon
FassadePutz
Außenmaße Icon
Außenmaße18.14 m x 18.65 m
Wohnfläche Icon
Wohnfläche288.92 m²
Dachform Icon
DachformWalm-/Zeltdach
Energiestandard Icon
EnergiestandardEffizienzhaus 55
Immobilientyp Icon
ImmobilientypKundenhaus
Dachneigung Icon
Dachneigung17°
Kniestock Icon
Kniestock2.5 m
Hauseigenschaften Icon
HauseigenschaftenViel Glas, Turm, Terasse
Hausdämmstoff Icon
HausdämmstoffHolzfaser- und Zellulosedämmstoffe
Heizungsart Icon
HeizungsartWärmepumpe (Luft, Wasser, oder beides)
Pfeil nach unten linksWir schaffen Platz für Ihre Träume

Grundriss

Der Grundriss des EGs des modernen Bungalows aus Holz im Bauhausstil mit mineralischem Außenputz
Kundenhaus 'Frankfurt' Grundriss (EG)Wohnfläche EG: 204,88 m²
Der Grundriss der Galerie des modernen Bungalows aus Holz im Bauhausstil mit mineralischem Außenputz
Kundenhaus 'Frankfurt' Grundriss (DG)Wohnfläche DG: 48,04 m²

Kataloge

Sonnleitner: Hauskatalog
Sonnleitner Holzbauwerke

Sonnleitner: Hauskatalog


House and TreeParksHouse and PinMusterhausHouse on HandAnbieter