1. AnbieterArrow Icon
  2. Sonnleitner HolzbauwerkeArrow Icon
  3. Kundenhaus 'Zumkeller'
Slide 1
Slide 2
Slide 3
Slide 4
Slide 5
Sonnleitner_Logo_2.jpg
Sonnleitner HolzbauwerkeKundenhaus 'Zumkeller'
homeKlassische Familienhäuser
livingArea165 m²
energyStandardEffizienzhaus 55
Preis anfragen
Katalog bestellen

Kundenhaus 'Zumkeller'

Ökologisches Wohnen

Ökologisches Wohnen für fünf Personen. Als Familie Zumkeller zu uns kam, hatte sie bereits sehr klare Vorstellungen hinsichtlich ihres neuen Eigenheims: Bauökologisch und baubiologisch einwandfrei sollte es werden, „schnörkellos“ und „weitgehend wartungsfrei“. Gesagt, getan!

Bei der gemeinsamen Planung verzichtete man bei der Dachkonstruktion ganz bewusst auf den sonst üblichen, großen Dachüberstand zum Schutz der Fassade. Die unbehandelte, mit gefrästen Quernuten versehene Blockbohlen-Fassade aus widerstandsfähigem Lärchenholz sollte schnellstmöglich ihre natürliche, silbergraue Patina ausbilden. Die Zinkblech-Einfassung an Giebel- und Traufseiten – in Kombination mit eckigen Dachrinnen – verstärkt den gewollt puristischen Charakter dieses Hauses. Ebenso: die schlichten, bodentiefen Holz-Alu-Fenster und -Türen.

Weitere Infos und Impressionen

Hausdaten

Hausart Icon
HausartEinfamilienhaus
Bauweise Icon
BauweiseMassivholzkonstruktion
Baustil Icon
BaustilKlassische Familienhäuser
Fassade Icon
FassadeHolz
Außenmaße Icon
Außenmaße12 m x 9 m
Wohnfläche Icon
Wohnfläche164.78 m²
Dachform Icon
DachformSattel-/Giebeldach
Energiestandard Icon
EnergiestandardEffizienzhaus 55
Immobilientyp Icon
ImmobilientypKundenhaus
Hauseigenschaften Icon
HauseigenschaftenTerasse
Hausdämmstoff Icon
HausdämmstoffHolzfaser- und Zellulosedämmstoffe
Heizungsart Icon
HeizungsartHolzpelletheizung
Pfeil nach unten linksWir schaffen Platz für Ihre Träume

Grundriss

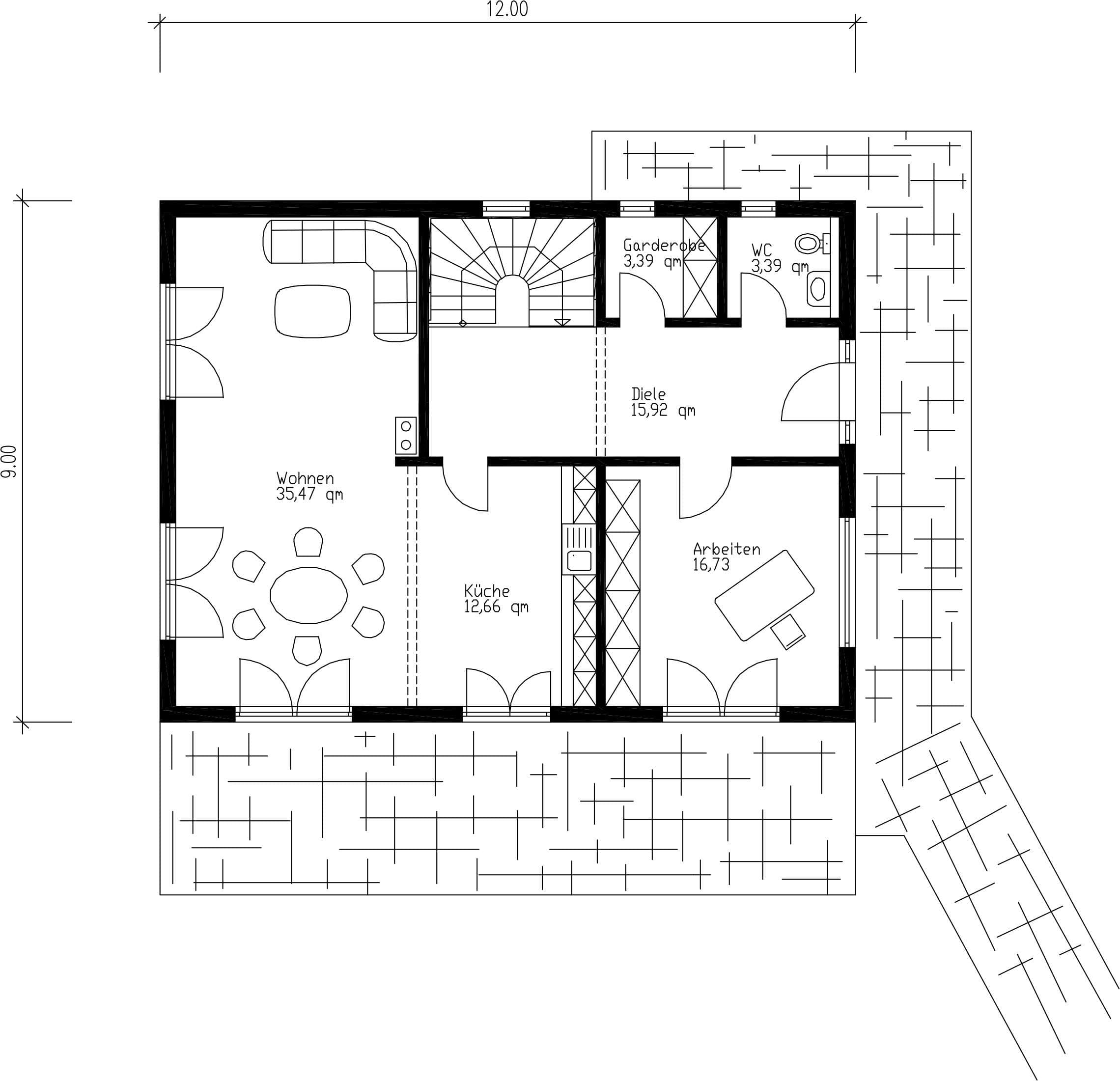
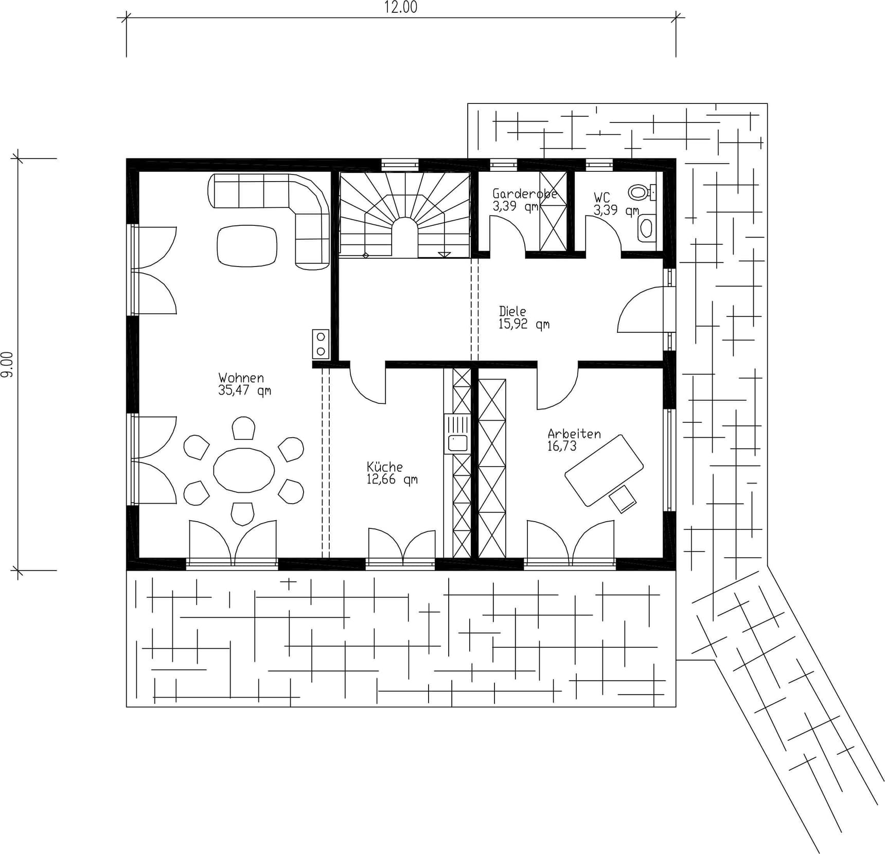
Der Grundriss des EGs des modernen Holzhauses mit ergrauter Lärchenholzfassade, ohne Dachüberstand für schnelle und gleichmäßige Ergrauung
Kundenhaus 'Zumkeller' Grundriss (EG)Wohnfläche EG: 87,56 m²
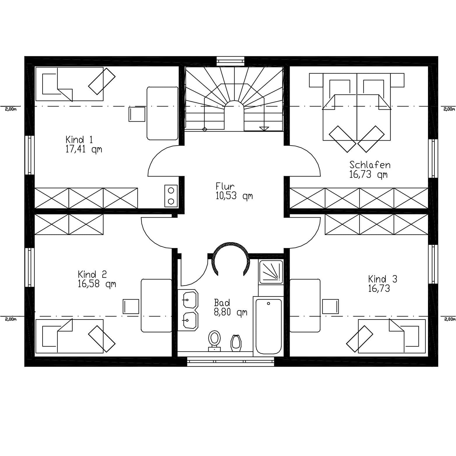
Der Grundriss des OGs des modernen Holzhauses mit ergrauter Lärchenholzfassade, ohne Dachüberstand für schnelle und gleichmäßige Ergrauung
Kundenhaus 'Zumkeller' Grundriss (OG)Wohnfläche OG: 77,22 m²
House and TreeParksHouse and PinMusterhausHouse on HandAnbieter