1. AnbieterArrow Icon
  2. Sonnleitner HolzbauwerkeArrow Icon
  3. Kundenhaus 'Rother'
Slide 1
Slide 2
Slide 3
Slide 4
Slide 5
Slide 6
Slide 7
Sonnleitner_Logo_2.jpg
Sonnleitner HolzbauwerkeKundenhaus 'Rother'
homeLandhäuser
livingArea154 m²
energyStandardEffizienzhaus 55
Preis anfragen
Katalog bestellen

Kundenhaus 'Rother'

Natur pur in kompaktem Architekturkleid

Ökologisch und energieeffizient in der Bauweise, gepaart mit traditionellen Elementen, kann dieser kompakte Landhausentwurf zahlreiche Vorteile durch Konsequenz aufweisen. Dass man über Geschmack nicht streiten kann, zeigt sich bereits im Inneren dieses Holzhauses von Sonnleitner: Sinnvoller Komfort gepaart mit jeder Menge persönlichen Einrichtungsgegenständen aus unterschiedlichsten Zeitepochen. Ein wahrer Holzhaustraum aus Lärchenholz.

Der kompakte Baukörper hat die klare architektonische Handschrift eines klassisch schönen und ökologischen Holzhauses, außen wie innen. Mit zwei Vollgeschossen knüpft dieser Hausentwurf nicht nur an regionale Bautraditionen an – es ist ein Vorzeigeholzhaus, das sich nahtlos an die naturbelassene Umgebung einfügt.

Das Haupthaus mit freistehendem Garagengebäude samt Werkstattraum wird von einem flachen Satteldach mit breitem Dachüberstand vor Witterungseinflüssen bestens geschützt. Auffällig ist, dass der typische Holzhauscharakter lediglich durch farbig abgesetzte Holz-Alufenster optisch dezent unterbrochen wurde.

Weitere Infos und Impressionen

Hausdaten

Hausart Icon
HausartEinfamilienhaus
Bauweise Icon
BauweiseHolz-Tafelbau
Baustil Icon
BaustilLandhäuser
Fassade Icon
FassadeHolz
Außenmaße Icon
Außenmaße11.88 m x 8.04 m
Wohnfläche Icon
Wohnfläche153.88 m²
Dachform Icon
DachformSattel-/Giebeldach
Energiestandard Icon
EnergiestandardEffizienzhaus 55
Immobilientyp Icon
ImmobilientypKundenhaus
Dachneigung Icon
Dachneigung16°
Kniestock Icon
Kniestock2.78 m
Hauseigenschaften Icon
HauseigenschaftenTerasse
Hausdämmstoff Icon
HausdämmstoffHolzfaser- und Zellulosedämmstoffe
Heizungsart Icon
HeizungsartGas-Brennwertheizung
Pfeil nach unten linksWir schaffen Platz für Ihre Träume

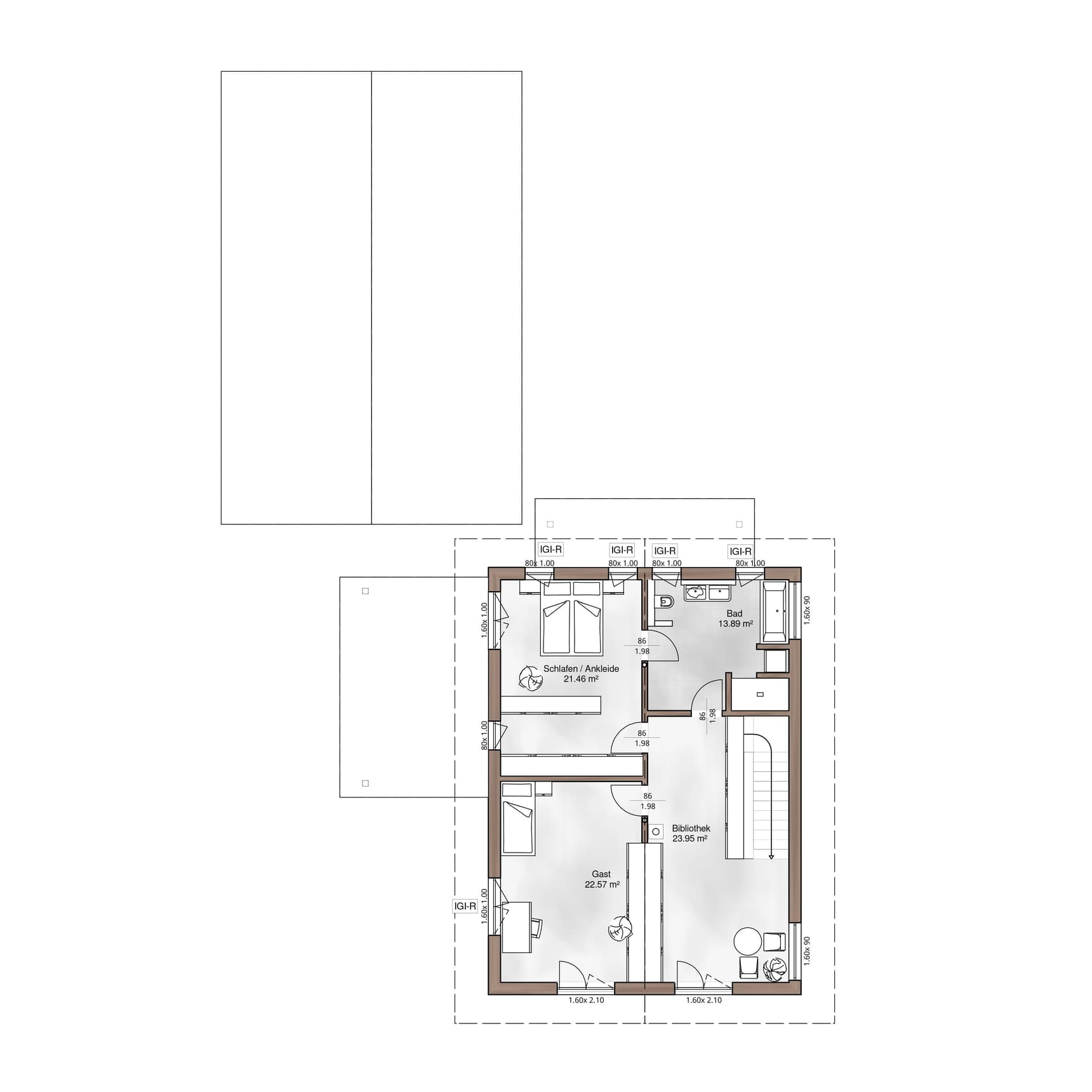
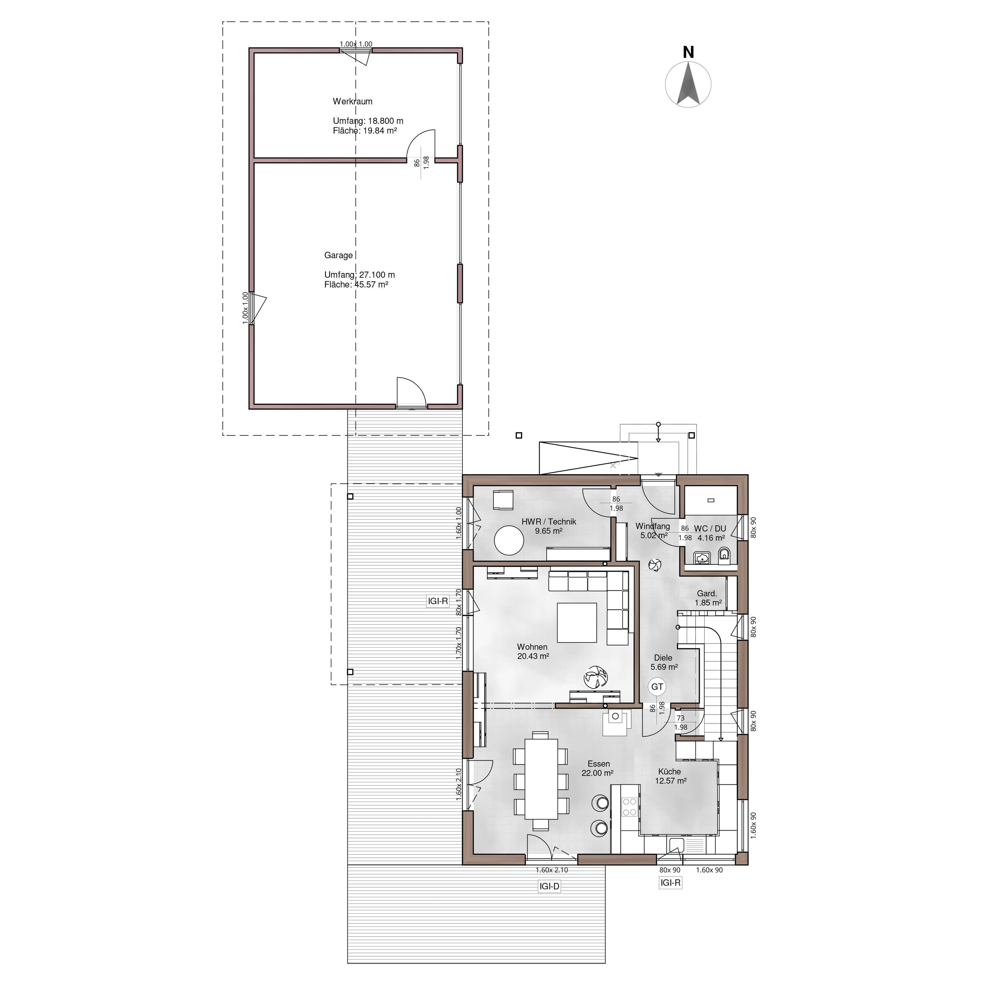
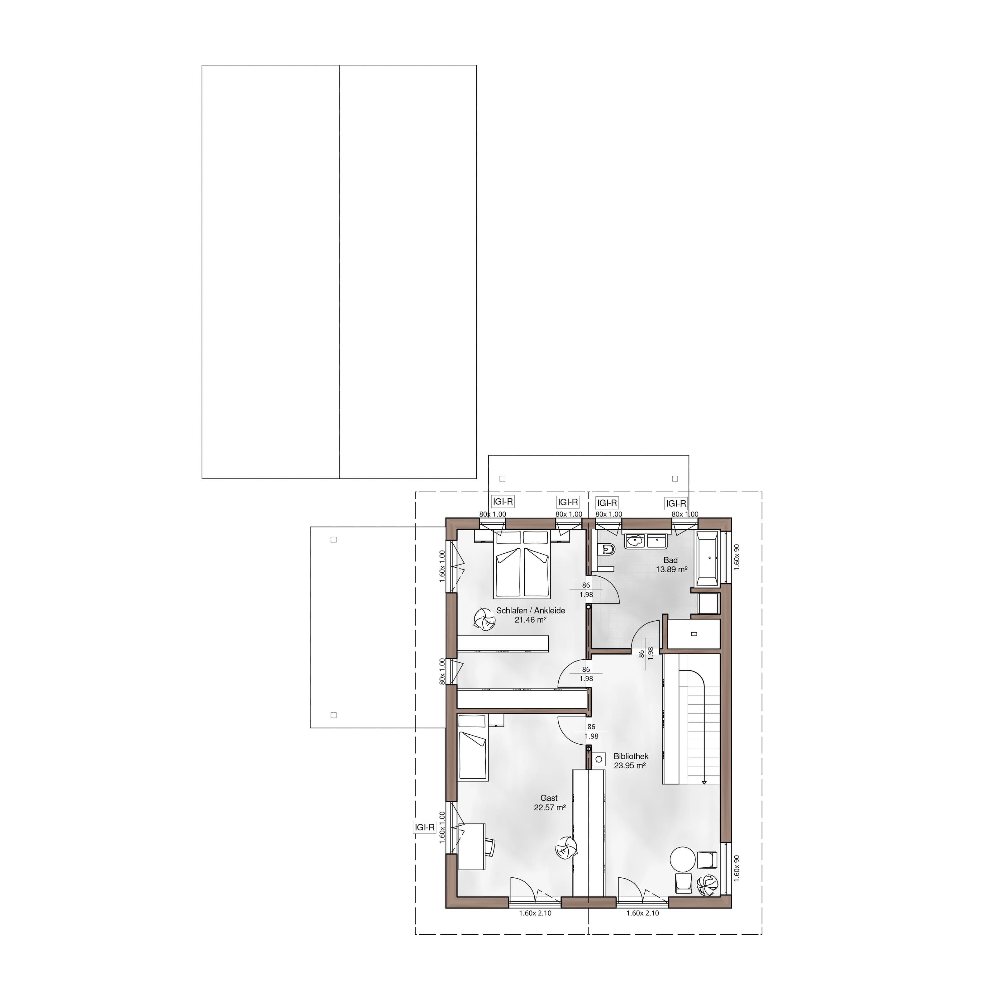
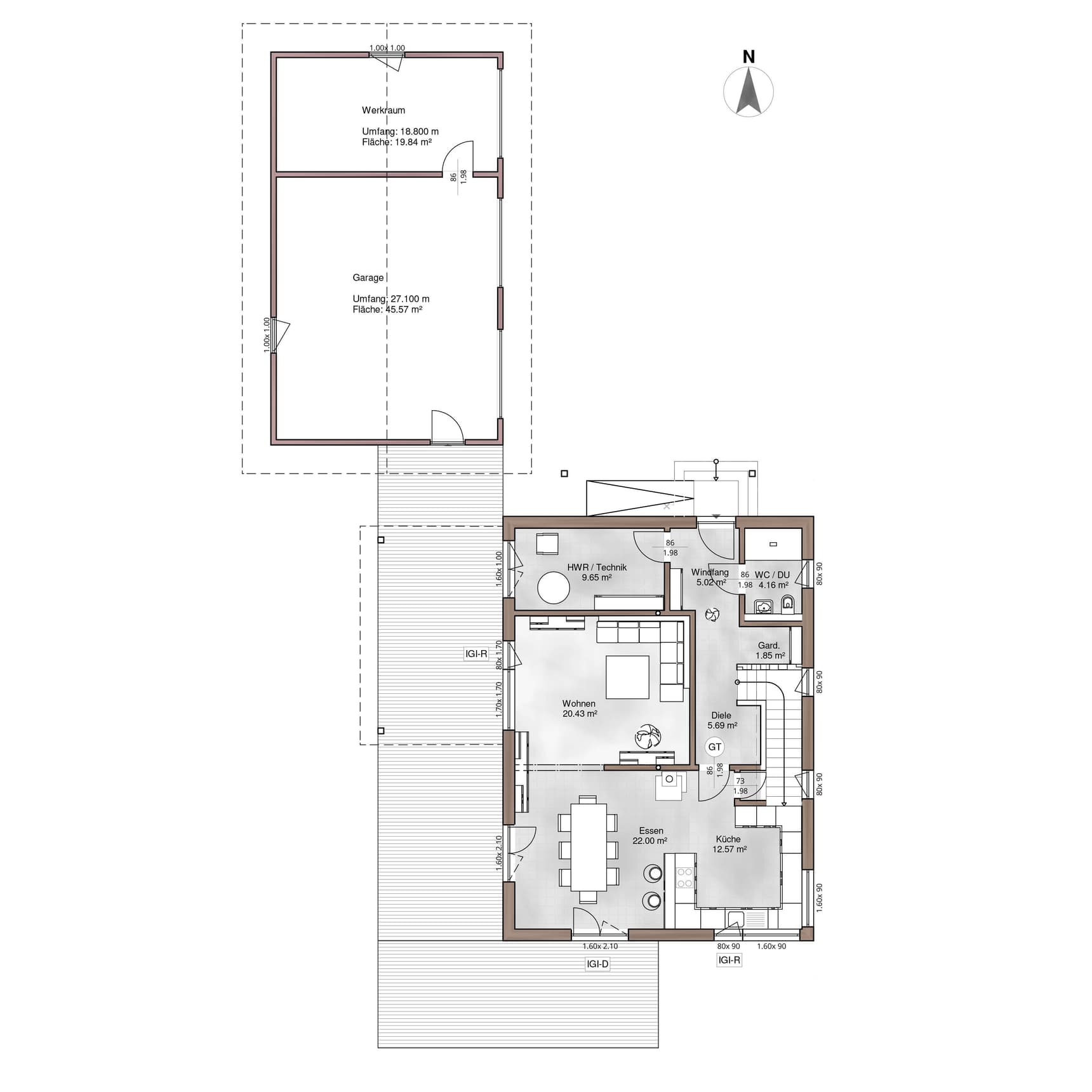
Grundriss

Der Grundriss des EGs des modernen Holzhauses im Landhausstil mit durchgängiger Lärchenholzfassade und großer Terrasse
Kundenhaus 'Rother' Grundriss (EG)Wohnfläche EG: 71,27 m²
Der Grundriss des OGs des modernen Holzhauses im Landhausstil mit durchgängiger Lärchenholzfassade und großer Terrasse
Kundenhaus 'Rother' Grundriss (OG)Wohnfläche OG: 82,61 m²
House and TreeParksHouse and PinMusterhausHouse on HandAnbieter