1. AnbieterArrow Icon
  2. Sonnleitner HolzbauwerkeArrow Icon
  3. Kundenhaus 'Oberbayern'
Slide 1
Slide 2
Slide 3
Slide 4
Slide 5
Slide 6
Slide 7
Sonnleitner_Logo_2.jpg
Sonnleitner HolzbauwerkeKundenhaus 'Oberbayern'
homeKlassische Familienhäuser
livingArea190 m²
energyStandardEffizienzhaus 55
Preis anfragen
Katalog bestellen

Kundenhaus 'Oberbayern'

Holzbau heute - Solitär mit zwei Gesichtern

Hier wird der Beweis angetreten, dass Regionalismus im Hausbau nach wie vor ein Thema ist und man auch heute noch oberbayerisch bauen kann. Unter Berücksichtigung einer behutsamen Anpassung an heutige Gegebenheiten. Exemplarisch wird dies sichtbar bei diesem Entwurf, der bei Sonnleitner Holzbauwerke unter der Bezeichnung „Oberbayern“ gelistet wird.

Eine Bezeichnung, die passt, denn die wesentlichen Merkmale dieser landschaftstypischen Bauweise sind bei diesem Entwurf auf Anhieb erkennbar. Der lang gestreckte Baukörper mit dem flachen Satteldach und dem hohen Kniestock zeigt ein zweigeschossiges Haus mit Balkendecke und Dachstuhl, die das Innenleben optisch prägen.

Die Galerie mit Luftraum bzw. offener Decke ist über dem Wohn-/Essbereich, eine weitere (Schlaf)Galerie ist im Kindertrakt zu entdecken und als „Abenteuerspielplatz“ für den Nachwuchs zu verstehen. Wenn die beiden Räume schon bis zum First offen sind, dann bietet sich eine solche Lösung geradezu an. Gelungen ist außerdem das traufseitige Fensterband auf der Terrassenseite, das die Galerie, den Luftraum und den Wohnbereich großflächig mit Licht versorgt. Für diese attraktive Lösung musste allerdings der umlaufende Balkon unterbrochen werden. Letzterer wird übrigens durch breite Dachüberstände gut geschützt.

Das unterkellerte Haus wird mit Gasheizung und Schwedenofen beheizt. An der Eingangsseite signalisieren hochformatige, schmale Verglasungen den Designanspruch, ergänzt durch ein witziges „Bullauge". Der Eingangsbereich ist gut dimensioniert, sodass auch der doppelflügelige Übergang keine Wünsche offen lässt. Der Wohnbereich mit Essen/Kochen präsentiert sich als Highlight des Hauses, bedingt durch die zweigeschossige Verglasung und den Luftraum. Wohnen im Kontakt mit der Natur, der zweigeschossige Mittelpunkt des Geschehens ­– zweifellos ein besonderes Ambiente! Eine Etage höher: 94 m2 Wohnfläche und ein Elterntrakt mit Ankleide und Bad als Einheit, zwei Kinderzimmer mit eigenem Bad und eine großflächige Verteiler-/Spielgalerie. Platz genug, um hier die Spielzeugeisenbahn aufzubauen, ohne dass das Familienleben gestört wird! ­

Weitere Infos und Impressionen

Hausdaten

Hausart Icon
HausartEinfamilienhaus
Bauweise Icon
BauweiseMassivholzkonstruktion
Baustil Icon
BaustilKlassische Familienhäuser
Fassade Icon
FassadePutz, Holz, Materialkombination
Außenmaße Icon
Außenmaße12.5 m x 10 m
Wohnfläche Icon
Wohnfläche190 m²
Dachform Icon
DachformSattel-/Giebeldach
Energiestandard Icon
EnergiestandardEffizienzhaus 55
Immobilientyp Icon
ImmobilientypKundenhaus
Dachneigung Icon
Dachneigung18°
Kniestock Icon
Kniestock2.55 m
Hauseigenschaften Icon
HauseigenschaftenTerasse, Balkon
Hausdämmstoff Icon
HausdämmstoffHolzfaser- und Zellulosedämmstoffe
Heizungsart Icon
HeizungsartWärmepumpe (Luft, Wasser, oder beides)
Pfeil nach unten linksWir schaffen Platz für Ihre Träume

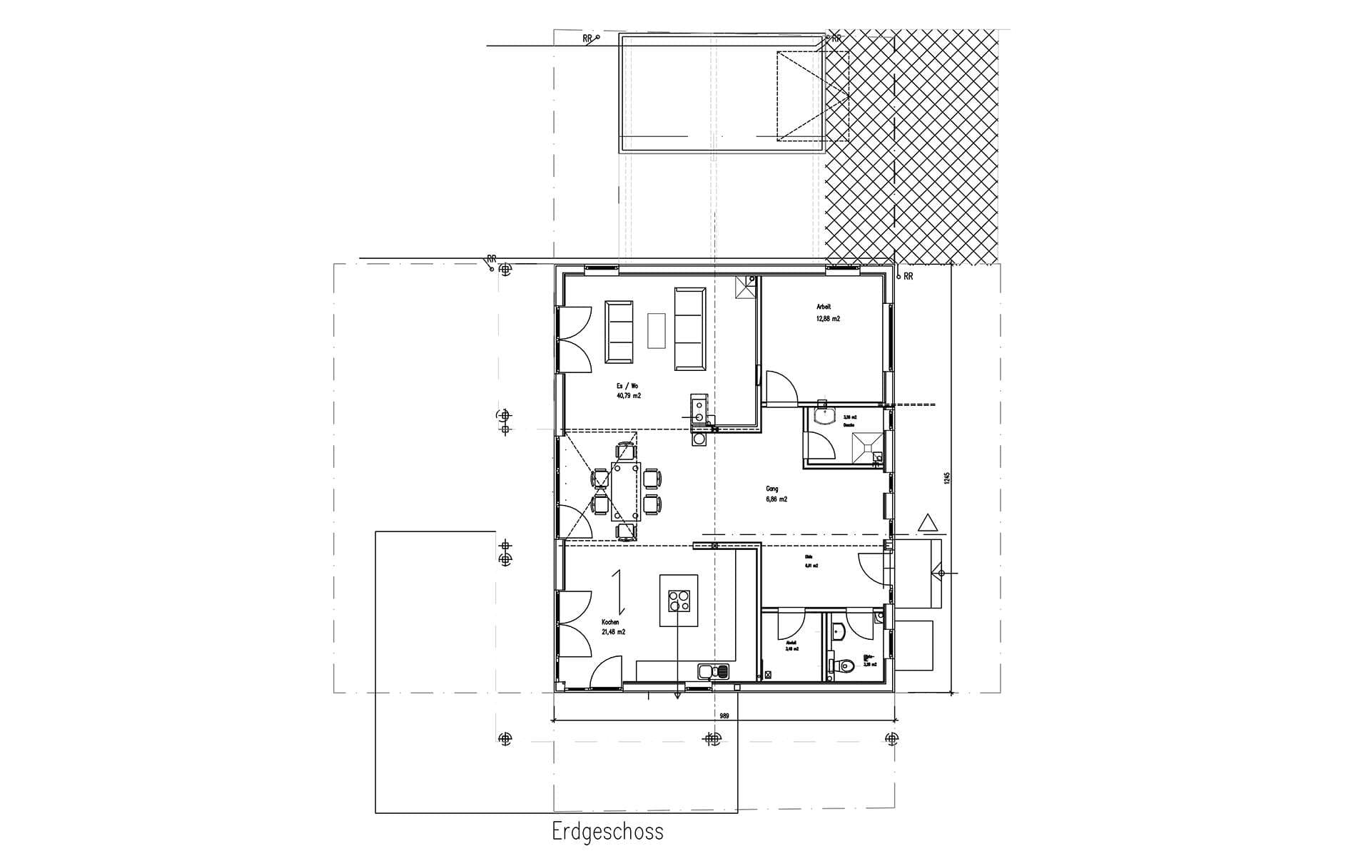
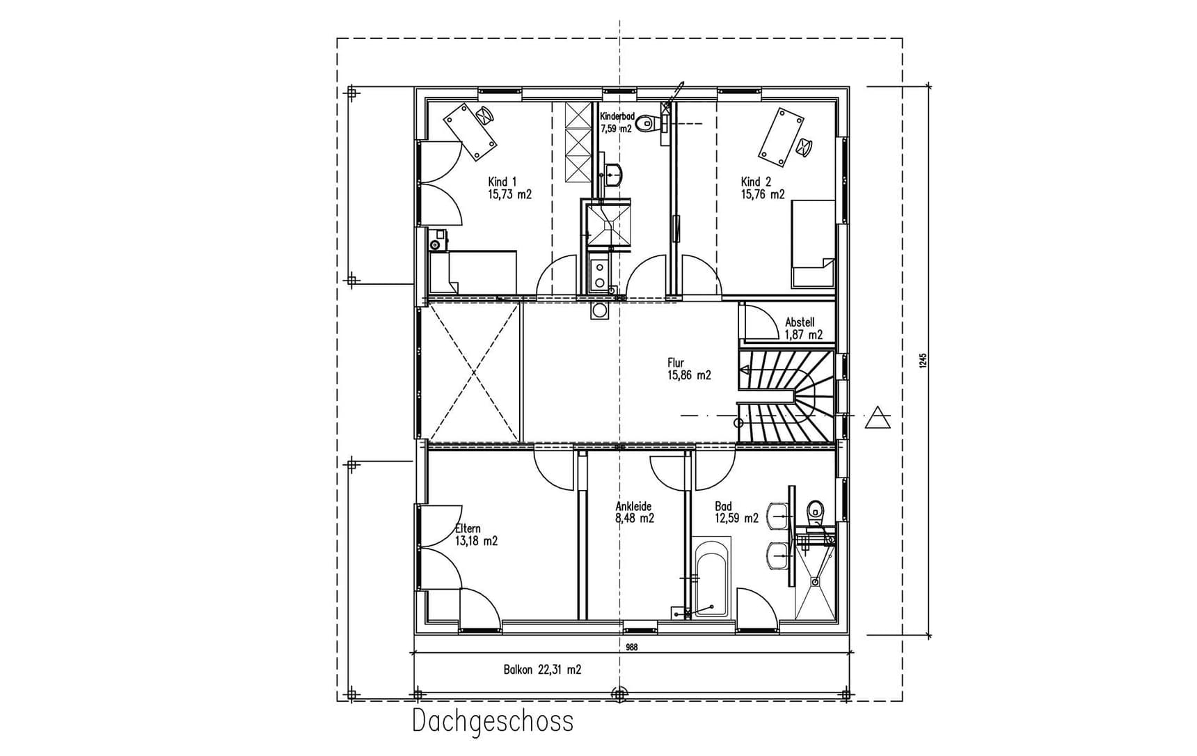
Grundriss

Der Grundriss des EGs des modernen Holzhauses mit umlaufendem Balkon und Mischfassade aus Holz und Putz
Kundenhaus 'Oberbayern' Grundriss (EG)Wohnfläche EG: 98,94 m²
Der Grundriss des OGs des modernen Holzhauses mit umlaufendem Balkon und Mischfassade aus Holz und Putz
Kundenhaus 'Oberbayern' Grundriss (DG)Wohnfläche DG: 91,03 m²
House and TreeParksHouse and PinMusterhausHouse on HandAnbieter