1. AnbieterArrow Icon
  2. Sonnleitner HolzbauwerkeArrow Icon
  3. Kundenhaus 'Künzel'
Slide 1
Slide 2
Slide 3
Slide 4
Slide 5
Slide 6
Sonnleitner_Logo_2.jpg
Sonnleitner HolzbauwerkeKundenhaus 'Künzel'
homeStadtvillen
livingArea134 m²
energyStandardEffizienzhaus 55
Preis anfragen
Katalog bestellen

Kundenhaus 'Künzel'

Barocke Moderne

Ein Mansard-Walmdach – so der Wunsch der Bauherrin – ist eine eher ungewöhnliche Lösung – schließlich kennt man diese Dachform eher aus dem Barock sowie den 1920-er Jahren. 

Dennoch hatte sich die Bauherrin in diese Dachform verliebt, denn Frau Künzel wuchs in eben solch einem Haus auf. Der Name Mansard geht übrigens auf den Architekten François Mansart (1598-1666) zurück und wurde bei damaligen Prunkbauten als platzsparende Idee populär.

Der Charme von damals rettete sich bis in die heutige Zeit und hat durchaus seine Berechtigung. Durch die leicht schrägen Außenwände im Oberschoss erlangen diese Räume ihren ganz besonderen Reiz. Unterstrichen durch die weißen Wände wirken diese Zimmer sehr heimelig und versprühen deren eigenwilligen Flair.

Weitere Infos und Impressionen

 

Hausdaten

Hausart Icon
HausartEinfamilienhaus
Bauweise Icon
BauweiseMassivholzkonstruktion
Anzahl Räume Icon
Anzahl Räume6
Baustil Icon
BaustilStadtvillen
Fassade Icon
FassadePutz
Außenmaße Icon
Außenmaße10 m x 9 m
Wohnfläche Icon
Wohnfläche134.47 m²
Dachform Icon
DachformWalm-/Zeltdach
Energiestandard Icon
EnergiestandardEffizienzhaus 55
Immobilientyp Icon
ImmobilientypKundenhaus
Dachneigung Icon
Dachneigung26°
Hauseigenschaften Icon
HauseigenschaftenGästezimmer, Terasse
Hausdämmstoff Icon
HausdämmstoffHolzfaser- und Zellulosedämmstoffe
Heizungsart Icon
HeizungsartWärmepumpe (Luft, Wasser, oder beides)
Pfeil nach unten linksWir schaffen Platz für Ihre Träume

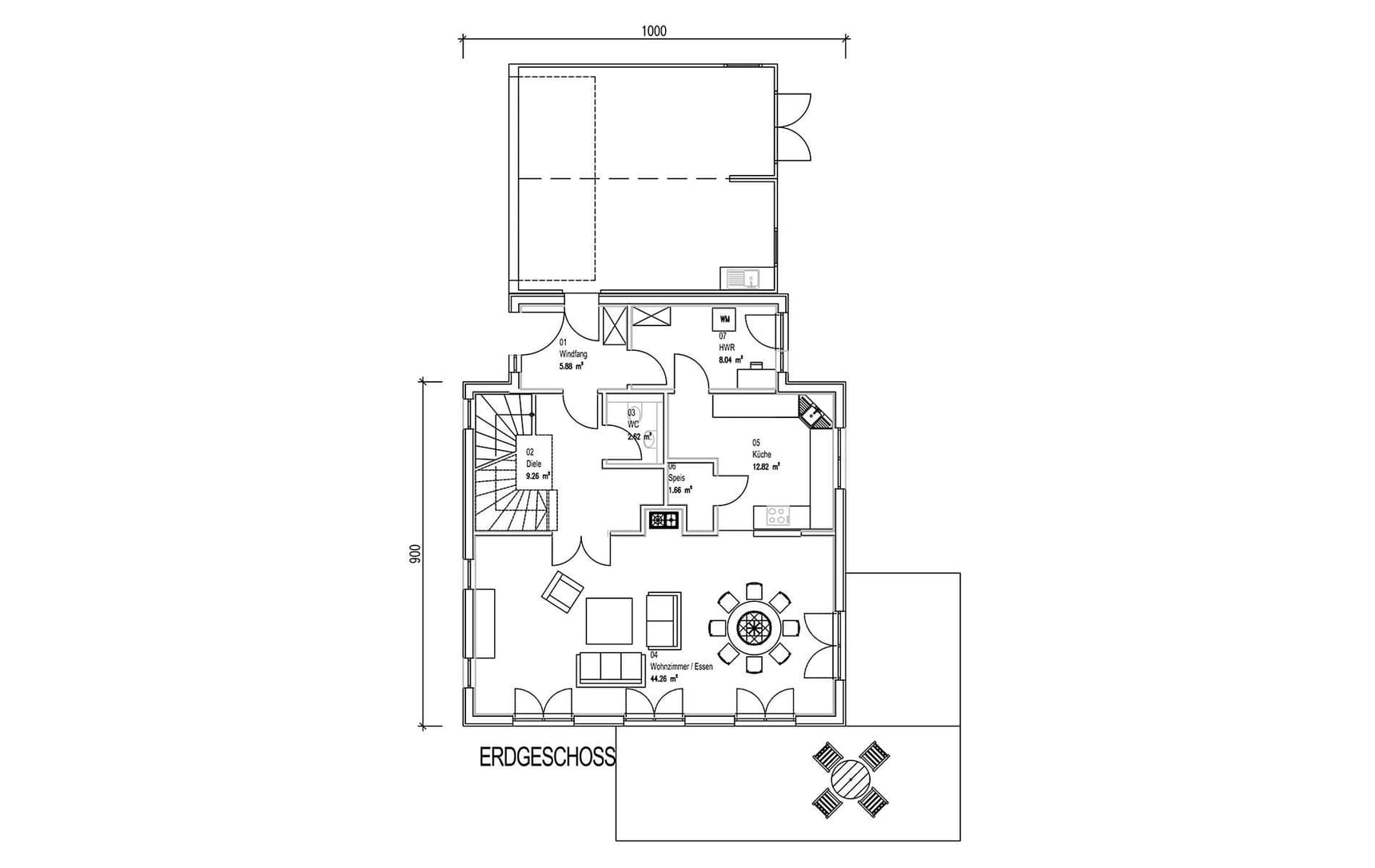
Grundriss

Der Grundriss des EGs des modernen Holzhauses in barockem Stil mit Masard-Walmdach und mineralischem Außenputz
Kundenhaus 'Künzel' Grundriss (EG)
Der Grundriss des OGs des modernen Holzhauses in barockem Stil mit Masard-Walmdach und mineralischem Außenputz
Kundenhaus 'Künzel' Grundriss (OG)
House and TreeParksHouse and PinMusterhausHouse on HandAnbieter