1. AnbieterArrow Icon
  2. Sonnleitner HolzbauwerkeArrow Icon
  3. Kundenhaus 'Hegger'
Slide 1
Slide 2
Slide 3
Slide 4
Slide 5
Slide 6
Sonnleitner_Logo_2.jpg
Sonnleitner HolzbauwerkeKundenhaus 'Hegger'
homeKlassische Familienhäuser
livingArea210 m²
energyStandardEffizienzhaus 55
Preis anfragen
Katalog bestellen

Kundenhaus 'Hegger'

Im flotten Design-Look 

Die Pluspunkte einer Hangbebauung zeigen sich auch hier ganz deutlich: Erschlossen wird im Untergeschoss, das zusätzliche Nebenräume bietet, sodass zwei hochwertige Wohnebenen ausgewiesen werden können.

Fast quadratisch präsentiert sich dieses frei geplante Einfamilienhaus am Hang mit steilem Satteldach (45 Grad) und hohem Kniestock (167 cm), was (fast) Zweigeschossigkeit garantiert. Die weiße Putzfassade wird angenehm aufgelockert durch den holzverschalten Küchenerker, die reduzierte Architektur ist stark geprägt durch die konsequente Gestaltung der Fenster. 

 

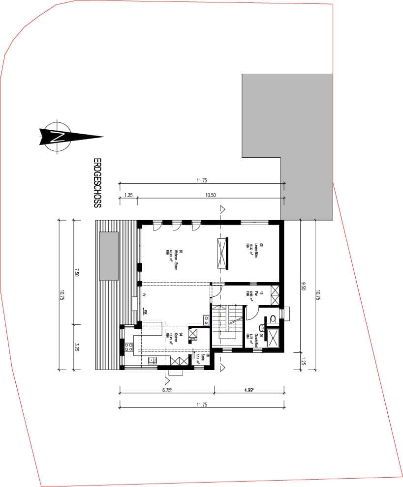
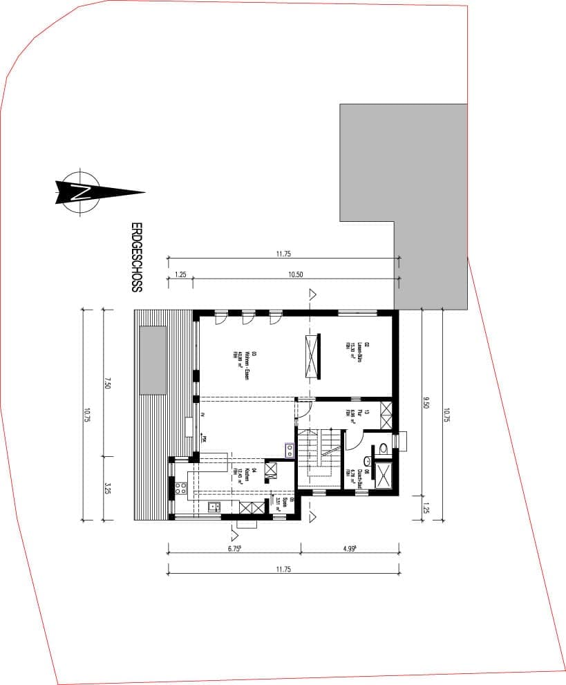
Rund 210 m² Gesamtwohnfläche weist der Entwurf aus, verteilt auf zwei Wohnebenen. Durch die Hanglage ergeben sich eingangsseitig auf der unteren Ebene weitere nutzbare Räume (Gast, Hauswirtschaftsraum usw.), da genügend Fensteranteil ausgewiesen wird. Über eine sehr filigrane und transparente Podesttreppe in Holz gelangt man in den Wohnbereich, der in seinem Erscheinungsbild dem äußeren Eindruck des Hauses entspricht. Gemeint ist: Formale Strenge ist angesagt, monochrome Farbflächen lockern auf, interessante Details gibt es einige zu entdecken. Dass es sich hier um ein Holzhaus handelt, wird durch die sichtbare Holzbalkendecke und einzelne Stützen belegt. Der Wohnbereich ist offen, vom Treppenhaus abgeschottet durch eine Eckverglasung. Der hohe Fensteranteil garantiert sonniges Wohnen. Praktisch: Die Speisekammer mit Schiebetür. Die Trennwand beinhaltet ein Schrankelement mit Backofen, das fast plan eingesetzt ist. Und im hinteren Raum (Lesen/Büro) kann man ein raumhohes, schlankes Glaselement entdecken, das die Verbindung zu Flur/Diele herstellt.

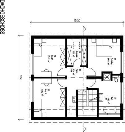
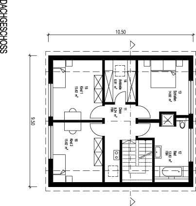
Eine Etage höher: Der Individualbereich, ausgelegt für eine vierköpfige Familie. Bad, Elterntrakt mit Ankleide und zwei Kinderzimmer. Alles nicht überdimensioniert, sondern vernünftig ausgelegt. Bei Bedarf besteht noch die Möglichkeit ins Untergeschoss auszuweichen. Ankleide und Abstellraum werden übrigens über Dachflächenfenster belichtet.     

Kein Entwurf für Schnickschnack-Fans, sondern für Puristen, für die langfristige Wertigkeit ein wichtiger Faktor ist. Das gilt übrigens auch für die technische Seite dieses Hauses. Als Energie-Standard gibt Sonnleitner KfW 55 an, an der Eingangsseite ist eine solarthermische Anlage zu entdecken, geheizt wird mit einer Holz-Pelletanlage.

Weitere Infos und Impressionen

Hausdaten

Hausart Icon
HausartEinfamilienhaus
Bauweise Icon
BauweiseMassivholzkonstruktion
Baustil Icon
BaustilKlassische Familienhäuser
Fassade Icon
FassadePutz
Außenmaße Icon
Außenmaße10.5 m x 9.5 m
Wohnfläche Icon
Wohnfläche210.03 m²
Dachform Icon
DachformSattel-/Giebeldach
Energiestandard Icon
EnergiestandardEffizienzhaus 55
Immobilientyp Icon
ImmobilientypKundenhaus
Dachneigung Icon
Dachneigung45°
Kniestock Icon
Kniestock1.67 m
Hauseigenschaften Icon
HauseigenschaftenTerasse, Balkon
Hausdämmstoff Icon
HausdämmstoffHolzfaser- und Zellulosedämmstoffe
Heizungsart Icon
HeizungsartWärmepumpe (Luft, Wasser, oder beides)
Pfeil nach unten linksWir schaffen Platz für Ihre Träume

Grundriss

Der Grundriss des EGs des modernen Holzhauses mit mineralischem Außenputz und steilem Satteldach
Kundenhaus 'Hegger' Grundriss (EG)Wohnfläche EG: 99,75 m²
Der Grundriss des OGs des modernen Holzhauses mit mineralischem Außenputz und steilem Satteldach
Kundenhaus 'Hegger' Grundriss (DG)Wohnfläche DG: 99,35 m²

Kataloge

Sonnleitner: Hauskatalog
Sonnleitner Holzbauwerke

Sonnleitner: Hauskatalog


House and TreeParksHouse and PinMusterhausHouse on HandAnbieter