1. AnbieterArrow Icon
  2. Sonnleitner HolzbauwerkeArrow Icon
  3. Kundenhaus 'Gruber'
Slide 1
Slide 2
Slide 3
Slide 4
Sonnleitner_Logo_2.jpg
Sonnleitner HolzbauwerkeKundenhaus 'Gruber'
homeLandhäuser
livingArea344 m²
energyStandardEffizienzhaus 55
Preis anfragen
Katalog bestellen

Kundenhaus 'Gruber'

Zweieinhalb Geschosse in Holz

Attraktive Architektur, formschöne Design-Lösungen und eine ungewöhnliche Konstruktion – das ist der Hintergrund bei diesem attraktiven Zweifamilienhaus.

Dieses moderne Zweifamilienhaus belegt eindrucksvoll, dass es im Holzbau nicht immer nur traditionell zugehen muss. Der zweieinhalbgeschossige Kundenentwurf, hinter dem sich eine besonders innovative Konstruktion verbirgt, wird auf der Südseite durch einen voll verglasten Querbau geprägt, der als dritter Giebel wirkt. Hinzu kommen außerdem drei vorgeständerte (überdachte) Balkonanbauten, so dass das Gebäude (16,5 x 11 m) in seiner Optik wirkungsvoll gegliedert wird. Hierzu tragen außerdem diverse Farbflächen sowie der Kontrast zwischen weißem Putz und bunten, zementgebundenen Faserplatten („Duripanel“) bei. Gut gelungen ist auch die Eingangsseite des Hauses, wobei hier noch das Fensterdesign hinzu kommt. Das farblich abgesetzte Eingangselement mit dem vertikalen Glasband des Treppenhauses sorgt für eine attraktive Gestaltung der eher ruhigen Nordseite.

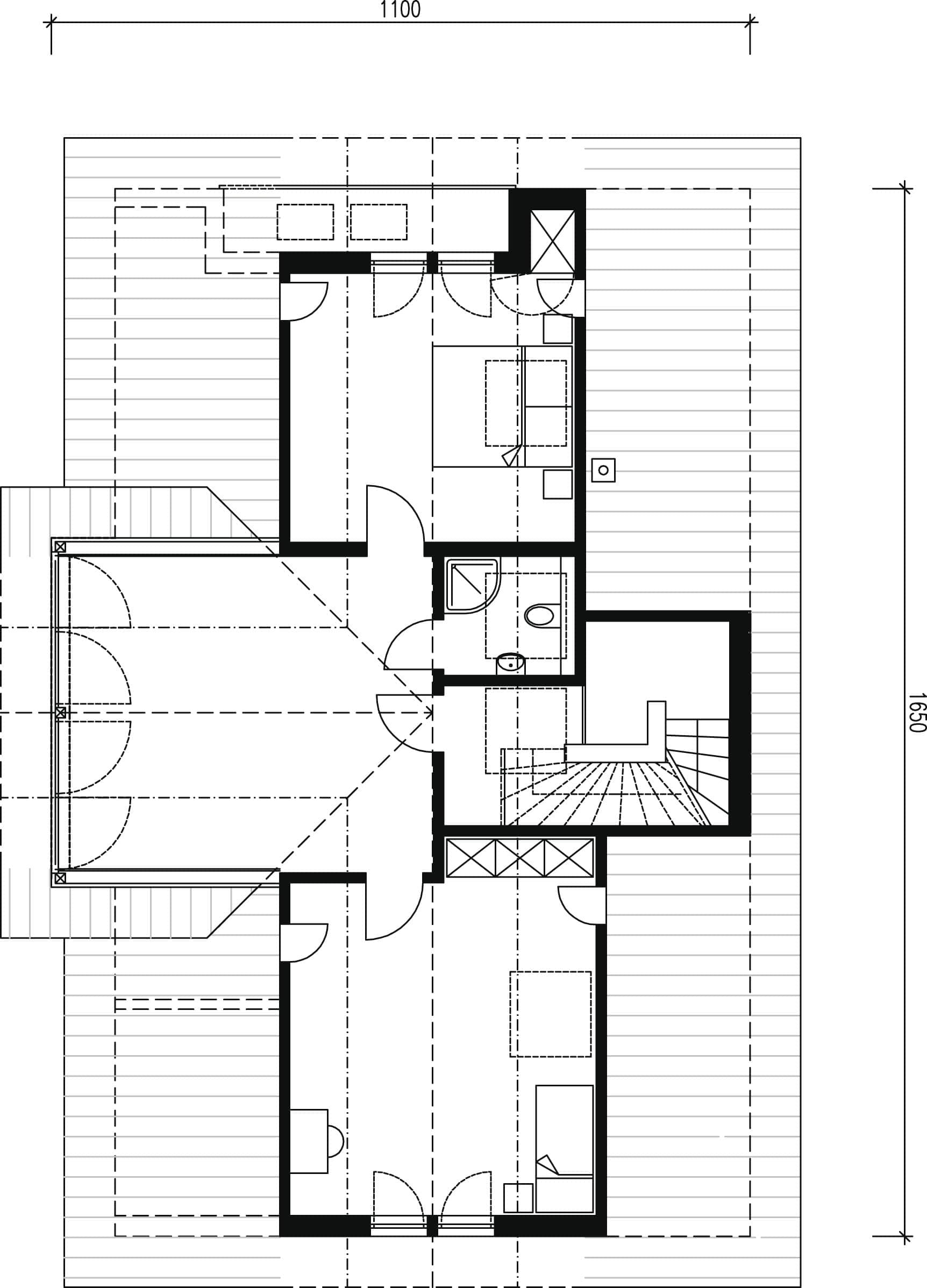
Die gesamte Wohnfläche wird mit 344 m2 angegeben, wobei auf das Erdgeschoss rund 140 m2 entfallen. Die zweite Wohneinheit (204 m2) erstreckt sich über das Ober- und Dachgeschoss (64 m2). Die Raumaufteilung der beiden unteren Wohnebenen ist in etwa identisch angelegt, unter der Dachschräge (31 Grad Satteldach, 46 cm Kniestock) befindet sich ein kompletter Schlaftrakt mit einer großformatigen Galerie, die ähnlich wie auf den unteren Geschossen, voll verglast ist. Am Rande zu erwähnen: Das größere Schlafzimmer weist auf der Westseite einen kleinen Balkon aus, gut geschützt durch den breiten Dachüberstand und zusätzlich belichtet über zwei Dachverglasungen. Auch hier sind übrigens die roten Faserplatten vom Eingang wieder zu entdecken!

Das Raumangebot auf der ersten Etage ist gut bemessen und überzeugt durch praktische und schöne Details. So werden separate Ankleide- und Schrankräume ausgewiesen, ein dreiteiliges Glaselement trennt den Wohnbereich vom Flur ab, eine Doppelschiebetüre ist an der Nahtstelle zwischen Wohnen und Essen ausfindig zu machen und die komplette Ebene ist mit einer Sichtbalkendecke bestückt. Dennoch wirken die Räume offen und hell, was auf den hohen Glasanteil auf der Südseite zurückzuführen ist.

Bekannt ist, dass Sonnleiter zu den wenigen Holzhaus-Unternehmen gehört, die auch passende Einbaumöbel liefern können. Abgestimmt auf die Architektur und die Bedürfnisse der Bewohner. Möbel in Massivholz und in einem zeitgemäßen Design. Bei diesem Projekt lieferte die Möbel-Werkstatt von Sonnleitner z. B. Einbauschränke, Garderobe, Badmöbel, Möbel für die Kinderzimmer usw. Vorteil: Die Einbauten passen millimetergenau, die Familie muss nur noch einräumen. Einfacher geht’s wirklich nicht!

Der Energiestandard des Zweifamilienhauses entspricht KfW 55, die Haustechnik besteht aus Pelletheizung, Solaranlage und Fußbodenheizung. Elektrisch bedienbare Alu-Rollos und Dachflächenfenster runden das Komfortprogramm ab.

Weitere Infos und Impressionen

Hausdaten

Hausart Icon
HausartZweifamilienhaus
Bauweise Icon
BauweiseMassivholzkonstruktion
Anzahl Räume Icon
Anzahl Räume13
Baustil Icon
BaustilLandhäuser
Fassade Icon
FassadeHolz, Putz, Materialkombination
Außenmaße Icon
Außenmaße16.5 m x 11 m
Wohnfläche Icon
Wohnfläche343.5 m²
Dachform Icon
DachformSattel-/Giebeldach
Energiestandard Icon
EnergiestandardEffizienzhaus 55
Immobilientyp Icon
ImmobilientypKundenhaus
Dachneigung Icon
Dachneigung31°
Kniestock Icon
Kniestock0.46 m
Hauseigenschaften Icon
HauseigenschaftenDritter Giebel, Terasse, Integriertes Carport, Gästezimmer, Viel Glas, Balkon
Hausdämmstoff Icon
HausdämmstoffHolzfaser- und Zellulosedämmstoffe
Heizungsart Icon
HeizungsartHolzpelletheizung
Pfeil nach unten linksWir schaffen Platz für Ihre Träume

Grundriss

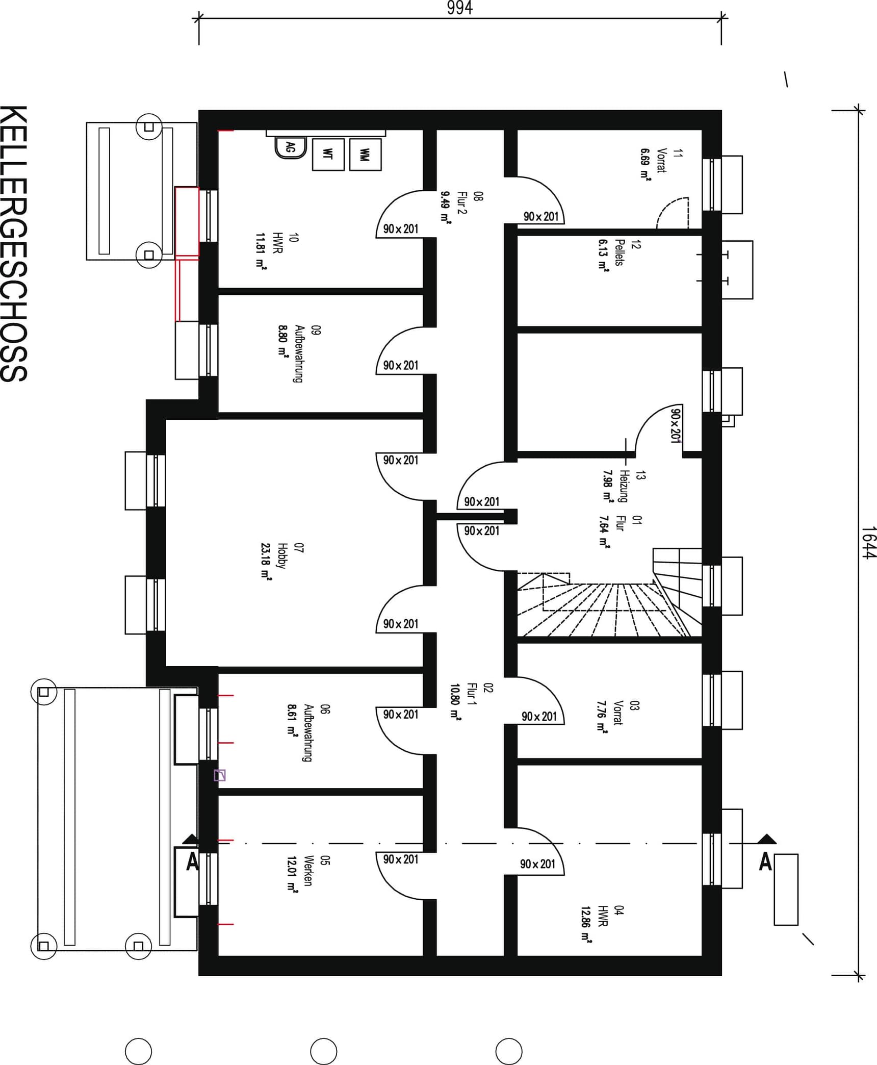
Der Grundriss des Kellers des modernes Zweifamilienhauses aus Holz mit Wintergarten
Kundenhaus 'Gruber' Grundriss (Keller)Wohnfläche KG: 134,28 m²
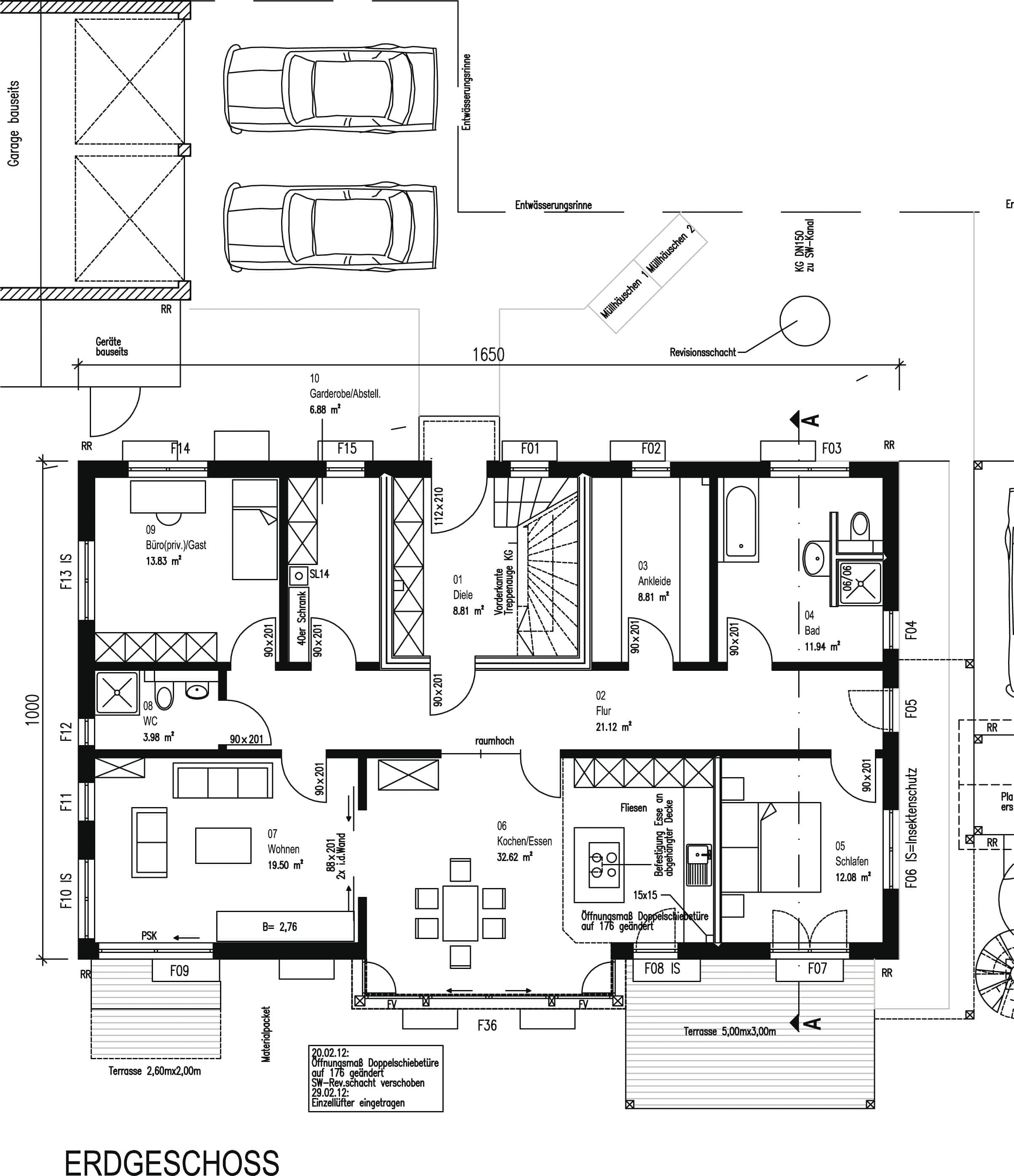
Der Grundriss des EGs des modernes Zweifamilienhauses aus Holz mit Wintergarten
Kundenhaus 'Gruber' Grundriss (EG)Wohnfläche EG: 139,56 m²
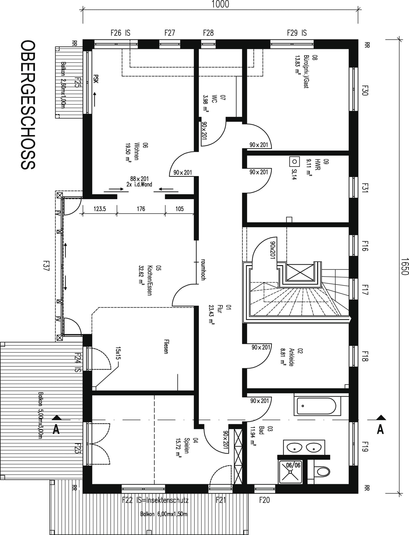
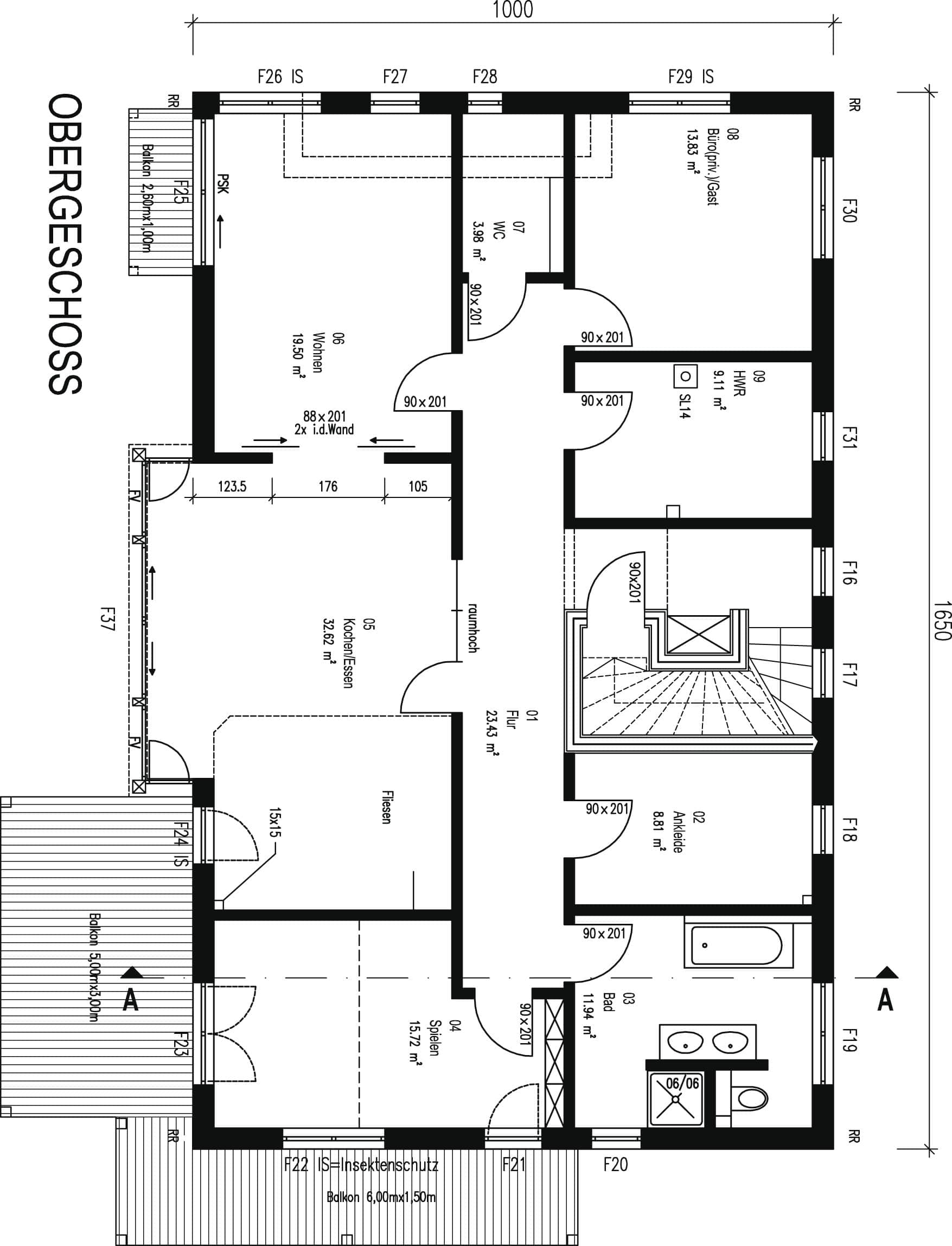
Der Grundriss des OGs des modernes Zweifamilienhauses aus Holz mit Wintergarten
Kundenhaus 'Gruber' Grundriss (OG)Wohnfläche OG: 138,94 m²
Der Grundriss des DGs des modernes Zweifamilienhauses aus Holz mit Wintergarten
Kundenhaus 'Gruber' Grundriss (DG)Wohnfläche DG: 65 m²
House and TreeParksHouse and PinMusterhausHouse on HandAnbieter