1. AnbieterArrow Icon
  2. Sonnleitner HolzbauwerkeArrow Icon
  3. Kundenhaus 'Felderer'
Slide 1
Slide 2
Slide 3
Slide 4
Slide 5
Slide 6
Sonnleitner_Logo_2.jpg
Sonnleitner HolzbauwerkeKundenhaus 'Felderer'
homeKubushäuser im Bauhausstil
livingArea192 m²
energyStandardEffizienzhaus 55
Preis anfragen
Katalog bestellen

Kundenhaus 'Felderer'

Im großen Format.

Fast 13 Meter lang ist der rechteckige Hauptbaukörper, der mit einem zweiten Vollgeschoss unterm Flachdach die Grundfläche des Hauses nahezu verdoppelt.

Dazu kommen im Erdgeschoss drei additive Bauteile, die die Strenge der Grundform auflösen und den Wohnwert deutlich steigern: Ein vorgelagerter, energetisch wirksamer Windfang vor dem Eingang, ein lichtdurchfluteter Vorbau im Wohnbereich sowie eine daran angeschlossene komplette Überdachung der Terrasse.

Auch bei der Grundrissgestaltung gilt „Form folgt Funktion“. Schon im Eingangsbereich mit Windfang, Flur, Diele und Treppenaufgang wird dies klar ersichtlich. Wände sind dort, wo sie gebraucht werden, ansonsten gibt es offene Durchgänge mit einer großen Raumeinheit für Essen und Wohnen. Glas- und Glasschiebetüren – für Diele, Küche und Speisekammer – sind praktisch und betonen die Transparenz.

Klare Linien auch im komfortablen Obergeschoss, das sich durch vorausschauende Planung wechselnden Familiensituationen und Nutzungswünschen jederzeit anpassen kann.

Weitere Infos und Impressionen

Hausdaten

Hausart Icon
HausartEinfamilienhaus
Bauweise Icon
BauweiseMassivholzkonstruktion
Anzahl Räume Icon
Anzahl Räume7
Baustil Icon
BaustilKubushäuser im Bauhausstil
Fassade Icon
FassadePutz
Außenmaße Icon
Außenmaße12.75 m x 12.94 m
Wohnfläche Icon
Wohnfläche191.57 m²
Dachform Icon
DachformFlachdach
Energiestandard Icon
EnergiestandardEffizienzhaus 55
Immobilientyp Icon
ImmobilientypKundenhaus
Hauseigenschaften Icon
HauseigenschaftenViel Glas, Terasse
Hausdämmstoff Icon
HausdämmstoffHolzfaser- und Zellulosedämmstoffe
Heizungsart Icon
HeizungsartGas-Brennwertheizung
Pfeil nach unten linksWir schaffen Platz für Ihre Träume

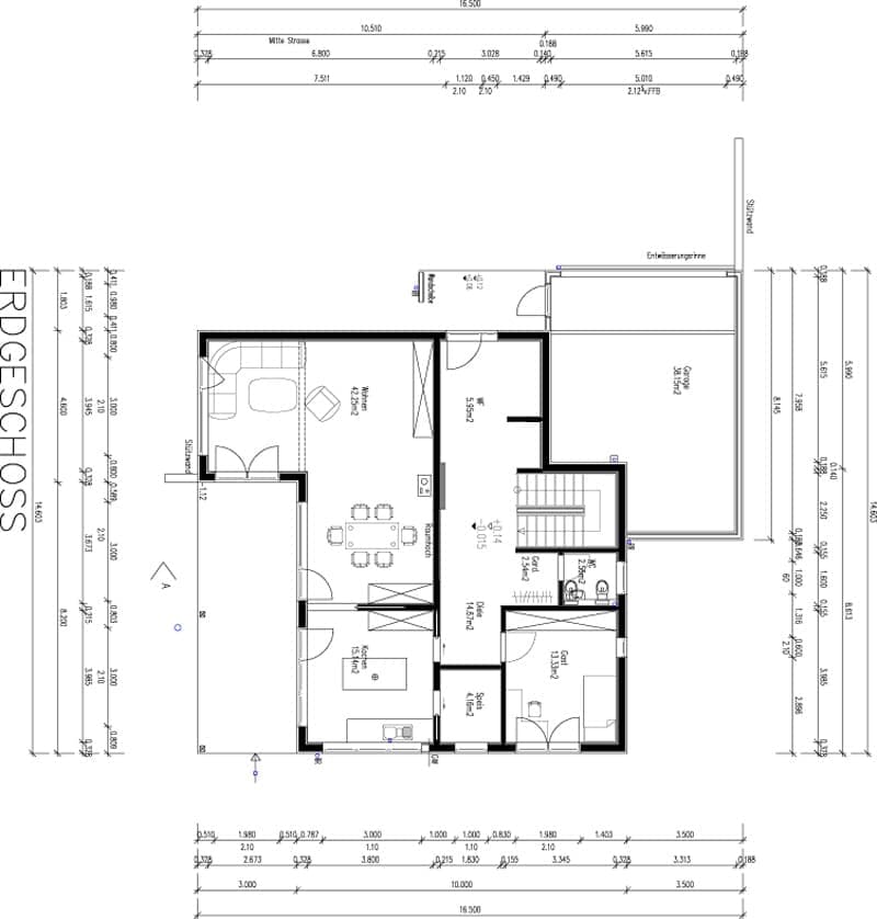
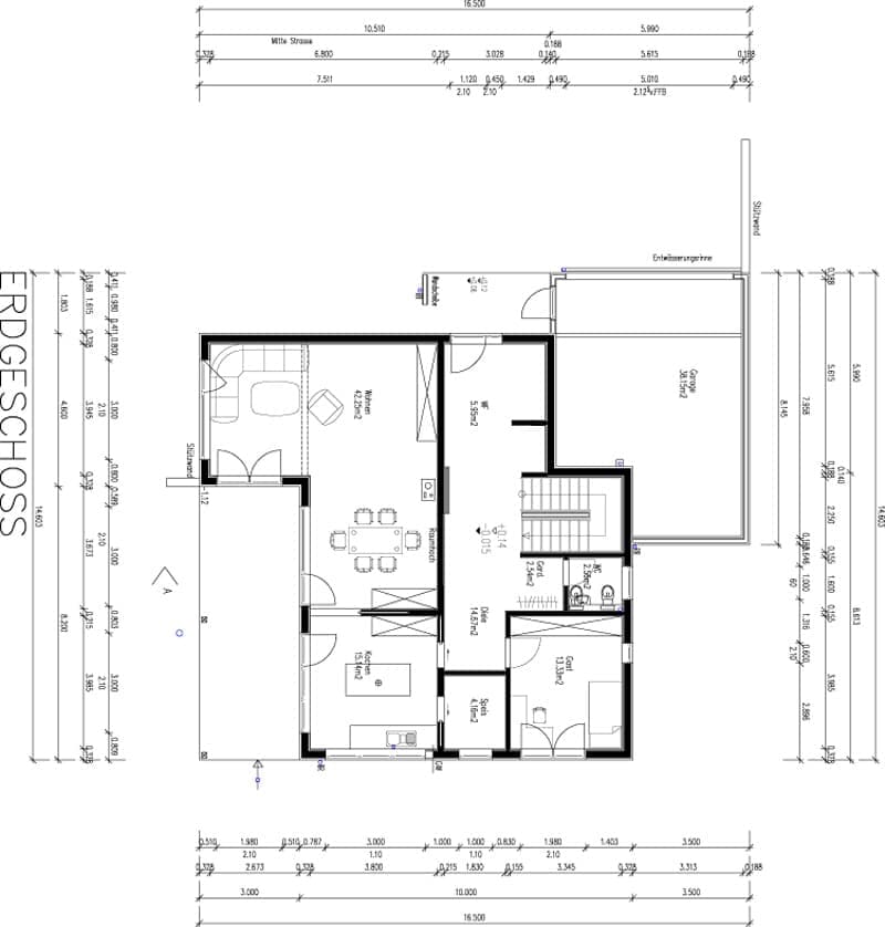
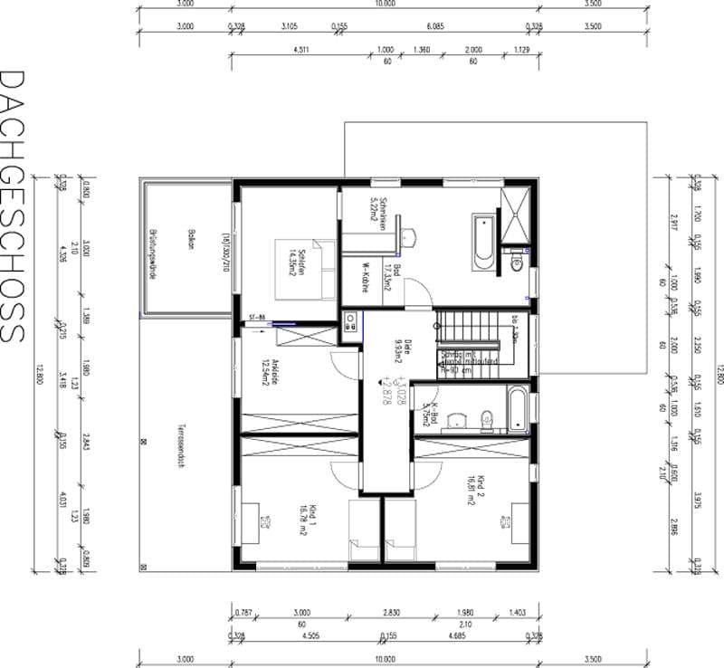
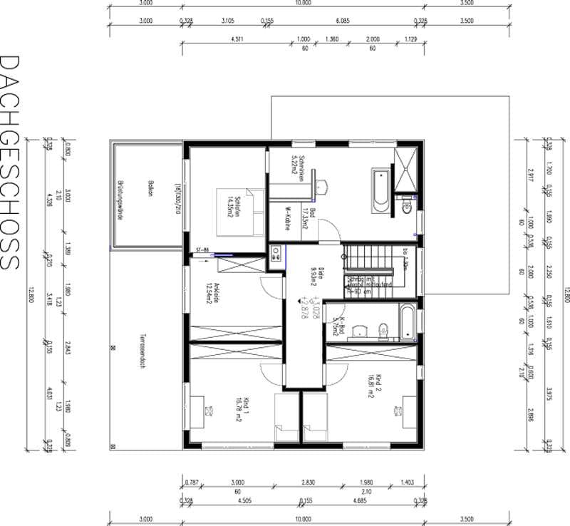
Grundriss

Der Grundriss des EGs des modernen Holzhauses mit mineralischem Außenputz und Flachdach
Kundenhaus 'Felderer' Grundriss (EG)Wohnfläche EG: 98,06 m²
Der Grundriss des OGs des modernen Holzhauses mit mineralischem Außenputz und Flachdach
Kundenhaus 'Felderer' Grundriss (DG)Wohnfläche DG: 93,51 m²

Kataloge

Sonnleitner: Hauskatalog
Sonnleitner Holzbauwerke

Sonnleitner: Hauskatalog


House and TreeParksHouse and PinHäuser liveHouse on HandAnbieter
Sonnleitner - Haus 'Felderer' - Im großen Format