1. AnbieterArrow Icon
  2. SANDER HAUSArrow Icon
  3. Sander Haus YouBe 9.9
Slide 1
Slide 2
Slide 3
Slide 4
no description
SANDER HAUSSander Haus YouBe 9.9
homeStadtvillen
livingArea127 m²
energyStandardEffizienzhaus 55
Preis anfragen
Katalog bestellen

Sander Haus YouBe 9.9

YouBe - Be You !!!

Bei einem Sander Haus haben Sie vollkommene Gestaltungsfreiheit in punkto Architektur, Gestaltung und Ausstattung - bis ins Detail.
Das einzige, was Sie bei uns nicht wählen können, ist ein Haus von der Stange.

Unser YouBe-läumshaus anlässlich unseres 70 jährigen Betriebsjubiläums:

Festgelegtes Außenmaß 9,00 x 9,00 m
Auswahl zwischen Zelt- und Satteldach

Unzählige Gestaltungsmöglichkeiten auf Ihre Bedürfnisse angepasst

Hausdaten

Hausart Icon
HausartEinfamilienhaus
Bauweise Icon
BauweiseHolz-Tafelbau
Baustil Icon
BaustilStadtvillen
Fassade Icon
FassadePutz
Außenmaße Icon
Außenmaße9 m x 9 m
Wohnfläche Icon
Wohnfläche127 m²
Dachform Icon
DachformWalm-/Zeltdach
Energiestandard Icon
EnergiestandardEffizienzhaus 55
Immobilientyp Icon
ImmobilientypPlanungsidee
Hausdämmstoff Icon
HausdämmstoffMineralfaser (Glaswolle, Steinwolle)
Heizungsart Icon
HeizungsartWärmepumpe (Luft, Wasser, oder beides)
Pfeil nach unten linksWir schaffen Platz für Ihre Träume

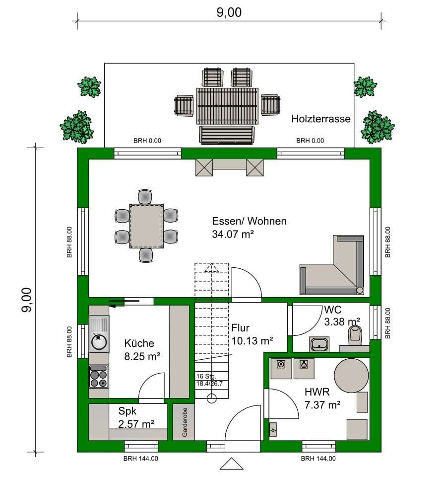
Grundriss

no description
Sander Haus YouBe 9.9 Grundriss (EG)Wohnfläche EG: 65,8 m²
no description
Sander Haus YouBe 9.9 Grundriss (OG)Wohnfläche OG: 61,2 m²

Unser Team vor Ort

Christian RunteFachberater*in bei SANDER HAUS
Default Avatar
Wir beraten Sie gerne!Arrow Icon
House and TreeParksHouse and PinMusterhausHouse on HandAnbieter