1. AnbieterArrow Icon
  2. SANDER HAUSArrow Icon
  3. Sander Haus - Ein echtes Traumschloss
Slide 1
Slide 2
Slide 3
Slide 4
Slide 5
no description
SANDER HAUSSander Haus - Ein echtes Traumschloss
homeLandhäuser
livingArea153 m²
energyStandardEffizienzhaus 40
Preis anfragen
Katalog bestellen

Sander Haus - Ein echtes Traumschloss

Besser können der Baustil und die Lage eines Hauses wohl kaum miteinander harmonieren...

Nähert man sich dem Gebäude, das in ein knapp über 1000 qm großes Grundstück eingebettet ist, wird schnell klar warum.

Durch den integrierten Turm , der sich vom Koch- und Essbereich bis hoch ins Schlafzimmer erstreckt, wirkt das Haus mit seinen 153 qm Wohnfläche fast wie ein kleines Schloss. Ein Schloss, das auf einer Anhöhe gelegen einen einmaligen Blick auf die wunderschöne Landschaft bietet.

Neben dem Technikraum, einem Gästezimmer und dem Gäste-WC mit Dusche befindet sich im Erdgeschoss ein großräumig einladender Koch-, Ess- und Wohnbereich, der insgesamt über fast 48 qm verfügt. Da sich die Küche und das Esszimmer im sechseckigen Turmanbau befinden, sind sie trotz der offenen Bauweise vom Wohnzimmer separiert, ohne von ihm abgetrennt zu sein.

Eine Etage höher im direkt darüber liegenden Schlafzimmer findet die offene Architektur des Hauses gewissermaßen ihren Höhepunkt - und zwar in millimetergenauer Qualitätsarbeit. Die offene Decke im Turm bringt den Charakter eines rustikalen Schlosses auf den Punkt.

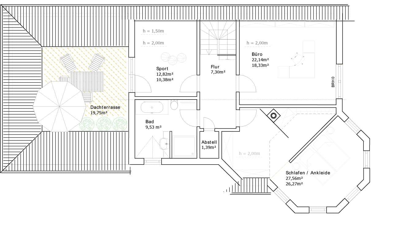
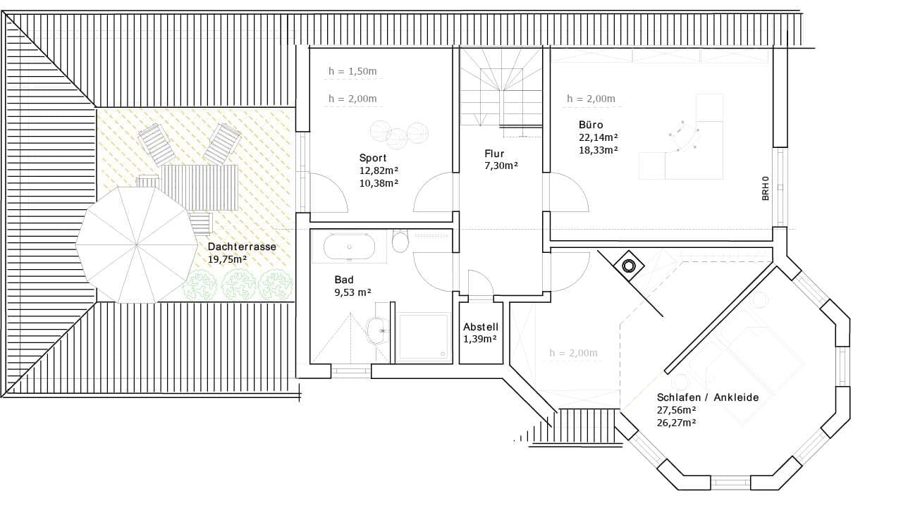
Neben dem Schlafzimmer mit Ankleide befindet sich im Obergeschoss ein Büro, ein geräumiges Bad und ein Fitnessraum mit Zugang zur rund 20 qm großen Dachterrasse mit atemberaubenden Blick auf das naturnahe Erholungsgebiet.

Aber auch beim Thema Wohngesundheit und Energieeffizienz kann das Haus auf ganzer Linie punkten.

Durch Luft/Wasser-Wärmepumpe, Fußbodenheizung, einen zusätzlichen Kaminofen und die hinterlüftete Sander Haus Qualitätsklimawand profitieren die Eigentümer von niedrigen Heizkosten und einem wohngesunden Raumklima.

Hausdaten

Hausart Icon
HausartEinfamilienhaus
Bauweise Icon
BauweiseHolz-Tafelbau
Baustil Icon
BaustilLandhäuser
Fassade Icon
FassadePutz
Außenmaße Icon
Außenmaße11 m x 7.8 m
Wohnfläche Icon
Wohnfläche152.9 m²
Dachform Icon
DachformSattel-/Giebeldach
Energiestandard Icon
EnergiestandardEffizienzhaus 40
Immobilientyp Icon
ImmobilientypKundenhaus
Dachneigung Icon
Dachneigung38°
Kniestock Icon
Kniestock1 m
Hauseigenschaften Icon
HauseigenschaftenGästezimmer
Hausdämmstoff Icon
HausdämmstoffMineralfaser (Glaswolle, Steinwolle)
Heizungsart Icon
HeizungsartWärmepumpe (Luft, Wasser, oder beides)
Pfeil nach unten linksWir schaffen Platz für Ihre Träume

Grundriss

no description
Sander Haus - Ein echtes Traumschloss Grundriss (EG)Wohnfläche EG: 79,7 m²
no description
Sander Haus - Ein echtes Traumschloss Grundriss (DG)Wohnfläche DG: 73,2 m²

Unser Team vor Ort

Christian RunteFachberater*in bei SANDER HAUS
Default Avatar
Wir beraten Sie gerne!Arrow Icon
House and TreeParksHouse and PinMusterhausHouse on HandAnbieter