1. AnbieterArrow Icon
  2. SANDER HAUSArrow Icon
  3. Sander Haus Stadtvilla DG170
Slide 1
Slide 2
Slide 3
Slide 4
no description
SANDER HAUSSander Haus Stadtvilla DG170
homeStadtvillen
livingArea151 m²
energyStandardEffizienzhaus 55
Preis anfragen
Katalog bestellen

Sander Haus Stadtvilla DG170

Gemütlichkeit mit klaren Linien

Bei einem Sander Haus haben Sie vollkommene Gestaltungsfreiheit in punkto Architektur, Gestaltung und Ausstattung - bis ins Detail.
Das einzige, was Sie bei uns nicht wählen können, ist ein Haus von der Stange.

Schon beim Betreten des großen Eingangsbereichs fällt die Treppe aus Buchenholz ins Auge. Sie ist dunkel gebeizt und bildet einen tollen Kontrast zu den hellen Bodenfliesen und Wänden. Hinter der Glastür am Ende des Flures befindet der großzügige Wohn-Ess-Bereich, der schnell zum Lieblingsraum wird. Die Farben Beige und Braun sind hier bestimmend und machen den Raum lebendig. Der braune Laminatboden harmoniert hervorragend mit den cremefarbenen Wänden und strahlt Gemütlichkeit aus.

Gerade wenn es draußen kalt wird, lädt das prasselnde Kaminfeuer dazu ein, sich niederzulassen und aufzuwärmen.
Der Wohnbereich der Stadtvilla besticht durch Gegensätze - Gemütlichkeit auf der einen, klare Strukturen auf der anderen Seite. Dieser Konstrast findet sich auch im großen Badezimmer wieder. Dunkle Bodenfliesen wurden mit champagnerfarbenen Wandfliesen kombiniert. Die modernen Edelstahl-Armaturen sind perfekt darauf abgestimmt und schaffen eine behagliche Atmosphäre. Die ebenerdige Dusche mit Regenduschkopf ist etwas versteckt und bildet zusammen mit der Badewanne einen großartigen Wellnessbereich.

Die Fußbodenheizung und die Luft-Wasser-Wärmepumpe nutzen das umweltfreundlich erhitzte Wasser und die Sander Haus Qualitätsklimawand hält die erzeugte Wärme verlässlich im Haus.

Hausdaten

Hausart Icon
HausartEinfamilienhaus
Bauweise Icon
BauweiseHolz-Tafelbau
Baustil Icon
BaustilStadtvillen
Fassade Icon
FassadePutz
Außenmaße Icon
Außenmaße9.7 m x 9.7 m
Wohnfläche Icon
Wohnfläche151 m²
Dachform Icon
DachformWalm-/Zeltdach
Energiestandard Icon
EnergiestandardEffizienzhaus 55
Immobilientyp Icon
ImmobilientypKundenhaus
Hausdämmstoff Icon
HausdämmstoffMineralfaser (Glaswolle, Steinwolle)
Heizungsart Icon
HeizungsartWärmepumpe (Luft, Wasser, oder beides)
Pfeil nach unten linksWir schaffen Platz für Ihre Träume

Grundriss

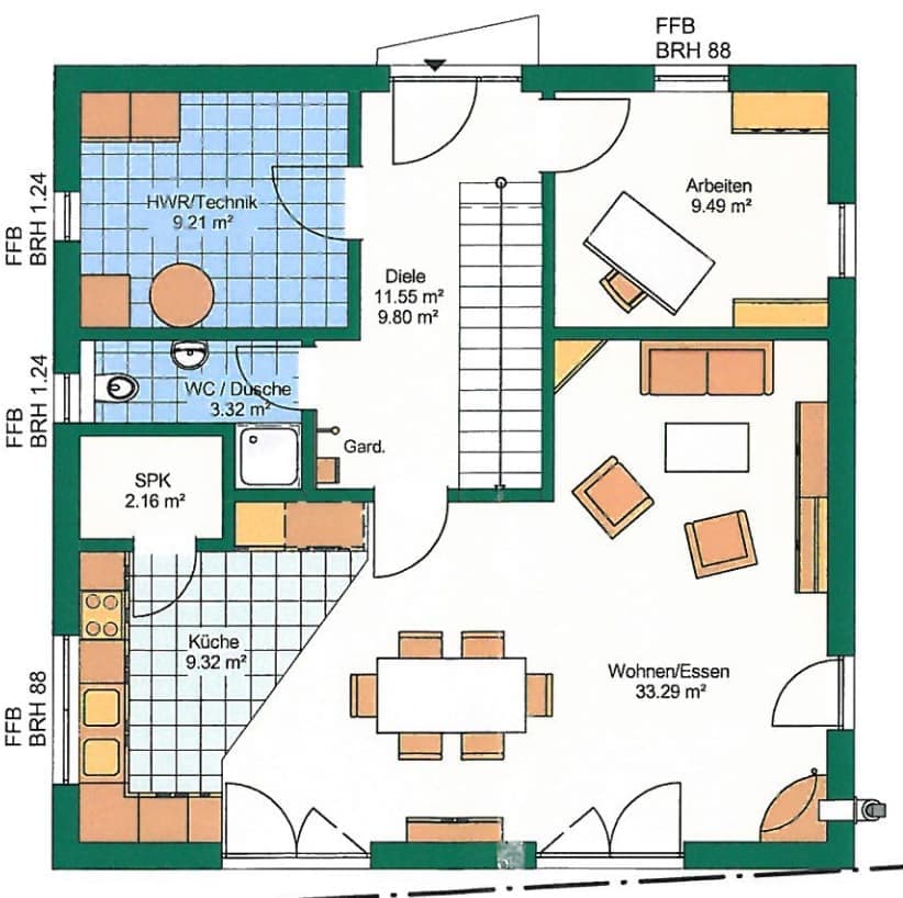
no description
Sander Haus Stadtvilla DG170 Grundriss (EG)Wohnfläche EG: 76,59 m²
no description
Sander Haus Stadtvilla DG170 Grundriss (OG)Wohnfläche OG: 74,41 m²

Unser Team vor Ort

Christian RunteFachberater*in bei SANDER HAUS
Default Avatar
Wir beraten Sie gerne!Arrow Icon
House and TreeParksHouse and PinMusterhausHouse on HandAnbieter